House Plan 1461 Arlington Falls, European House Plan
Please log in or create account to add the product in wishlist.
Wishlist is not saved permanently yet. Please log in or create account to save it.
Or order by phone: (870) 931-5777
Floor Plans
Description
NDG 1461 Arlington Falls – A European-Inspired House Plan Blending Luxury and Functionality
Arlington Falls is a distinguished European-style house plan offering 4,830 square feet of heated living space, 5 bedrooms, 4 full baths, 1 half bath, and a spacious side-load three-car garage. Designed for homeowners who desire both elegance and everyday comfort, this plan combines classic architectural details with a layout ideal for family living, entertaining, and long-term functionality.
Key Features and Advantages
- European-inspired exterior with stone and brick accents, arched windows, and a welcoming covered front entry
- Impressive foyer with a grand view of the upper-level balcony and Great Room beyond
- Expansive Great Room featuring a fireplace and open flow to the kitchen and dining areas
- Gourmet kitchen with a large prep island, eat-at bar, and generous walk-in pantry designed for convenience and efficiency
- Main-level Guest Room with private bath and walk-in closet, perfect for visitors or multi-generational living
- Luxurious Master Suite with direct access to the rear covered porch; master bath includes dual vanities, a corner whirlpool tub, glass shower with seating, and large his-and-her walk-in closets
- Rear outdoor living space complete with grilling kitchen and wood-burning fireplace, ideal for gatherings and year-round enjoyment
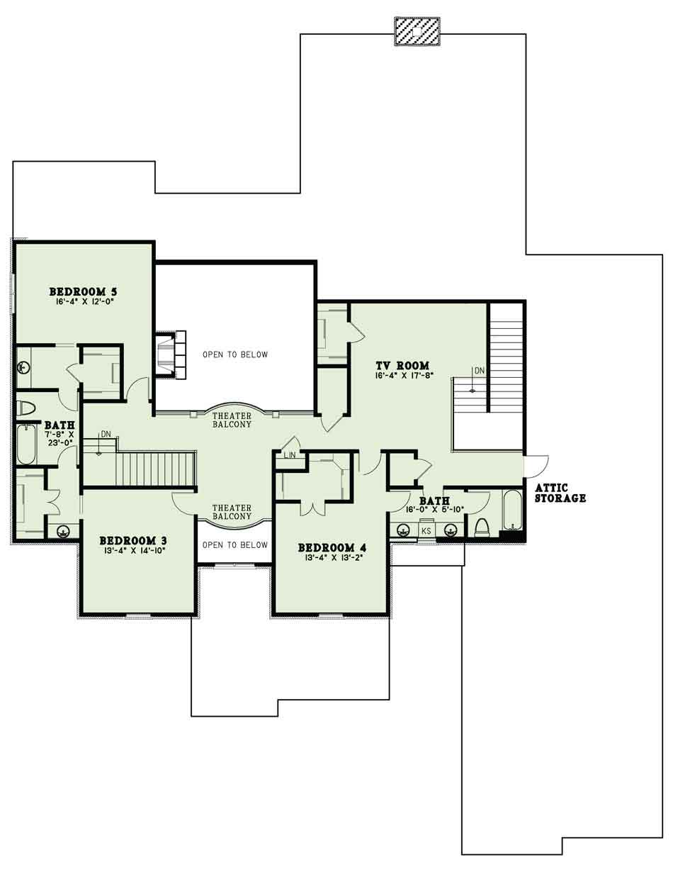
- Upper level includes three additional bedrooms, each with walk-in closets; Bedroom 4 enjoys a private bath while Bedrooms 3 and 5 share a Jack-and-Jill design
- Large upstairs TV/Media Room offering flexible family or entertainment space
- Dual staircases for easy access throughout the home, plus ample attic and utility storage for practical daily living
Designed for Sophisticated, Comfortable Living
Arlington Falls is thoughtfully arranged to support the rhythm of modern family life. Shared living spaces flow seamlessly for entertaining, while private rooms and guest accommodations provide comfort and quiet when needed. Outdoor living areas extend the home’s lifestyle capacity, creating the perfect balance of elegance and functional design.
Home Specifications
- Total Living Space: 4830
- Ridge Height (Ft.) 46
- Main Floor (Sq. Ft.): 3157 Sq.Ft
- Ridge Height (In.) 6
- Upper Floor (Sq. Ft.): 1673 Sq.Ft.
- Main Ceiling Height: 10
- Lower Floor (Sq. Ft.): N/A
- Upper Ceiling Height: 9
- Porch (Sq. Ft.): 993 Sq.Ft.
- Lower Ceiling Height: N/A
- Garage (Sq. Ft.): 1055 Sq.Ft.
- Garage: 3 Bay Yes
- Bonus (Sq.Ft): N/A
- Garage/Carport Type:Side Load Side Load
- Bedrooms: 5
- Carport: N/A
- Full Baths: 4
- Roof Pitch: 16:12
- Half Baths: 1
- Porch Roof Pitch: N/A
- Stories: 2.0
- Wall Construction: 2x4
- Lower Bonus (Sq. Ft.): N/A
- Vaulted Ceiling: No
- Depth (Ft): 99
- Width (Ft): 84
- Depth (In.) 10
- Width (In.) N/A
- Total Sq. Ft. 6878 Sq.Ft.
- Customizable: Yes
Key Features
- Arched Entry
- Balcony
- Covered Front Porch
- Covered Rear Porch
- Formal Dining Room
- Great Room
- Grilling Porch
- Home Office/Study
- Jack & Jill Bathroom
- Kitchen Island
- Main Floor Master
- Media Room
- Mudroom
- Open Floor Plan House Plans
- Outdoor Kitchen
- Outdoor Living Space
- Peninsula/Eating Bar
- Split Bedroom Design
- Walk-in Closet
- Walk-in-Pantry
Plan Collections
- European House Plans Collection
Plan Styles
- European House Plans
- French Classic House Plans
- Luxury House Plans
- Traditional House Plans



