House Plan 339 Cambridge Court, Traditional House Plan
Please log in or create account to add the product in wishlist.
Wishlist is not saved permanently yet. Please log in or create account to save it.
Or order by phone: (870) 931-5777
Floor Plans
Description
House Plan 339 Cambridge Court – Timeless, Efficient, and Highly Desirable House Plans
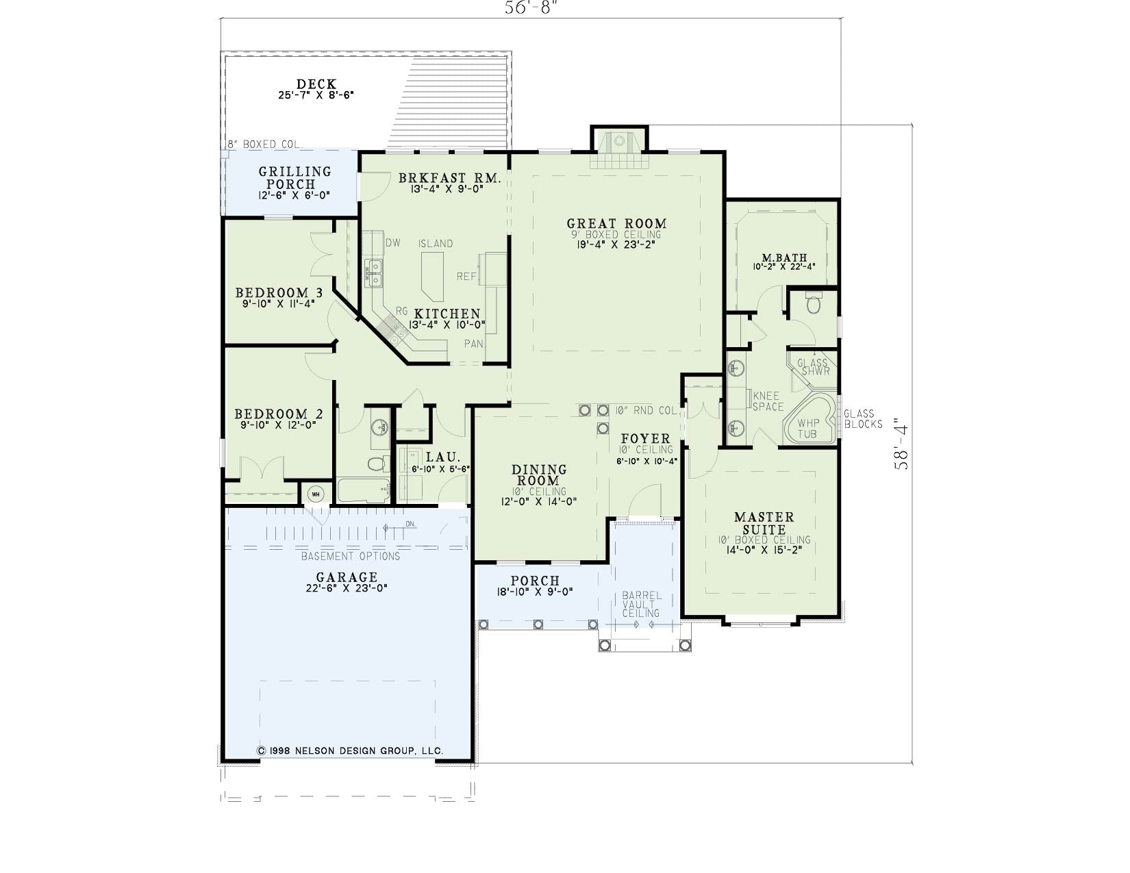
If you’re searching for expertly crafted house plans that blend classic architecture with modern functionality, House Plan 339 Cambridge Court is a standout home design that delivers lasting value. This thoughtfully designed residential house plan features 3 bedrooms and 2 bathrooms within approximately 1,950 square feet of living space, making it ideal for families, couples, or anyone seeking a comfortable and efficient home floor plan.
Designed with everyday living in mind, this home showcases an open-concept layout where the main living areas flow seamlessly, creating a welcoming space for both relaxing and entertaining. The spacious living room connects effortlessly to the kitchen and dining areas, enhancing functionality and natural movement throughout the home. Private, well-sized bedrooms provide quiet retreats, while the primary suite offers comfort and convenience. A 2-car garage adds practicality and curb appeal, reinforcing the smart design of this popular house plan.
Among today’s most sought-after house plans, House Plan 339 Cambridge Court combines timeless style, efficient square footage, and flexible living spaces. Whether you’re browsing custom house plans, traditional home designs, or high-quality residential floor plans, this design offers a perfect balance of beauty, livability, and long-term appeal—making it an excellent choice for your next home build.
Home Specifications
- Total Living Space: 1950
- Ridge Height (Ft.) 23
- Main Floor (Sq. Ft.): 1950 Sq.Ft
- Ridge Height (In.) 7
- Upper Floor (Sq. Ft.): N/A
- Main Ceiling Height: 8
- Lower Floor (Sq. Ft.): N/A
- Upper Ceiling Height: N/A
- Porch (Sq. Ft.): 259 Sq.Ft.
- Lower Ceiling Height: N/A
- Garage (Sq. Ft.): 518 Sq.Ft.
- Garage: 2 Bay Yes
- Bonus (Sq.Ft): N/A
- Garage/Carport Type:Front Load Front Load
- Bedrooms: 3
- Carport: N/A
- Full Baths: 2
- Roof Pitch: 8:12
- Porch Roof Pitch: N/A
- Stories: 1.0
- Wall Construction: 2x4
- Lower Bonus (Sq. Ft.): N/A
- Vaulted Ceiling: Yes
- Depth (Ft): 58
- Width (Ft): 56
- Depth (In.) 4
- Width (In.) 8
- Total Sq. Ft. 2727 Sq.Ft.
- Customizable: Yes
Key Features
- Nook/Breakfast Area
Plan Collections
Plan Styles
- Classical House Plans
- Traditional House Plans

