House Plan 446 Maple Street, Traditional House Plan
Please log in or create account to add the product in wishlist.
Wishlist is not saved permanently yet. Please log in or create account to save it.
Or order by phone: (870) 931-5777
Floor Plans
Description
House Plan 446 – Maple Street | 3‑Bedroom, 2‑Bath Traditional Floor Plan
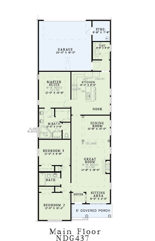
Explore the timeless appeal and thoughtful design of House Plan 446 – Maple Street, a classic house plan offering comfortable and efficient living under one roof. This single‑story home features approximately 1,445 sq. ft. of living space with 3 bedrooms and 2 full bathrooms, making it an excellent choice for families, first‑time homebuyers, or anyone seeking a well‑balanced, traditional layout.
Step inside to a welcoming great room highlighted by an angled fireplace and 10‑foot boxed ceilings, creating a warm gathering space for family time or entertaining. The kitchen includes an eat‑at bar and spacious breakfast room that brings everyone together in the heart of the home. The smart layout places the secondary bedrooms with a full bath between them—perfect for children, guests, or a home office setup—while the master suite offers a peaceful retreat with ten‑foot ceilings, a luxurious master bath with whirlpool tub, dual vanities, and generous walk‑in closets.
Enjoy everyday convenience with a 2‑bay rear‑load garage, traditional Southern design elements, and a covered front porch that enhances curb appeal and outdoor living. Maple Street stands out among popular house plans for its comfortable bedroom arrangements, functional living spaces, and enduring style.
Home Specifications
- Total Living Space: 1445
- Ridge Height (Ft.) 20
- Main Floor (Sq. Ft.): 1445 Sq.Ft
- Ridge Height (In.) 2
- Upper Floor (Sq. Ft.): N/A
- Main Ceiling Height: 9
- Lower Floor (Sq. Ft.): N/A
- Upper Ceiling Height: N/A
- Porch (Sq. Ft.): 144 Sq.Ft.
- Lower Ceiling Height: N/A
- Garage (Sq. Ft.): 374 Sq.Ft.
- Garage: 2 Bay Yes
- Bonus (Sq.Ft): N/A
- Garage/Carport Type:Rear Load Rear Load
- Bedrooms: 3
- Carport: N/A
- Full Baths: 2
- Roof Pitch: 8:12
- Porch Roof Pitch: N/A
- Stories: 1.0
- Wall Construction: 2x4
- Lower Bonus (Sq. Ft.): N/A
- Vaulted Ceiling: No
- Depth (Ft): 77
- Width (Ft): 28
- Depth (In.) N/A
- Width (In.) N/A
- Total Sq. Ft. 1963 Sq.Ft.
- Customizable: Yes
Key Features
- Covered Front Porch
- Great Room
- Main Floor Master
- Narrow Lot House Plans
- No Formal Dining
- Nook/Breakfast Area
- Open Floor Plan House Plans
- Peninsula/Eating Bar
- Walk-in Closet
- Walk-in-Pantry
Plan Collections
Plan Styles
- Southern House Plans
- Traditional House Plans

