House Plan 481 Aspen Heights, Traditional House Plan
Please log in or create account to add the product in wishlist.
Wishlist is not saved permanently yet. Please log in or create account to save it.
Or order by phone: (870) 931-5777
Floor Plans
Description
House Plan 481 Aspen Heights | Classic 3-Bedroom, 2-Bath Home Design
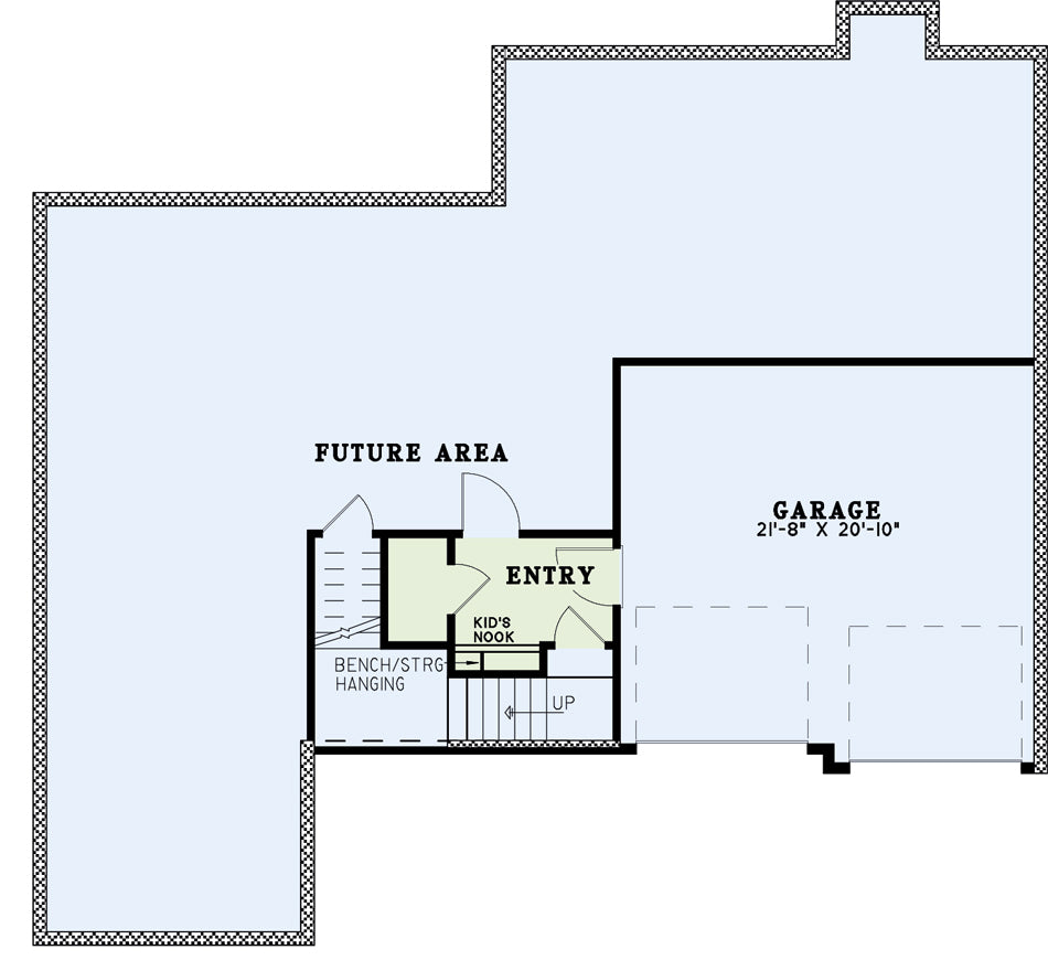
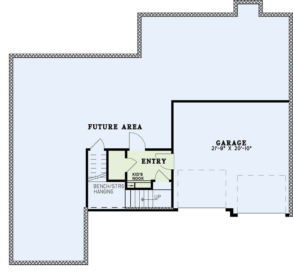
Discover smart design and timeless appeal with House Plan 481 Aspen Heights, a beautifully crafted traditional home created for today’s lifestyle. This well-planned house plan features 3 comfortable bedrooms, 2 full bathrooms, and approximately 2,010 square feet of living space, making it an excellent choice for families, empty nesters, or first-time homeowners. The open-concept layout centers around a spacious great room with vaulted ceilings, providing an inviting atmosphere for everyday living and entertaining. The kitchen flows seamlessly into the dining area, offering efficient workspace, ample storage, and a welcoming gathering spot for family meals. The private primary bedroom includes a relaxing en-suite bath, while the secondary bedrooms are thoughtfully placed for comfort and convenience. A 2-car garage adds functionality, storage, and curb appeal. With its classic exterior, efficient footprint, and livable interior, Aspen Heights is a versatile house plan that blends traditional style with modern comfort—perfect for a wide range of homebuilding needs.
Home Specifications
- Total Living Space: 2010
- Ridge Height (Ft.) 28
- Main Floor (Sq. Ft.): 1935 Sq.Ft
- Ridge Height (In.) 2
- Upper Floor (Sq. Ft.): N/A
- Main Ceiling Height: 9
- Lower Floor (Sq. Ft.): 75 Sq.Ft.
- Upper Ceiling Height: N/A
- Porch (Sq. Ft.): 304 Sq.Ft.
- Lower Ceiling Height: 8
- Garage (Sq. Ft.): 451 Sq.Ft.
- Garage: 2 Bay Yes
- Bonus (Sq.Ft): N/A
- Garage/Carport Type:Front Load Front Load
- Bedrooms: 3
- Carport: N/A
- Full Baths: 2
- Roof Pitch: 10:12
- Porch Roof Pitch: 10:12
- Stories: 1.5
- Wall Construction: 2x4
- Lower Bonus (Sq. Ft.): 1292 Sq.Ft.
- Vaulted Ceiling: Yes
- Depth (Ft): 49
- Width (Ft): 53
- Depth (In.) 4
- Width (In.) N/A
- Total Sq. Ft. 4057 Sq.Ft.
- Customizable: Yes
Key Features
- Covered Front Porch
- Covered Rear Porch
- Formal Dining Room
- Great Room
- Grilling Porch
- Kitchen Island
- Main Floor Master
- Mudroom
- Nook/Breakfast Area
- Open Floor Plan House Plans
- Peninsula/Eating Bar
- Split Bedroom Design
- Split-Level Foyer
- Walk-in Closet
Plan Collections
Plan Styles
- Traditional House Plans

