House Plan 5296 Autumn Place, Craftsman House Plan
Please log in or create account to add the product in wishlist.
Wishlist is not saved permanently yet. Please log in or create account to save it.
Or order by phone: (870) 931-5777
Floor Plans
Description
Discover relaxed sophistication with the Autumn Place House Plan MEN 5296, a Craftsman‑style home boasting over 5,200 sq ft of living space, with 4 bedrooms, 3 full baths, and a 3‑bay garage. Blending timeless exterior details, thoughtful layout and generous living areas, this plan delivers both charm and functionality for your ideal lifestyle.
Why this house plan stands out among house plans:
- Elegant Craftsman exterior with natural materials, warm siding accents and welcoming porch elements
- Open‑concept main level uniting kitchen, dining and great room for seamless entertaining and everyday flow
- Split‑bedroom design separating the master suite from secondary bedrooms to enhance privacy and comfort
- Upper‑level sleeping loft offers versatile space for guests, study, hobby or bonus living area
- Main‑level master suite with luxury bath and generous walk‑in closet—designed as a personal retreat
- Covered rear porch and outdoor living access for relaxed indoor‑outdoor lifestyle
Ready to turn your “house plans” search into something you can build? Explore the full specifications of Autumn Place and envision life in a home where Craftsman charm meets modern living.
Home Specifications
- Total Living Space: 5298
- Ridge Height (Ft.) 36
- Main Floor (Sq. Ft.): 3917 Sq.Ft
- Ridge Height (In.) 6
- Upper Floor (Sq. Ft.): N/A
- Main Ceiling Height: 10
- Lower Floor (Sq. Ft.): 1381 Sq.Ft.
- Upper Ceiling Height: 10
- Porch (Sq. Ft.): 748 Sq.Ft.
- Lower Ceiling Height: 10
- Garage (Sq. Ft.): 976 Sq.Ft.
- Garage: 3 Bay Yes
- Bonus (Sq.Ft): 990 Sq.Ft.
- Garage/Carport Type:Side Load Side Load
- Bedrooms: 3
- Carport: No
- Full Baths: 4
- Roof Pitch: 12:12
- Half Baths: 2
- Porch Roof Pitch: N/A
- Stories: 1.5
- Wall Construction: 2x6
- Lower Bonus (Sq. Ft.): N/A
- Vaulted Ceiling: No
- Depth (Ft): 90
- Width (Ft): 83
- Depth (In.) N/A
- Width (In.) 8
- Total Sq. Ft. 8012 Sq.Ft.
- Customizable: Yes
Key Features
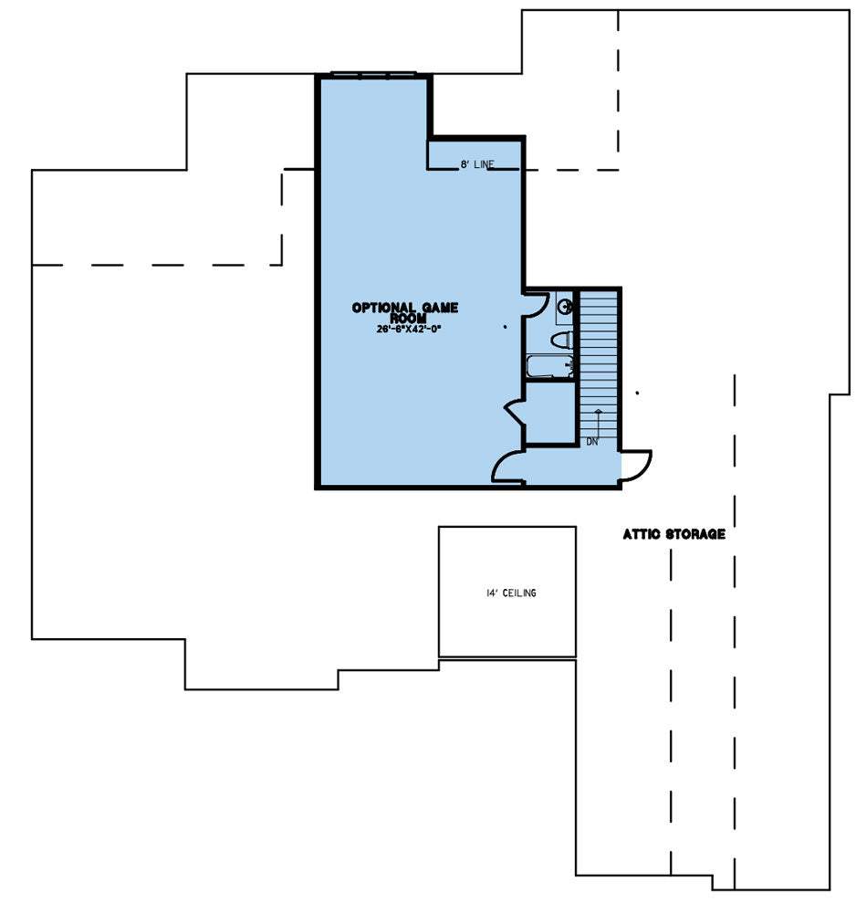
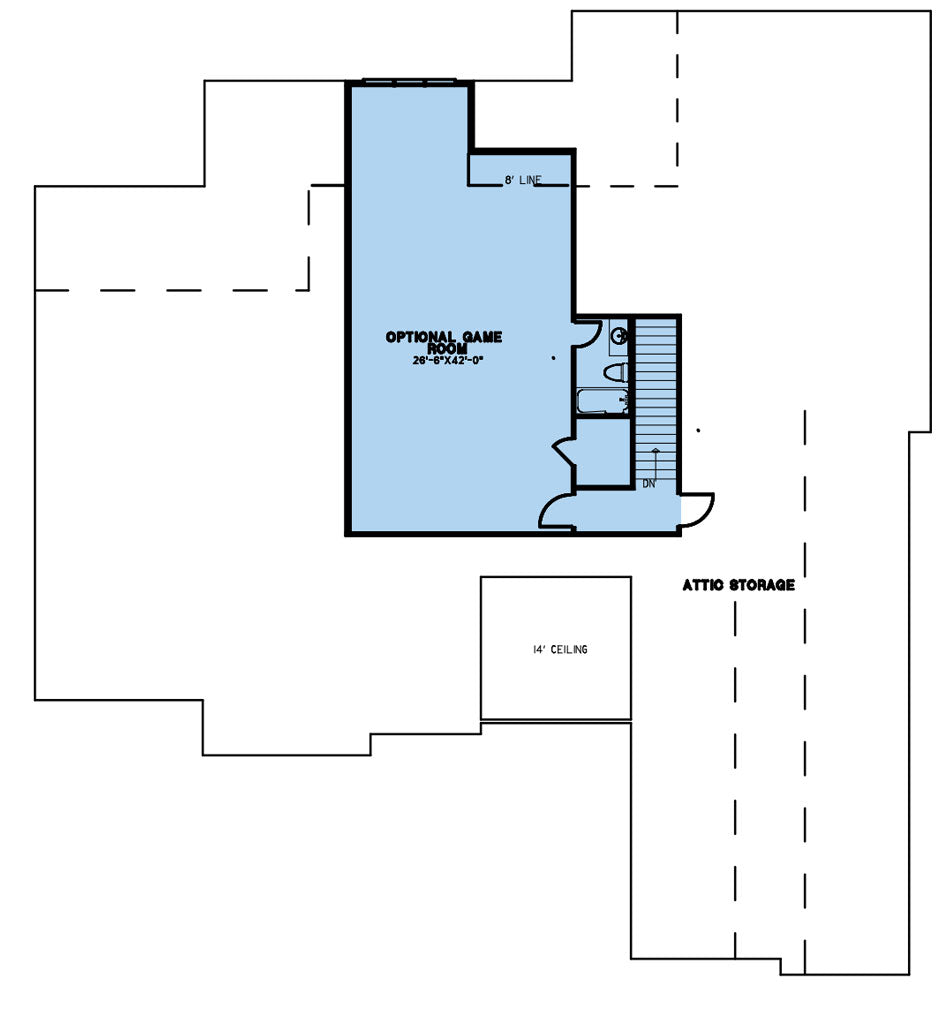
- Bonus/Game and Media Room
- Covered Front Porch
- Covered Rear Porch
- Exercise Room
- Fireplace in Master
- Formal Dining Room
- Game Room
- Great Room
- Grilling Porch
- Home Office/Study
- Kitchen Island
- Main Floor Master
- Mudroom
- Open Floor Plan House Plans
- Peninsula/Eating Bar
- Split Bedroom Design
- Walk-in-Pantry
Plan Collections
- Michael E. Nelson House Plans Collection
Plan Styles
- Craftsman House Plans
- Luxury House Plans
- Modern Contemporary House Plans
- Traditional House Plans

