House Plan 650 Olive Street, Traditional House Plan
Please log in or create account to add the product in wishlist.
Wishlist is not saved permanently yet. Please log in or create account to save it.
Or order by phone: (870) 931-5777
Floor Plans
Description
House Plan 650 Olive Street – NDG 650 | Traditional 4‑Bedroom, 3‑Bath Classic Home Plan
Looking for standout house plans that combine timeless design with functional family living? House Plan 650 Olive Street is a beautifully crafted traditional home plan from Nelson Design Group that delivers style, comfort, and versatility. This generous design features 4 bedrooms and 3 full bathrooms within approximately 3,005 sq ft of living space, making it ideal for growing families or homeowners who love open, gracious interiors and classic curb appeal.
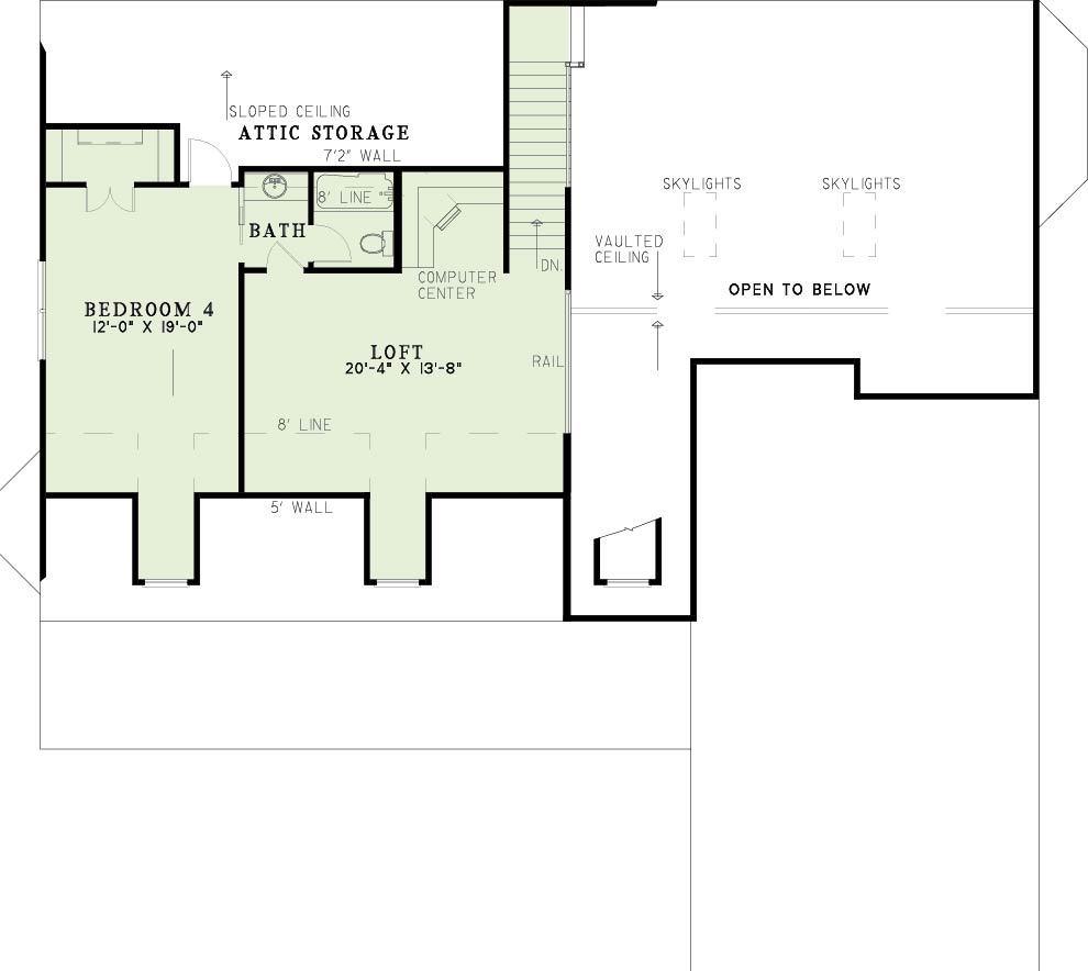
From the charming covered front porch and architectural dormers to the welcoming foyer, this plan balances aesthetic appeal with thoughtful layout. The main living areas flow effortlessly, offering plenty of room for everyday living and entertaining. A large loft or bonus space on the upper floor provides flexible options for a home office, media room, or play area — perfect for modern lifestyles. With a 2‑bay garage, multiple bedrooms, and well‑appointed baths, this plan supports practical daily routines while offering style that feels like home.
Whether you’re browsing house plans with abundant space, multiple bedrooms and baths, or traditional architectural details, House Plan 650 Olive Street stands out as a compelling choice for your next build.
Home Specifications
- Total Living Space: 3005
- Ridge Height (Ft.) 27
- Main Floor (Sq. Ft.): 2277 Sq.Ft
- Ridge Height (In.) 2
- Upper Floor (Sq. Ft.): 728 Sq.Ft.
- Main Ceiling Height: 9
- Lower Floor (Sq. Ft.): N/A
- Upper Ceiling Height: 8
- Porch (Sq. Ft.): 729 Sq.Ft.
- Lower Ceiling Height: N/A
- Garage (Sq. Ft.): 649 Sq.Ft.
- Garage: 2 Bay Yes
- Bonus (Sq.Ft): N/A
- Garage/Carport Type:Side Load Side Load
- Bedrooms: 4
- Carport: N/A
- Full Baths: 3
- Roof Pitch: 10:12
- Half Baths: 1
- Porch Roof Pitch: 4:12
- Stories: 1.5
- Wall Construction: 2x4
- Lower Bonus (Sq. Ft.): N/A
- Vaulted Ceiling: Yes
- Depth (Ft): 72
- Width (Ft): 67
- Depth (In.) 6
- Width (In.) 8
- Total Sq. Ft. 4383 Sq.Ft.
- Customizable: Yes
Key Features
- Covered Front Porch
- Covered Rear Porch
- Decks Patios Balconies
- Formal Dining Room
- Great Room
- Kitchen Island
- Loft
- Main Floor Master
- Mudroom
- Open Floor Plan House Plans
- Peninsula/Eating Bar
- Saferoom
- Screened Porch
- Split Bedroom Design
- Walk-in Closet
Plan Collections
Plan Styles
- Country Home House Plans
- Farmhouse House Plans
- Low Country House Plans
- Southern House Plans
- Traditional House Plans





