House Plan 694 Armodius, French Classical House Plan
Please log in or create account to add the product in wishlist.
Wishlist is not saved permanently yet. Please log in or create account to save it.
Or order by phone: (870) 931-5777
Floor Plans
Description
House Plan 694 Armodius – French Classical 4‑Bedroom House Plan (NDG 694)
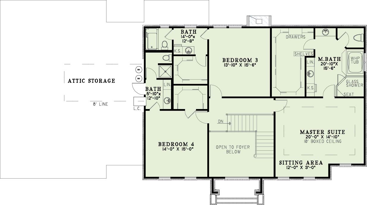
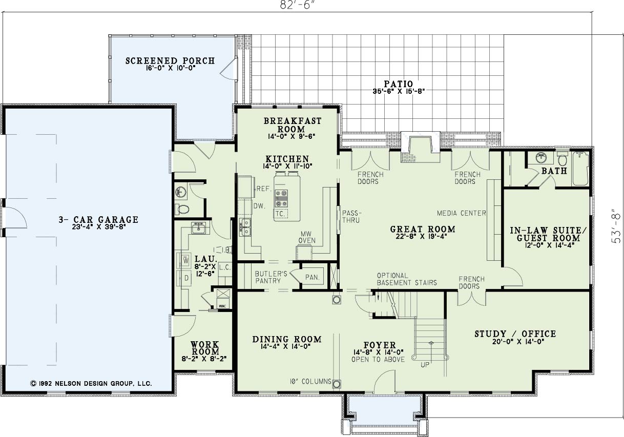
Elevate your home building journey with House Plan 694 Armodius (Plan NDG 694), a luxurious French Classical house plan from Nelson Design Group designed for comfort, elegance, and functional family living. This impressive two‑story home offers approximately 3,558 sq. ft. of living space, featuring 4 bedrooms, 4 full bathrooms, and 1 half bath, making it perfect for large families, multigenerational households, or homeowners who want space for guests and everyday life.
Step inside to discover a welcoming layout that includes a spacious great room with a built‑in media center and French door access to the patio — ideal for entertaining or relaxing outdoors with ease. A private study/office provides a quiet retreat for work or reading, while a luxurious in‑law suite on the main level offers comfort and privacy for extended family or visitors. The well‑appointed kitchen with island and breakfast nook opens to casual dining and comfortable living spaces, and a large screened porch extends your living area outdoors. Upstairs, the elegant master suite and two additional bedrooms provide peaceful retreats with generous closet space and private baths. With a 3‑bay side‑load garage and classic architectural details like arched entries and formal dining spaces, House Plan 694 Armodius stands out among popular house plans for its blend of timeless design, versatile living spaces, and everyday functionality.
Home Specifications
- Total Living Space: 3558
- Ridge Height (Ft.) 31
- Main Floor (Sq. Ft.): 2066 Sq.Ft
- Ridge Height (In.) 0
- Upper Floor (Sq. Ft.): 1492 Sq.Ft.
- Main Ceiling Height: 9
- Lower Floor (Sq. Ft.): N/A
- Upper Ceiling Height: 9
- Porch (Sq. Ft.): 260 Sq.Ft.
- Lower Ceiling Height: N/A
- Garage (Sq. Ft.): 694 Sq.Ft.
- Garage: 3 Bay Yes
- Bonus (Sq.Ft): N/A
- Garage/Carport Type:Side Load Side Load
- Bedrooms: 4
- Carport: N/A
- Full Baths: 4
- Roof Pitch: 8:12
- Half Baths: 1
- Porch Roof Pitch: N/A
- Stories: 2.0
- Wall Construction: 2x4
- Lower Bonus (Sq. Ft.): N/A
- Vaulted Ceiling: No
- Depth (Ft): 53
- Width (Ft): 82
- Depth (In.) 8
- Width (In.) 6
- Total Sq. Ft. 4512 Sq.Ft.
- Customizable: Yes
Key Features
- Arched Entry
- Butler's Pantry
- Covered Rear Porch
- Decks Patios Balconies
- Formal Dining Room
- Great Room
- Home Office/Study
- In-Law Suite Private Guest
- Kitchen Island
- Nook/Breakfast Area
- Open Floor Plan House Plans
- Peninsula/Eating Bar
- Screened Porch
- Sitting Area
- Split Bedroom Design
- Walk-in Closet
- Walk-in-Pantry
Plan Collections
- Multigenerational House Plans
Plan Styles
- Classical House Plans
- French Classic House Plans
- Luxury House Plans
- Traditional House Plans







