House Plan 726 Rusty Creek, Farmhouse House Plan
Please log in or create account to add the product in wishlist.
Wishlist is not saved permanently yet. Please log in or create account to save it.
Or order by phone: (870) 931-5777
Floor Plans
Description
House Plan 726 Rusty Creek – Farmhouse 4‑Bedroom House Plan (NDG 726)
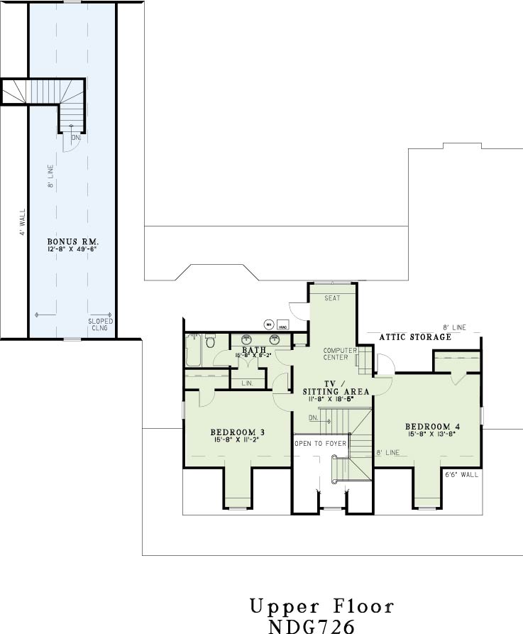
Discover the warm charm and spacious design of House Plan 726 Rusty Creek, a standout farmhouse house plan by Nelson Design Group that combines classic exterior appeal with thoughtful family‑friendly living. This generous plan offers approximately 3,137 sq. ft. of living space, featuring 4 bedrooms and 3 full bathrooms — perfect for growing families or those who enjoy comfortable entertaining and everyday living. The farmhouse style lends inviting curb appeal with traditional design elements, while the well‑planned interior supports seamless flow between shared spaces. With multiple bedrooms for family and guests, flexible common areas for gathering, and practical traffic flow throughout, this house plan delivers a perfect balance of space and design. A 2‑bay garage adds convenience and extra storage, making it easy to accommodate vehicles and outdoor gear. House Plan 726 Rusty Creek stands out among popular house plans for its blend of rustic charm, spacious layout, and functional design that supports modern living.
Home Specifications
- Total Living Space: 3137
- Ridge Height (Ft.) 26
- Main Floor (Sq. Ft.): 2294 Sq.Ft
- Ridge Height (In.) 9
- Upper Floor (Sq. Ft.): 843 Sq.Ft.
- Main Ceiling Height: 9
- Lower Floor (Sq. Ft.): N/A
- Upper Ceiling Height: 9
- Porch (Sq. Ft.): 492 Sq.Ft.
- Lower Ceiling Height: N/A
- Garage (Sq. Ft.): 1220 Sq.Ft.
- Garage: 2 Bay Yes
- Bonus (Sq.Ft): 668 Sq.Ft.
- Garage/Carport Type:Side Load Side Load
- Bedrooms: 4
- Carport: N/A
- Full Baths: 3
- Roof Pitch: 10:12
- Porch Roof Pitch: 5:12
- Stories: 1.5
- Wall Construction: 2x4
- Lower Bonus (Sq. Ft.): N/A
- Vaulted Ceiling: No
- Depth (Ft): 82
- Width (Ft): 77
- Depth (In.) N/A
- Width (In.) 4
- Total Sq. Ft. 5517 Sq.Ft.
- Customizable: Yes
Key Features
- Balcony
- Bonus Room Over Garage
- Covered Front Porch
- Covered Rear Porch
- Decks Patios Balconies
- Formal Dining Room
- Great Room
- Grilling Porch
- In-Law Suite Private Guest
- Jack & Jill Bathroom
- Main Floor Master
- Nook/Breakfast Area
- Open Floor Plan House Plans
- Peninsula/Eating Bar
- Split Bedroom Design
- Walk-in Closet
- Wrap-Around Porch
Plan Collections
Plan Styles
- Country Home House Plans
- Farmhouse House Plans
- Low Country House Plans
- Southern House Plans
- Traditional House Plans





