House Plan 925 Park Street, Midtown Village House Plan
Please log in or create account to add the product in wishlist.
Wishlist is not saved permanently yet. Please log in or create account to save it.
Or order by phone: (870) 931-5777
Floor Plans
Description
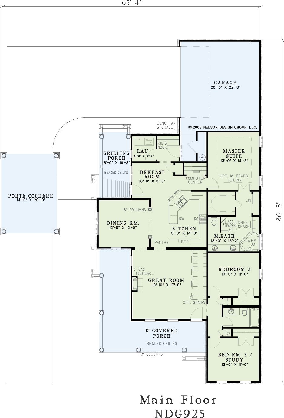
House Plan 925 – Park Street | Midtown Village Home with Thoughtful Family Living
House Plan 925, Park Street, is a well-proportioned traditional home that blends practical design with charming architectural details, perfect for families seeking comfort and everyday functionality. With approximately 1,845 square feet of living space, this single-story plan features an open layout that connects the great room, kitchen, and breakfast area, creating a bright central gathering space ideal for daily life and entertaining. The formal dining room and convenient computer center enhance everyday convenience, while the privately located owner’s suite offers a tranquil retreat with a well-appointed bathroom. Two additional bedrooms and a second full bath provide flexibility for family members or guests. Covered front and rear porches expand outdoor living, and a porte-cochere and mudroom add both style and practical utility to this inviting home.
Key Features
- Approximately 1,845 sq. ft. of thoughtfully arranged living space
- 3 bedrooms and 2 full bathrooms for family comfort and flexibility
- Open great room, kitchen, and breakfast area designed for everyday living
- Formal dining room and convenient computer center for work and meals
- Spacious owner’s suite with private bath
- Covered front porch and rear porch for outdoor enjoyment
- Porte-cochere and mudroom enhance curb appeal and practical functionality
- Traditional neighborhood style with timeless curb appeal
Home Specifications
- Total Living Space: 1845
- Ridge Height (Ft.) 29
- Main Floor (Sq. Ft.): 1845 Sq.Ft
- Ridge Height (In.) 8
- Upper Floor (Sq. Ft.): N/A
- Main Ceiling Height: 9
- Lower Floor (Sq. Ft.): N/A
- Upper Ceiling Height: 8
- Porch (Sq. Ft.): 554 Sq.Ft.
- Lower Ceiling Height: N/A
- Garage (Sq. Ft.): 808 Sq.Ft.
- Garage: 2 Bay Yes
- Bonus (Sq.Ft): 1191 Sq.Ft.
- Garage/Carport Type:Side Load and Porte-Cochere Side Load and Porte-Cochere
- Bedrooms: 3
- Carport: Yes
- Full Baths: 2
- Roof Pitch: 10:12
- Porch Roof Pitch: N/A
- Stories: 1.0
- Wall Construction: 2x4
- Lower Bonus (Sq. Ft.): N/A
- Vaulted Ceiling: No
- Depth (Ft): 86
- Width (Ft): 65
- Depth (In.) 8
- Width (In.) 4
- Total Sq. Ft. 4398 Sq.Ft.
- Customizable: Yes
Key Features
- Bonus Room
- Covered Front Porch
- Covered Rear Porch
- Formal Dining Room
- Great Room
- Grilling Porch
- Home Office/Study
- Main Floor Master
- Mudroom
- Nook/Breakfast Area
- Open Floor Plan House Plans
- Peninsula/Eating Bar
- Porte-Cochere
- Walk-in Closet
- Wrap-Around Porch
Plan Collections
- Midtown Village House Plans Collection
Plan Styles
- Arts & Crafts House Plans
- Country Home House Plans
- Craftsman House Plans
- Southern House Plans
- Traditional House Plans
- Traditional Neighborhood Design (TND) House Plans







