House Plan 5001 The Croft, French Country House Plan
House Plan:MEN 5001
$2,050.00
/
Shipping calculated at checkout.
Add to Wishlist
Remove from Wishlist
[View Wishlist]
Please log in or create account to add the product in wishlist.
Wishlist is not saved permanently yet. Please log in or create account to save it.
Or order by phone: (870) 931-5777
Floor Plans
Description
House Plan MEN 5001 The Croft – French Country Elegance Meets Everyday Comfort
Looking for luxury house plans that offer timeless European charm and practical family living? House Plan MEN 5001 The Croft is a beautifully designed French Country-style home offering 3,713 square feet of heated living space, with 4 bedrooms, 3 full baths, 1 half bath, and a 4-car side-load garage. This plan balances elegance with functionality, perfect for families who love to entertain or simply enjoy refined comfort.
Top Features of The Croft
- Grand open-concept living: The vaulted great room features a warm fireplace and double doors that lead to a covered grilling porch—seamlessly blending indoor and outdoor living.
- Chef-inspired kitchen: Enjoy a double island layout, walk-in pantry, butler’s pantry, and connections to both the breakfast nook and formal dining room.
- Elegant master suite: A true retreat featuring a private fireplace, vaulted ceiling, luxurious whirlpool tub with a gas fireplace backdrop, dual vanities, a large glass shower, and a massive walk-in closet.
- Dedicated office or theater space: A curved front window wall gives this flexible room architectural distinction—perfect as a home office, study, or media room.
- Well-zoned bedrooms: Secondary bedrooms are grouped for privacy—two share a Jack-and-Jill bath, while the fourth enjoys its own bath, ideal for guests.
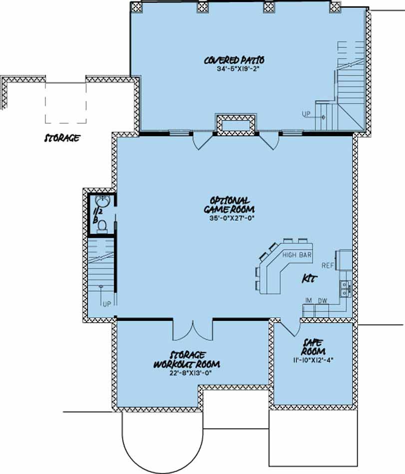
- Optional daylight basement: Add even more living space with an expansive lower level that includes a game room with kitchenette, safe room, fitness/storage area, and direct patio access.
Home Specifications
- Total Living Space: 3713
- Ridge Height (Ft.) 34
- Main Floor (Sq. Ft.): 3713 Sq.Ft
- Ridge Height (In.) 4
- Upper Floor (Sq. Ft.): N/A
- Main Ceiling Height: 10
- Lower Floor (Sq. Ft.): 1405 Sq.Ft.
- Upper Ceiling Height: N/A
- Porch (Sq. Ft.): 1279 Sq.Ft.
- Lower Ceiling Height: N/A
- Garage (Sq. Ft.): 1233 Sq.Ft.
- Garage: 4 Bay Yes
- Bonus (Sq.Ft): N/A
- Garage/Carport Type:Side Load Side Load
- Bedrooms: 4
- Carport: N/A
- Full Baths: 3
- Roof Pitch: 12:12
- Half Baths: 1
- Porch Roof Pitch: N/A
- Stories: 2.0
- Wall Construction: 2x4
- Lower Bonus (Sq. Ft.): N/A
- Vaulted Ceiling: Yes
- Depth (Ft): 95
- Width (Ft): 78
- Depth (In.) 5
- Width (In.) 6
- Total Sq. Ft. 7630 Sq.Ft.
- Customizable: Yes
Key Features
- Arched Entry
- Bonus/Game and Media Room
- Butler's Pantry
- Covered Front Porch
- Covered Rear Porch
- Decks Patios Balconies
- Exercise Room
- Fireplace in Master
- Formal Dining Room
- Great Room
- Grilling Porch
- Home Office/Study
- Home Theater
- Jack & Jill Bathroom
- Kitchen Island
- Main Floor Master
- Media Room
- Mudroom
- Nook/Breakfast Area
- Open Floor Plan House Plans
- Outdoor Living Space
- Oversized Garage
- Peninsula/Eating Bar
- Saferoom
- Split Bedroom Design
- Vaulted High Cathedral Ceiling
- Walk-in Closet
- Walk-in-Pantry
Plan Collections
- Customizable Exteriors House Plans Collection
- Michael E. Nelson House Plans Collection
Plan Styles
- Craftsman House Plans
- French Country House Plans
- Luxury House Plans
- Rustic House Plans
- Traditional House Plans

