House Plan 5015 Aspen Falls, Country Home House Plan
House Plan:MEN 5015
$1,350.00
/
Shipping calculated at checkout.
Add to Wishlist
Remove from Wishlist
[View Wishlist]
Please log in or create account to add the product in wishlist.
Wishlist is not saved permanently yet. Please log in or create account to save it.
Or order by phone: (870) 931-5777
Floor Plans
Description
Introducing Aspen Falls Plan MEN 5015
If you're searching for house plans that combine rustic charm with modern comfort, Aspen Falls Plan MEN 5015 offers a compelling choice. Designed by Michael E. Nelson, this country-style home emphasizes warmth, functionality, and a seamless connection to the outdoors.
Why Aspen Falls Stands Out Among House Plans
-
Inviting Country Aesthetic
The expansive front porch, spanning the entire width of the home, sets a welcoming tone. It's the perfect spot to enjoy a refreshing glass of sweet tea while greeting friends and family on a summer afternoon. -
Open and Functional Layout
Inside, the den features a cozy fireplace and flows into the kitchen and dining areas. The kitchen boasts ample cabinet and counter space, with bar seating along the peninsula—ideal for quick meals or casual conversations. -
Main Floor Master Suite
The first-floor master bedroom includes an ensuite bathroom with dual sink vanity, tile shower, makeup center, and walk-in closet. Two linen closets provide additional storage. -
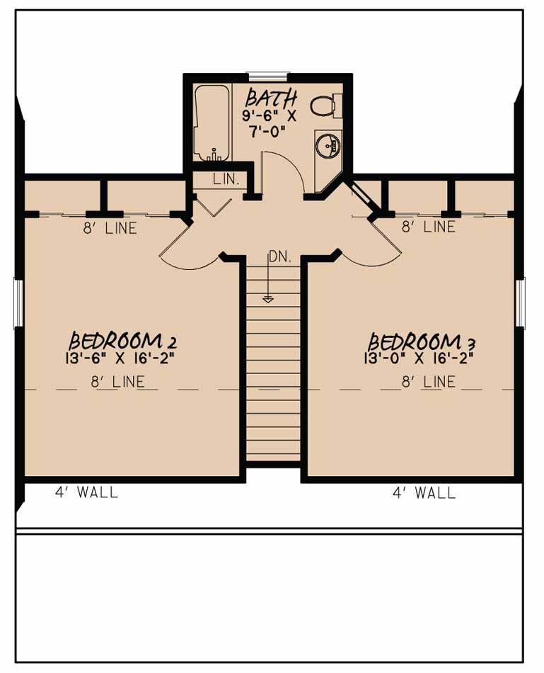
Spacious Upper-Level Bedrooms
Upstairs, two generously sized bedrooms each contain two closets. A full bath and linen closet are conveniently located in the hallway between them. -
Basement with Outdoor Access
The basement, accessible from the main floor, features a large open space, full bath, utility room, and storage room. It also offers access to the outdoors, enhancing the home's connection to nature. -
Quality Construction Features
Aspen Falls includes metal roofing, a simple roofline, and exposed rafters on both covered porches, contributing to its rustic appeal.
Home Specifications
- Total Living Space: 1661
- Ridge Height (Ft.) 22
- Main Floor (Sq. Ft.): 1034 Sq.Ft
- Ridge Height (In.) 3
- Upper Floor (Sq. Ft.): 627 Sq.Ft.
- Main Ceiling Height: 8
- Lower Floor (Sq. Ft.): 1034 Sq.Ft.
- Upper Ceiling Height: 8
- Porch (Sq. Ft.): 253 Sq.Ft.
- Lower Ceiling Height: 9
- Garage (Sq. Ft.): N/A
- Garage: No
- Bonus (Sq.Ft): N/A
- Garage/Carport Type:N/A N/A
- Bedrooms: 3
- Carport: N/A
- Full Baths: 3
- Roof Pitch: 9:12
- Half Baths: 1
- Porch Roof Pitch: 5:12
- Stories: 2.5
- Wall Construction: 2x6
- Lower Bonus (Sq. Ft.): N/A
- Vaulted Ceiling: No
- Depth (Ft): 48
- Width (Ft): 34
- Depth (In.) 8
- Width (In.) 2
- Total Sq. Ft. 2948 Sq.Ft.
- Customizable: Yes
Key Features
- Covered Front Porch
- Covered Rear Porch
- Grilling Porch
- Main Floor Master
- Narrow Lot House Plans
- No Formal Dining
- Open Floor Plan House Plans
- Peninsula/Eating Bar
- Split Bedroom Design
- Walk-in Closet
Plan Collections
- Customizable Exteriors House Plans Collection
- Michael E. Nelson House Plans Collection
Plan Styles
- Country Home House Plans
- Low Country House Plans
- Mountain House Plans
- Rustic House Plans

