House Plan 5170 Broken Arrow Farms, Farmhouse House Plan
House Plan:MEN 5170
$1,850.00
/
Shipping calculated at checkout.
Add to Wishlist
Remove from Wishlist
[View Wishlist]
Please log in or create account to add the product in wishlist.
Wishlist is not saved permanently yet. Please log in or create account to save it.
Or order by phone: (870) 931-5777
Floor Plans
Description
Farmhouse Elegance in Signature House Plans: Plan MEN 5170 “Broken Arrow Farms”
When your search for house plans leads you to elegance, space, and personality, Broken Arrow Farms Plan MEN 5170 delivers with a beautifully balanced farmhouse–style layout designed for real living. This plan merges classic rural charm with modern conveniences — perfect for growing families or those who want a home with character.
Why Broken Arrow Farms Stands Out Among House Plans
-
Spacious and versatile footprint
With 3,474 square feet of living space across 1½ stories, this plan includes 4 bedrooms and 4 full baths and features a 3‑car side‑load garage. The generous dimensions (79’‑2″ width × 85’‑8″ depth) give you room to breathe and grow. -
Inviting wrap‑around porch and flow
A sweeping wrap‑around porch welcomes you into the home, while a foyer opens into a great room that connects to the kitchen and other living areas. The layout encourages seamless interaction while maintaining distinct spaces. -
Gathering areas designed for family life
The great room anchors the home with a fireplace and views into adjoining spaces. The kitchen features a large island, ideal for casual meals or conversation, while a formal dining room with a coffered ceiling and French doors opens to the grilling porch for indoor‑outdoor entertaining. -
Thoughtfully placed bedrooms
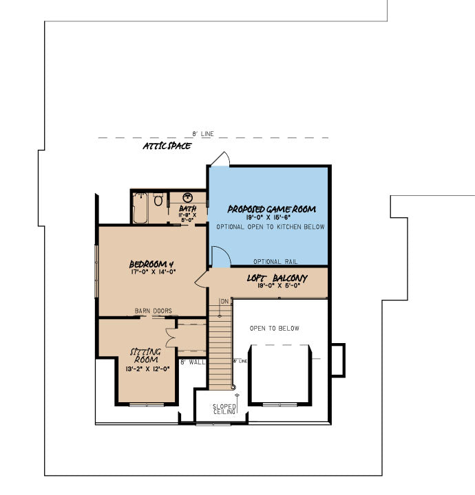
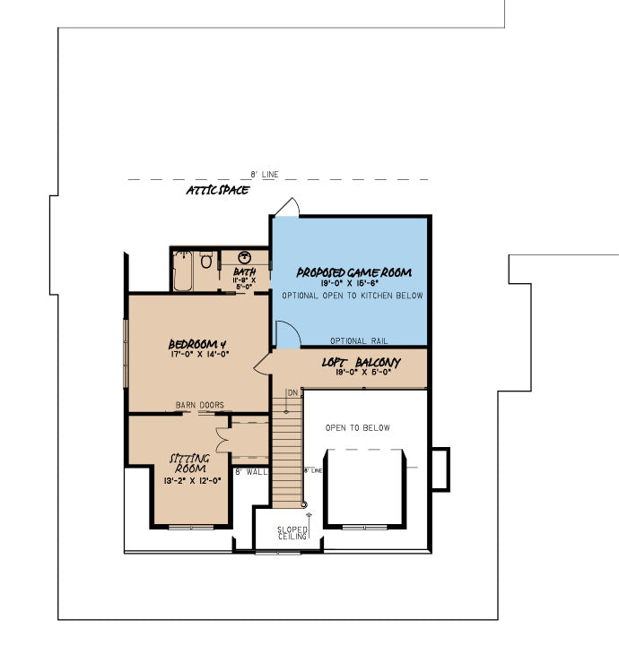
Bedrooms 2 and 3 are tucked away for privacy—one with its own bath, the other sharing the hall bath. Upstairs, bedroom 4 enjoys a private bath and sits adjacent to a sitting room, with a bonus/game room that can be finished if additional space is desired. -
Functional extras included
The design includes a spacious laundry room with a dog shower, a huge walk‑in pantry, and a home office that can double as a breakfast room. These features underscore its appeal in the world of house plans that combine elegance with utility.
Home Specifications
- Total Living Space: 3474
- Ridge Height (Ft.) 30
- Main Floor (Sq. Ft.): 2646 Sq.Ft
- Ridge Height (In.) 9
- Upper Floor (Sq. Ft.): 828 Sq.Ft.
- Main Ceiling Height: 9
- Lower Floor (Sq. Ft.): N/A
- Upper Ceiling Height: 8
- Porch (Sq. Ft.): 1265 Sq.Ft.
- Lower Ceiling Height: N/A
- Garage (Sq. Ft.): 989 Sq.Ft.
- Garage: 3 Bay Yes
- Bonus (Sq.Ft): 313 Sq.Ft.
- Garage/Carport Type:Side Load Side Load
- Bedrooms: 4
- Carport: N/A
- Full Baths: 4
- Roof Pitch: 8:12
- Porch Roof Pitch: 4:12
- Stories: 1.5
- Wall Construction: 2x6
- Lower Bonus (Sq. Ft.): N/A
- Vaulted Ceiling: No
- Depth (Ft): 85
- Width (Ft): 79
- Depth (In.) 8
- Width (In.) 2
- Total Sq. Ft. 6041 Sq.Ft.
- Customizable: Yes
Key Features
- Balcony
- Bonus/Game and Media Room
- Covered Front Porch
- Covered Rear Porch
- Formal Dining Room
- Great Room
- Grilling Porch
- Home Office/Study
- Kitchen Island
- Main Floor Master
- Mudroom
- Nook/Breakfast Area
- Open Floor Plan House Plans
- Outdoor Kitchen
- Peninsula/Eating Bar
- Sitting Area
- Split Bedroom Design
- Walk-in Closet
- Walk-in-Pantry
- Wrap-Around Porch
Plan Collections
- Modern Farmhouse Plans
- Michael E. Nelson House Plans Collection
Plan Styles
- Country Home House Plans
- Farmhouse House Plans
- Luxury House Plans
- Southern House Plans
- Traditional House Plans













