Modern Farmhouse Plan, Homestead Retreat 5457
House Plan:MEN 5457
$1,200.00
/
Add to Wishlist
Remove from Wishlist
[View Wishlist]
Please log in or create account to add the product in wishlist.
Wishlist is not saved permanently yet. Please log in or create account to save it.
Or order by phone: (870) 931-5777
Floor Plans
Description
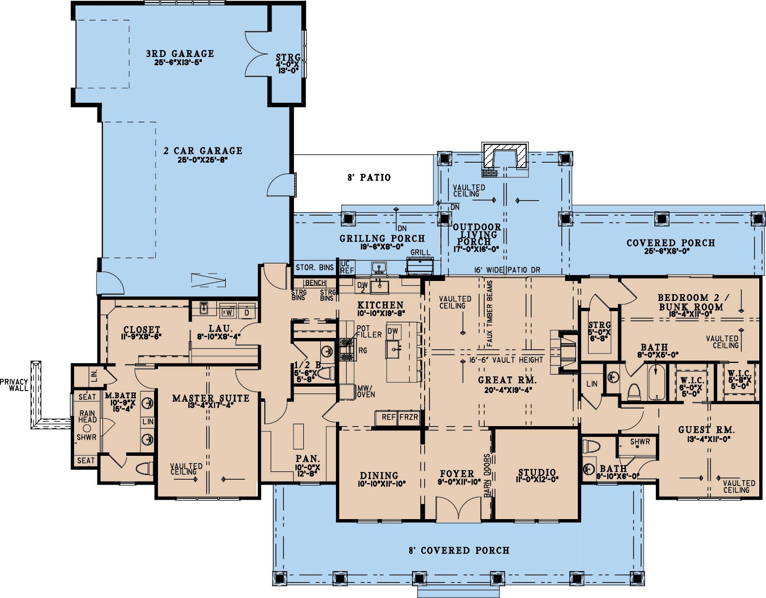
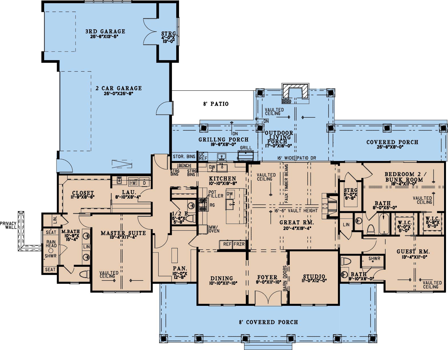
Discover the Plan MEN 5457 “Homestead Retreat” from Nelson Design Group — a thoughtfully crafted one-story home offering an ideal blend of everyday livability and stylish appeal.
Why You’ll Love This House Plan
- With approximately 2,650 sq ft of living space, this plan delivers generous room without overwhelming scale.
- The footprint spans 91 ft 5 in wide by 77 ft deep, making for a broad yet balanced layout that commands curb presence while fitting comfortably on many lots.
- It’s designed with 3 bedrooms, 3 full baths, and a 3‑car garage, combining family-friendly flexibility with modern convenience.
- The exterior delivers strong modern farmhouse curb appeal—expect a welcoming covered porch, a mix of materials (board‑and‑batten siding, stone or timber accents), and clean lines that resonate with contemporary rural style.
- Inside you’ll find an open-concept great room, kitchen, and dining zone that flow together—ideal for family gatherings, entertaining, or simply staying connected while doing everyday tasks.
- The master suite is designed as a retreat: vaulted ceilings, a generous walk-in closet, dual vanities, a freestanding tub or large shower, and easy access to a laundry/mudroom zone for practicality.
- On the opposite side of the home are the additional bedrooms and baths—offering separation from the master suite and giving guests or children their own comfortable zone.
- Outdoor living is well integrated: a covered grilling porch or back patio, generous windows to bring light, and thoughtful transitions between inside and outside.
Who This Plan Is For
If you’re seeking a house plan that merges modern farmhouse aesthetics with smart, livable design, the “Homestead Retreat” is a strong choice. It’s especially well-suited to:
- Families looking for spacious single-story living with ample social zones and private retreats.
- Homeowners who want stylish curb appeal rooted in farmhouse architecture but with contemporary touches.
- Buyers valuing functional layout — open living areas plus dedicated bedroom zones and logical transitions (e.g., mudroom, laundry proximate to master).
- Anyone wanting a home that suits both everyday life and entertaining, with indoor-outdoor flow and flexible spaces.
Home Specifications
- Total Living Space: 2650
- Ridge Height (Ft.) 27
- Main Floor (Sq. Ft.): 2650 Sq.Ft
- Ridge Height (In.) 2
- Upper Floor (Sq. Ft.): N/A
- Main Ceiling Height: 10
- Lower Floor (Sq. Ft.): N/A
- Upper Ceiling Height: N/A
- Porch (Sq. Ft.): 1082 Sq.Ft.
- Lower Ceiling Height: N/A
- Garage (Sq. Ft.): 1066 Sq.Ft.
- Garage: 3 Bay Yes
- Bonus (Sq.Ft): N/A
- Garage/Carport Type:Side Load Side Load
- Bedrooms: 3
- Carport: N/A
- Full Baths: 3
- Roof Pitch: 8:12
- Half Baths: 1
- Porch Roof Pitch: 4:12
- Stories: 1.0
- Wall Construction: 2x4
- Lower Bonus (Sq. Ft.): N/A
- Vaulted Ceiling: Yes
- Depth (Ft): 77
- Width (Ft): 91
- Depth (In.) N/A
- Width (In.) 5
- Total Sq. Ft. 4798 Sq.Ft.
- Customizable: Yes
Key Features
- Covered Front Porch
- Covered Rear Porch
- Decks Patios Balconies
- Formal Dining Room
- Great Room
- Grilling Porch
- Home Office/Study
- Kitchen Island
- Main Floor Master
- Outdoor Living Space
- Oversized Garage
- Split Bedroom Design
- Vaulted High Cathedral Ceiling
- Walk-in Closet
- Walk-in-Pantry
Plan Collections
- Barn Style Collection
- Michael E. Nelson House Plans Collection
- Modern Farmhouse Plans
Plan Styles
- Country Home House Plans
- Farmhouse House Plans
- Luxury House Plans
- Modern Contemporary House Plans











