House Plan 1649 Cliffs II, Angler Mountain House Plan
Please log in or create account to add the product in wishlist.
Wishlist is not saved permanently yet. Please log in or create account to save it.
Or order by phone: (870) 931-5777
Floor Plans
Description
House Plan NDG 1649 – Cliffs II (Angler Mountain Collection): Rustic Sophistication with Spacious Design
For those exploring house plans that combine breathtaking mountain charm with modern luxury and thoughtful functionality, House Plan NDG 1649 – Cliffs II stands out beautifully. This exceptional two‑story home spans approximately 3,734 square feet of livable space, balancing grand scale with cozy, intentional design.
Dramatic Curb Appeal & Inviting Layout
A distinctive courtyard-style entry, a spacious three-bay angled garage, and striking rustic detailing create a statement-making entrance that sets the tone for the home’s craftsman-quality aesthetics.
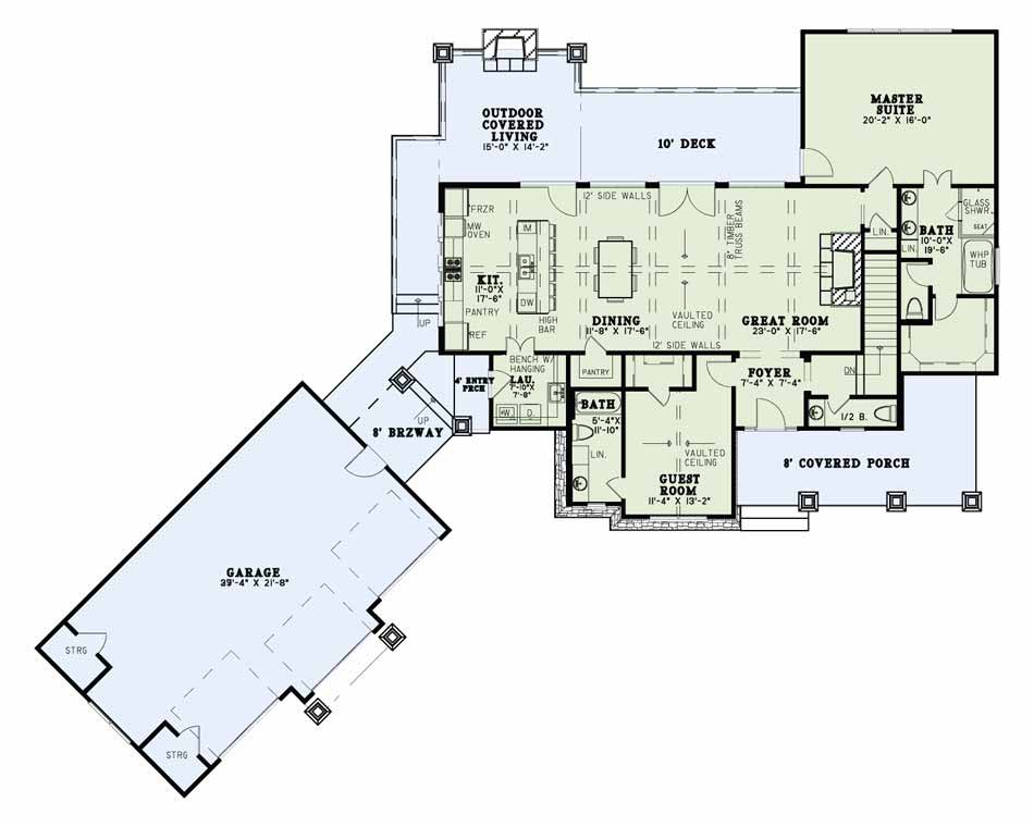
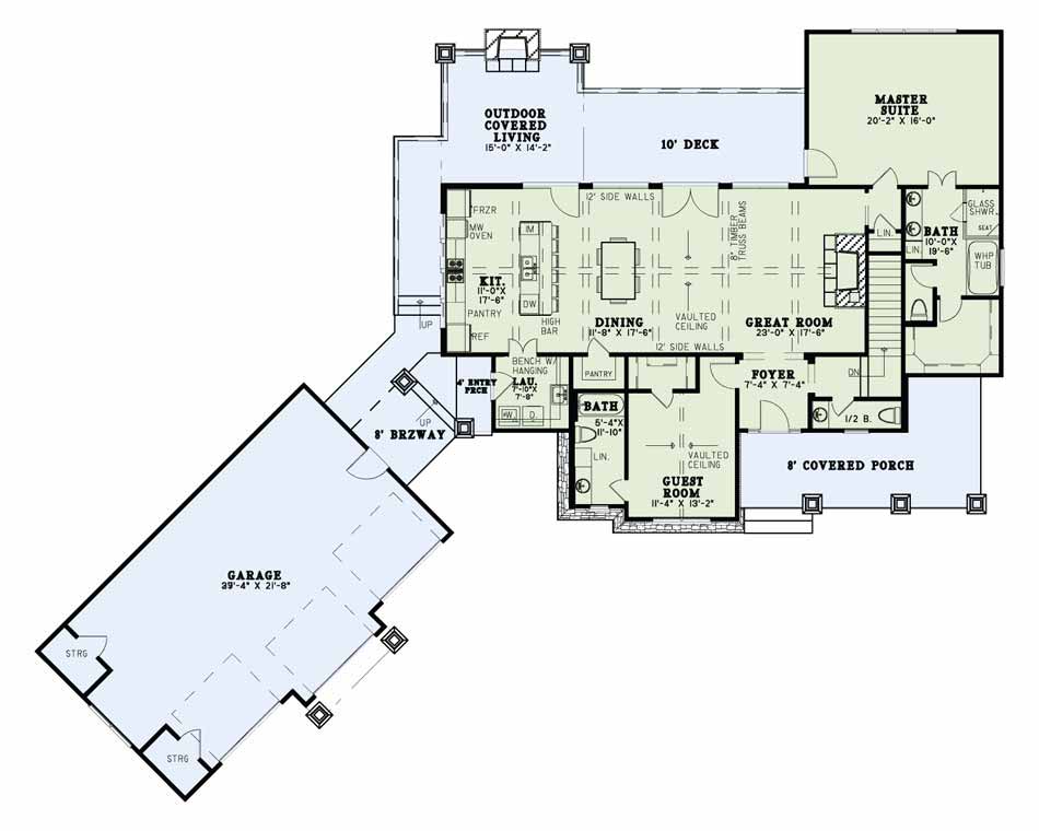
Main Level: Spacious and Welcoming
-
Open-concept great room, dining, and kitchen layout encourages seamless flow and keeps gatherings connected.
-
A luxurious main-floor master suite, equipped with a large walk-in closet, provides privacy and comfort.
-
A guest bedroom with a private bath ensures convenience for visitors.
-
A generously sized laundry room adds everyday practicality.
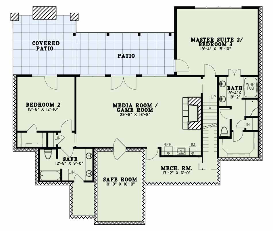
Lower Level: Versatile & Entertaining-Friendly
-
A walk-out basement that opens to expansive outdoor living areas, including a large patio—perfect for indoor-outdoor entertaining.
-
A media room gives you space for movie nights or casual lounging.
-
A second master suite mirrors the main-floor primary—providing flexibility for in-laws or guests.
-
An additional bedroom with a full bath and a safe room that offers both utility and peace of mind.
Designed for Mountain Living, Built for Generations
House Plan NDG 1649 – Cliffs II is ideal for those seeking house plans that feel both grand and grounded. Whether you're entertaining indoors or out, accommodating multi-generational living, or crafting a haven that blends rustic charm with modern amenities, this plan delivers. With flexible living spaces, multiple master suites, and an abundance of outdoor access, it invites both comfort and prestige.
Home Specifications
- Total Living Space: 3734
- Ridge Height (Ft.) 25
- Main Floor (Sq. Ft.): 1886 Sq.Ft
- Ridge Height (In.) 0
- Upper Floor (Sq. Ft.): N/A
- Main Ceiling Height: 9
- Lower Floor (Sq. Ft.): 1848 Sq.Ft.
- Upper Ceiling Height: N/A
- Porch (Sq. Ft.): 797 Sq.Ft.
- Lower Ceiling Height: 9
- Garage (Sq. Ft.): 917 Sq.Ft.
- Garage: 3 Bay Yes
- Bonus (Sq.Ft): N/A
- Garage/Carport Type:Angled Angled
- Bedrooms: 4
- Carport: N/A
- Full Baths: 4
- Roof Pitch: 10:12
- Half Baths: 1
- Porch Roof Pitch: 4:12
- Stories: 2.0
- Wall Construction: 2x4
- Lower Bonus (Sq. Ft.): N/A
- Vaulted Ceiling: Yes
- Depth (Ft): 79
- Width (Ft): 101
- Depth (In.) 3
- Width (In.) 12
- Total Sq. Ft. 5448 Sq.Ft.
- Customizable: Yes
Key Features
- Covered Front Porch
- Decks Patios Balconies
- Game Room
- Great Room
- Kitchen Island
- Main Floor Master
- Media Room
- Mudroom
- No Formal Dining
- Open Floor Plan House Plans
- Outdoor Living Space
- Peninsula/Eating Bar
- Saferoom
- Split Bedroom Design
- Walk-in Closet
- Walk-in-Pantry
- Wrap-Around Porch
Plan Collections
- Angler Mountain House Plans Collection
- Customizable Exteriors House Plans Collection
Plan Styles
- Country Home House Plans
- Craftsman House Plans
- Low Country House Plans
- Mountain House Plans
- Rustic House Plans
- Traditional House Plans











