House Plan 1371 Calico Bluff, Rustic House Plan
Please log in or create account to add the product in wishlist.
Wishlist is not saved permanently yet. Please log in or create account to save it.
Or order by phone: (870) 931-5777
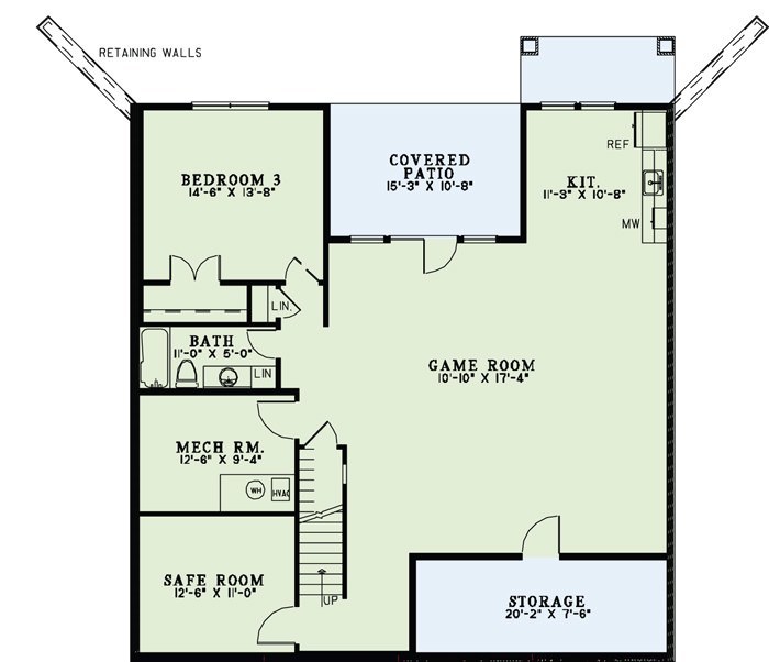
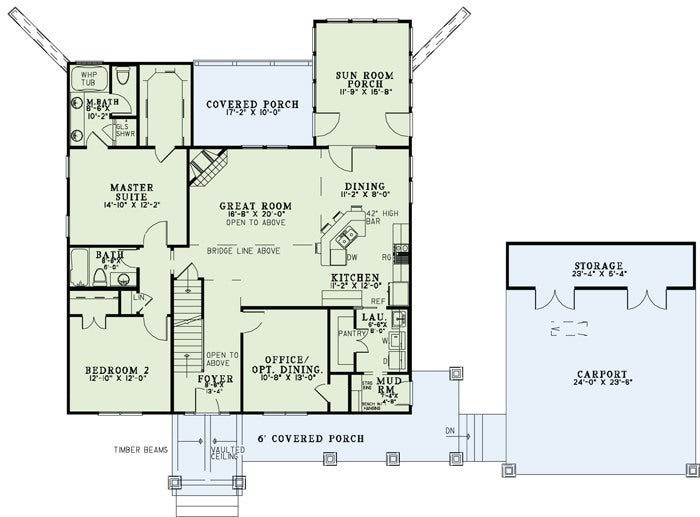
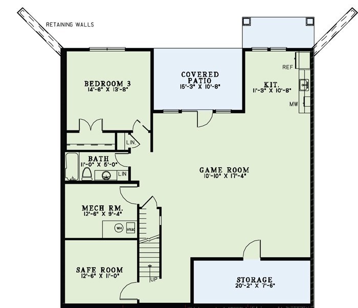
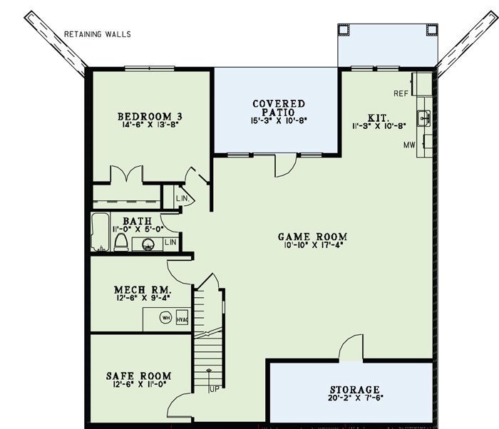
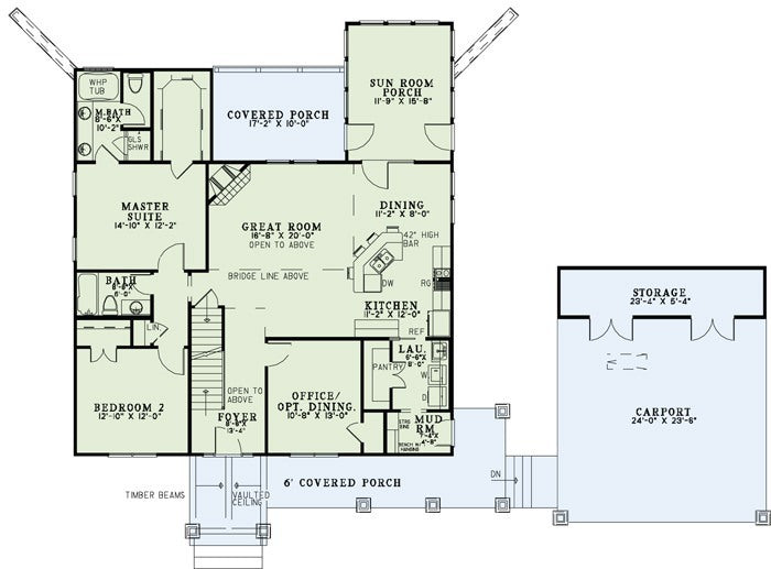
Floor Plans
Description
Discover NDG 1371 Calico Bluff — Rustic Elegance Meets Spacious Living
House plan NDG 1371 Calico Bluff delivers both charm and generous living space, thoughtfully designed with character, comfort, and flexibility in mind.
Why Calico Bluff Deserves Your Attention
-
Room to Grow
With approximately 3,399 sq. ft. of living space across 1½ stories, this design offers an airy, spacious layout perfect for families and entertaining. -
Rustic Appeal with Refined Proportions
Featuring a rugged, countryside aesthetic, Calico Bluff enhances its warm ambiance with carefully considered dimensions—about 79 feet wide and 59 feet deep—for a balanced, grounded presence on nearly any lot. -
Flexible, Functional Layout
Configured with 4 bedrooms and 4 baths, this design accommodates both privacy and shared living—ideal for growing families or guests.
NDG 1371 Calico Bluff blends rustic charm, thoughtful proportions, and versatile living space. At nearly 3,400 sq. ft., with four bedrooms, multiple baths, and a rustic design ripe for personalization, it’s a standout choice among house plans that deliver both style and substance.
Home Specifications
- Total Living Space: 3399
- Ridge Height (Ft.) 23
- Main Floor (Sq. Ft.): 1655 Sq.Ft
- Ridge Height (In.) 10
- Upper Floor (Sq. Ft.): N/A
- Main Ceiling Height: 9
- Lower Floor (Sq. Ft.): N/A
- Upper Ceiling Height: 8
- Porch (Sq. Ft.): N/A
- Lower Ceiling Height: 8
- Garage (Sq. Ft.): 1223 Sq.Ft.
- Bonus (Sq.Ft): 402 Sq.Ft.
- Garage/Carport Type:Front Load Front Load
- Bedrooms: 4
- Carport: Yes
- Full Baths: 4
- Roof Pitch: 10:12
- Porch Roof Pitch: N/A
- Stories: 2.5
- Wall Construction: 2x4
- Lower Bonus (Sq. Ft.): N/A
- Vaulted Ceiling: Yes
- Depth (Ft): 59
- Width (Ft): 79
- Depth (In.) N/A
- Width (In.) N/A
- Total Sq. Ft. 5024 Sq.Ft.
- Customizable: Yes
Key Features
- Bonus Room
- Covered Front Porch
- Covered Rear Porch
- Decks Patios Balconies
- Formal Dining Room
- Game Room
- Great Room
- Kitchen Island
- Main Floor Master
- Mudroom
- Open Floor Plan House Plans
- Peninsula/Eating Bar
- Saferoom
- Split Bedroom Design
- Sunroom
- Walk-in Closet
- Walk-in-Pantry
- Wrap-Around Porch
Plan Collections
- Rustic Ridge House Plans Collection
Plan Styles
- Arts & Crafts House Plans
- Country Home House Plans
- Craftsman House Plans
- Mountain House Plans
- Rustic House Plans









