House Plan 1351 Seth's Cabin, Riverbend House Plan
Please log in or create account to add the product in wishlist.
Wishlist is not saved permanently yet. Please log in or create account to save it.
Or order by phone: (870) 931-5777
Floor Plans
Description
Discover a Comfortable Rustic Cabin‑Style Home: Seth’s Cabin NDG 1351
Seth’s Cabin (NDG 1351) offers a blend of rustic charm, efficient layout, and versatile living — ideal for a family home, vacation cabin, or a relaxed countryside retreat. With a flexible layout, inviting common areas, and a cozy traditional style, this plan works well for those who value comfort and practicality without excessive size.
Highlights of the Seth's Cabin House Plan
- Approximately 2,607 square feet of living space
- Three bedrooms, two full bathrooms, and one half bath — offering a balanced layout for family or guests
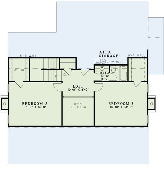
- One-and-a-half story design with a main floor plus an upper-level loft leading to two bedrooms and a full bath — efficient use of space and privacy for occupants
- Open floor plan: Kitchen opens into a Breakfast Room and shares flow with the Hearth Room, ideal for everyday living or entertaining
- Spacious covered porches (front and/or rear) for outdoor living, relaxing, and enjoying nature — adds charm and functional outdoor space
- Main-level Master suite for ease and convenience, plus two upstairs bedrooms accessible via loft, giving flexibility and separation between living and private spaces
- Mudroom entry feature — helpful for keeping the home organized, especially in rural or wooded settings where outdoor gear or boots are common
A Home Plan With Character, Comfort, and Flexible Living
Seth’s Cabin delivers a home that feels warm and welcoming, while remaining practical and manageable. The open-concept main living areas provide an inviting space for family, guests, or entertaining, while the upstairs loft and bedroom layout give separation and privacy when needed. The covered porches and rustic design details make this plan especially suited for natural settings — lakeside, wooded lots, or country landscapes.
Whether building a permanent residence, a weekend getaway, or a cozy cabin, Seth’s Cabin offers a balanced foundation: traditional style, functional layout, and comfortable living space.
Home Specifications
- Total Living Space: 2607
- Ridge Height (Ft.) 27
- Main Floor (Sq. Ft.): 1810 Sq.Ft
- Ridge Height (In.) 6
- Upper Floor (Sq. Ft.): 797 Sq.Ft.
- Main Ceiling Height: 9
- Lower Floor (Sq. Ft.): N/A
- Upper Ceiling Height: 8
- Porch (Sq. Ft.): 1191 Sq.Ft.
- Lower Ceiling Height: N/A
- Garage (Sq. Ft.): N/A
- Garage: No
- Bonus (Sq.Ft): N/A
- Garage/Carport Type:N/A N/A
- Bedrooms: 3
- Carport: N/A
- Full Baths: 2
- Roof Pitch: 10:12
- Half Baths: 1
- Porch Roof Pitch: N/A
- Stories: 1.5
- Wall Construction: 2x4
- Lower Bonus (Sq. Ft.): N/A
- Vaulted Ceiling: No
- Depth (Ft): 75
- Width (Ft): 50
- Depth (In.) 6
- Width (In.) N/A
- Total Sq. Ft. 3798 Sq.Ft.
- Customizable: Yes
Key Features
- Covered Front Porch
- Covered Rear Porch
- Kitchen Island
- Loft
- Main Floor Master
- Mudroom
- No Formal Dining
- Nook/Breakfast Area
- Open Floor Plan House Plans
- Peninsula/Eating Bar
- Split Bedroom Design
- Walk-in Closet
Plan Collections
- Riverbend Cabin House Plans Collection
Plan Styles
- Barndominium House Plans
- Lake House Plans
- Country Home House Plans
- Low Country House Plans
- Mountain House Plans
- Rustic House Plans

