House Plan 636 Burlington Cove, Affordable House Plan
Please log in or create account to add the product in wishlist.
Wishlist is not saved permanently yet. Please log in or create account to save it.
Or order by phone: (870) 931-5777
Floor Plans
Description
House Plan NDG 636 Burlington Cove – Efficient Two-Story Living with Family-Friendly Design
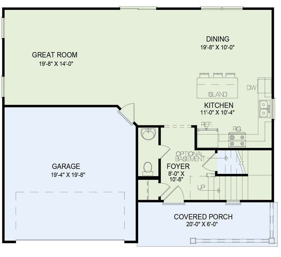
If you're searching for house plans that combine efficient two-story living with family-friendly design, House Plan NDG 636 Burlington Cove offers a smart layout tailored for modern lifestyles. This home delivers 1,598 square feet of thoughtfully designed space, making it an excellent choice for homeowners seeking comfort, functionality, and value.
Key Features
Optimized Two-Story Layout
With 3 bedrooms, 2 full bathrooms, and 1 half bath, this home is designed to maximize space and functionality. The 2-bay front-load garage adds convenience and curb appeal.
Open Concept Living Area
The main level features a spacious great room that flows seamlessly into the dining room and kitchen, complete with a work island. This open layout is ideal for family gatherings and entertaining guests.
Convenient Main-Level Amenities
A half bath and hall closet are strategically located just off the foyer, enhancing the home's functionality and ease of use.
Private Upper-Level Retreat
Upstairs, all three bedrooms are thoughtfully situated, each with its own walk-in closet. The master suite includes a private bathroom, offering a personal retreat within the home.
Functional Laundry Room
The upper level also houses a spacious laundry room, adding to the home's practicality and convenience.
Why This Plan Stands Out
House Plan NDG 636 Burlington Cove is a standout choice for those seeking a well-designed, efficient home that doesn't compromise on comfort. Its two-story layout offers separation between public and private spaces, while the open-concept main floor fosters connectivity and ease of living. Whether you're a growing family or looking to downsize without sacrificing quality, this plan provides a balanced and thoughtful approach to modern living.
Experience the perfect blend of efficiency and comfort with House Plan 636 Burlington Cove—a design that caters to today's needs while offering timeless appeal.
Home Specifications
- Total Living Space: 1598
- Ridge Height (Ft.) 24
- Main Floor (Sq. Ft.): 875 Sq.Ft
- Ridge Height (In.) 10
- Upper Floor (Sq. Ft.): 723 Sq.Ft.
- Main Ceiling Height: 8
- Lower Floor (Sq. Ft.): N/A
- Upper Ceiling Height: 8
- Porch (Sq. Ft.): 120 Sq.Ft.
- Lower Ceiling Height: N/A
- Garage (Sq. Ft.): 391 Sq.Ft.
- Garage: 2 Bay Yes
- Bonus (Sq.Ft): N/A
- Garage/Carport Type:Front Load Front Load
- Bedrooms: 3
- Carport: N/A
- Full Baths: 2
- Roof Pitch: 6:12
- Half Baths: 1
- Porch Roof Pitch: 5:12
- Stories: 2.0
- Wall Construction: 2x4
- Lower Bonus (Sq. Ft.): N/A
- Vaulted Ceiling: No
- Depth (Ft): 34
- Width (Ft): 40
- Depth (In.) 8
- Width (In.) N/A
- Total Sq. Ft. 2109 Sq.Ft.
- Customizable: Yes
Key Features
- Covered Front Porch
- Economic Structure
- Formal Dining Room
- Great Room
- Kitchen Island
- Narrow Lot House Plans
- Open Floor Plan House Plans
- Peninsula/Eating Bar
- Walk-in Closet
Plan Collections
- Affordable House Plans Collection
- Burlington House Plans Collection
Plan Styles
- Classical House Plans
- Colonial Classical Federal House Plans
- Country Home House Plans
- Traditional House Plans








