House Plan 5442 Hollow Creek, Farm House Plan
Please log in or create account to add the product in wishlist.
Wishlist is not saved permanently yet. Please log in or create account to save it.
Or order by phone: (870) 931-5777
Floor Plans
Description
House Plan MEN 5442 – Hollow Creek Farm
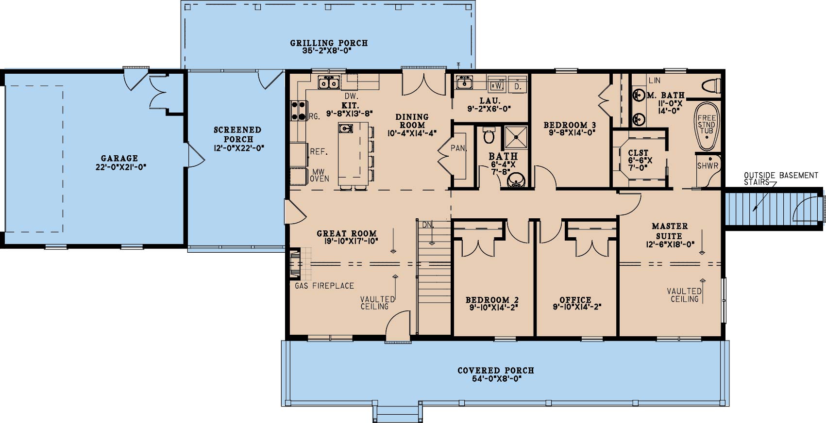
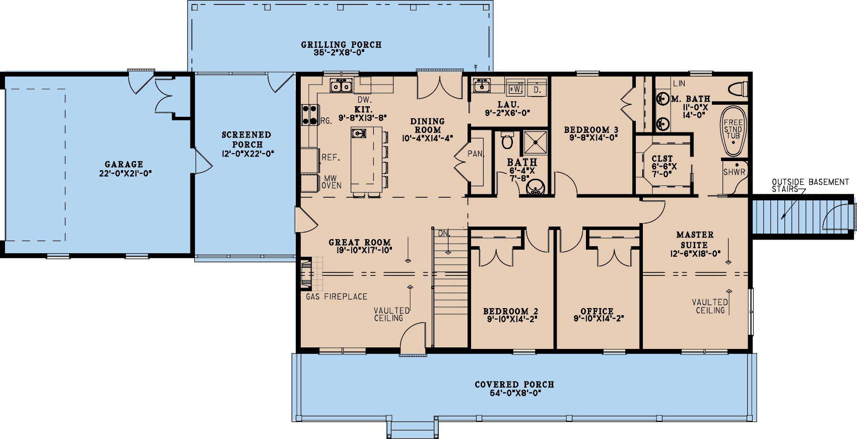
Introducing House Plan 5442 – Hollow Creek Farm, a modern farmhouse design by Nelson Design Group. This thoughtfully designed single‑story home offers approximately 2,818 square feet of living space, featuring 3 bedrooms, 2 full bathrooms, and 1 half bath. Inside, the grand foyer opens into a large family room with a vaulted ceiling and fireplace, creating a welcoming space for family and guests. The open‑concept kitchen is designed for functionality, with a large central island, walk‑in pantry, and adjoining dining room that leads out to a covered rear porch, perfect for outdoor dining and relaxation. The master suite is positioned for privacy and features a large bedroom with a luxurious en‑suite bath, which includes a walk‑in shower, soaking tub, and dual vanities. A generously sized walk‑in closet completes the master retreat. Two additional bedrooms share a full bathroom, and a half bath is conveniently located near the entry and living areas.
Why Choose Hollow Creek Farm
- Modern farmhouse design combining rustic charm and contemporary features
- Single‑story layout (~2,818 sq ft) providing ample space with easy accessibility
- Three bedrooms + two full bathrooms + one half bath, offering space for the whole family
- Open‑concept living areas including a vaulted great room, dining, and kitchen for easy flow
- Master suite with luxurious en‑suite bath and walk‑in closet
- Generous outdoor living space with a covered rear porch to enjoy the surroundings
- Functional design elements like a walk‑in pantry and large laundry room for everyday convenience
Home Specifications
- Total Living Space: 1800
- Ridge Height (Ft.) 22
- Main Floor (Sq. Ft.): 1800 Sq.Ft
- Ridge Height (In.) 6
- Upper Floor (Sq. Ft.): N/A
- Main Ceiling Height: 8
- Lower Floor (Sq. Ft.): N/A
- Upper Ceiling Height: N/A
- Porch (Sq. Ft.): 977 Sq.Ft.
- Lower Ceiling Height: N/A
- Garage (Sq. Ft.): 506 Sq.Ft.
- Garage: 2 Bay Yes
- Bonus (Sq.Ft): N/A
- Garage/Carport Type:Side Load Side Load
- Bedrooms: 3
- Carport: N/A
- Full Baths: 2
- Roof Pitch: 8:12
- Porch Roof Pitch: 3:12
- Stories: 2.0
- Wall Construction: 2x6
- Lower Bonus (Sq. Ft.): 1685 Sq.Ft.
- Vaulted Ceiling: Yes
- Depth (Ft): 49
- Width (Ft): 101
- Depth (In.) 4
- Width (In.) N/A
- Total Sq. Ft. 3283 Sq.Ft.
- Customizable: Yes
Key Features
- Bonus Room
- Covered Front Porch
- Great Room
- Grilling Porch
- Home Office/Study
- Kitchen Island
- Main Floor Master
- No Formal Dining
- Open Floor Plan House Plans
- Screened Porch
- Vaulted High Cathedral Ceiling
Plan Collections
- Cottage House Plans
- Michael E. Nelson House Plans Collection
- Modern Farmhouse Plans
- Riverbend Cabin House Plans Collection
Plan Styles
- Country Home House Plans
- Farmhouse House Plans
- Southern House Plans









