House Plan 592 Olive Street, Country House Home Plan
Please log in or create account to add the product in wishlist.
Wishlist is not saved permanently yet. Please log in or create account to save it.
Or order by phone: (870) 931-5777
Floor Plans
Description
House Plan 592 Olive Street – Country House 4‑Bedroom House Plan | NDG 592
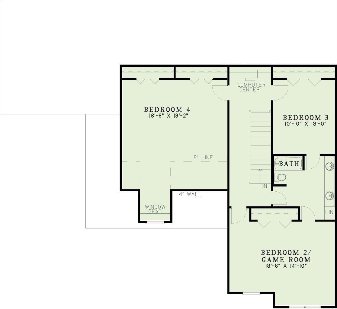
Discover the comfortable blend of traditional style and family‑friendly design with House Plan 592 Olive Street (Plan NDG 592), a beautiful 4‑bedroom house plan that offers space, practicality, and timeless curb appeal. This thoughtfully crafted home features approximately 2,810 sq ft of total living space, including 4 bedrooms, 2 full baths, and 1 half bath, making it ideal for growing families, multigenerational living, or anyone seeking generous interior space and classic countryside charm.
The bright and open layout connects the great room, kitchen, and dining areas — perfect for everyday living and entertaining. A front‑facing design enhances curb presence, while the interior’s flowing plan makes efficient use of space for family life and guests alike. The master suite provides a relaxing retreat with its own private bath, and additional bedrooms offer comfortable accommodations and flexibility for use as guest rooms, home offices, or hobby spaces.
Practical design features like ample storage, thoughtful room placement, and a 2‑bay garage enhance convenience and everyday functionality. With its balanced proportions, versatile layout, and traditional architectural touches, House Plan 592 Olive Street ranks among sought‑after house plans for homeowners who desire both comfort and style in a distinctive, livable home.
Home Specifications
- Total Living Space: 2810
- Ridge Height (Ft.) 27
- Main Floor (Sq. Ft.): 1610 Sq.Ft
- Ridge Height (In.) 0
- Upper Floor (Sq. Ft.): 1200 Sq.Ft.
- Main Ceiling Height: 9
- Lower Floor (Sq. Ft.): N/A
- Upper Ceiling Height: 8
- Porch (Sq. Ft.): 461 Sq.Ft.
- Lower Ceiling Height: N/A
- Garage (Sq. Ft.): 429 Sq.Ft.
- Garage: 2 Bay Yes
- Bonus (Sq.Ft): N/A
- Garage/Carport Type:Side Load Side Load
- Bedrooms: 4
- Carport: N/A
- Full Baths: 2
- Roof Pitch: 10:12
- Half Baths: 1
- Porch Roof Pitch: 10:12
- Stories: 2.0
- Wall Construction: 2x4
- Lower Bonus (Sq. Ft.): N/A
- Vaulted Ceiling: No
- Depth (Ft): 62
- Width (Ft): 61
- Depth (In.) N/A
- Width (In.) 4
- Total Sq. Ft. 3700 Sq.Ft.
- Customizable: Yes
Key Features
- Covered Front Porch
- Covered Rear Porch
- Formal Dining Room
- Game Room
- Great Room
- Grilling Porch
- Jack & Jill Bathroom
- Main Floor Master
- Nook/Breakfast Area
- Open Floor Plan House Plans
- Peninsula/Eating Bar
- Split Bedroom Design
- Walk-in Closet
- Walk-in-Pantry
- Wrap-Around Porch
Plan Collections
Plan Styles
- Classical House Plans
- Country Home House Plans
- Craftsman House Plans
- Southern House Plans
- Traditional House Plans









