House Plan 612 Cherry Street, European House Plan
Please log in or create account to add the product in wishlist.
Wishlist is not saved permanently yet. Please log in or create account to save it.
Or order by phone: (870) 931-5777
Floor Plans
Description
House Plan 612 Cherry Street – European 4‑Bedroom House Plan | NDG 612
Discover the charm and spacious design of House Plan 612 Cherry Street, a beautiful European house plan that combines classic architectural appeal with modern family living. This thoughtfully planned home offers 4 bedrooms and 3 full baths within approximately 2,824 sq ft of total living space, making it an excellent choice for families who value style, comfort, and functional flow.
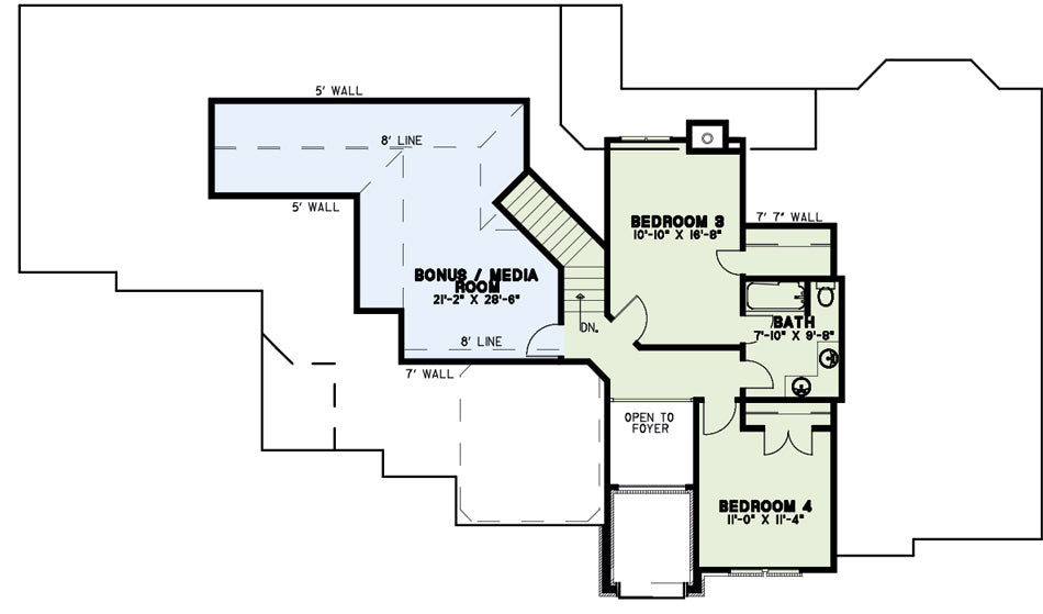
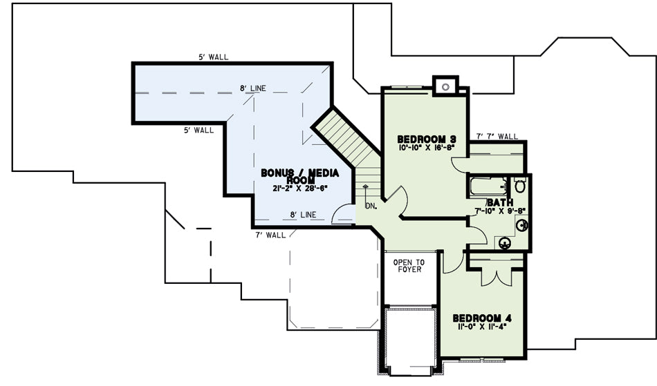
Stepping inside, you’re greeted by a dramatic foyer that soars to the second‑story ceiling and leads to a formal dining room with a twelve‑foot ceiling — ideal for entertaining and everyday living. Cozy fireplaces in both the great room and hearth room create inviting spaces for family gatherings and relaxation. The main‑floor owner’s suite features a ten‑foot boxed ceiling with a sitting area, a luxurious master bath with a corner whirlpool tub, and a huge walk‑in closet for added convenience. Another bedroom on the main level has its own private bath, while the upstairs includes two additional bedrooms and a versatile bonus room perfect for a playroom, media room, or home office.
With its side‑load 2‑bay garage, covered front and rear porches, and an open floor plan that’s perfect for both entertaining and everyday living, House Plan 612 Cherry Street stands out among house plans for its thoughtful layout, timeless design, and exceptional livability.
Home Specifications
- Total Living Space: 2824
- Ridge Height (Ft.) 25
- Main Floor (Sq. Ft.): 2279 Sq.Ft
- Ridge Height (In.) 10
- Upper Floor (Sq. Ft.): 545 Sq.Ft.
- Main Ceiling Height: 9
- Lower Floor (Sq. Ft.): N/A
- Upper Ceiling Height: 8
- Porch (Sq. Ft.): 254 Sq.Ft.
- Lower Ceiling Height: N/A
- Garage (Sq. Ft.): 503 Sq.Ft.
- Garage: 2 Bay Yes
- Bonus (Sq.Ft): 410 Sq.Ft.
- Garage/Carport Type:Side Load Side Load
- Bedrooms: 4
- Carport: N/A
- Full Baths: 3
- Roof Pitch: 10:12
- Porch Roof Pitch: N/A
- Stories: 1.5
- Wall Construction: 2x4
- Lower Bonus (Sq. Ft.): N/A
- Vaulted Ceiling: No
- Depth (Ft): 48
- Width (Ft): 84
- Depth (In.) 4
- Width (In.) 4
- Total Sq. Ft. 3991 Sq.Ft.
- Customizable: Yes
Key Features
- Bonus/Game and Media Room
- Covered Front Porch
- Covered Rear Porch
- Formal Dining Room
- Great Room
- Grilling Porch
- Main Floor Master
- Nook/Breakfast Area
- Open Floor Plan House Plans
- Peninsula/Eating Bar
- Sitting Area
- Split Bedroom Design
- Walk-in Closet
- Walk-in-Pantry
Plan Collections
Plan Styles
- European House Plans
- Traditional House Plans









