House Plan 631 Cherry Street, French Traditional House Plan
Please log in or create account to add the product in wishlist.
Wishlist is not saved permanently yet. Please log in or create account to save it.
Or order by phone: (870) 931-5777
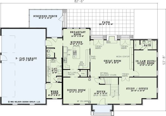
Floor Plans
Description
Believe it or not, this gorgeous home created by Nelson Design Group has five bedrooms and five baths. The arched entry and windows are outlined with an architectural pre-cast stone element. The dining room and study bay windows are both accented with a stylish copper roof that will superbly season overtime. A grand foyer with curved staircase sets the tone for this magnificent home design. The heart of this home is the expansive kitchen with adjoining gathering room, breakfast room and screened porch. Located privately on the main level is the master suite with an extraordinary private bathroom with fireplace and tornado room/master closet. Whether you desire a nearby nursery for the precious addition to your family, or a home office you?ll have a world of options with this design. The upper level includes three bedrooms, an optional bonus room and plenty of bathroom access.
Home Specifications
- Total Living Space: 3692
- Ridge Height (Ft.) 34
- Main Floor (Sq. Ft.): 2802 Sq.Ft
- Ridge Height (In.) 5
- Upper Floor (Sq. Ft.): 890 Sq.Ft.
- Main Ceiling Height: 9
- Lower Floor (Sq. Ft.): N/A
- Upper Ceiling Height: 9
- Porch (Sq. Ft.): 390 Sq.Ft.
- Lower Ceiling Height: N/A
- Garage (Sq. Ft.): 799 Sq.Ft.
- Garage: 3 Bay Yes
- Bonus (Sq.Ft): 439 Sq.Ft.
- Garage/Carport Type:Side Load Side Load
- Bedrooms: 5
- Carport: N/A
- Full Baths: 5
- Roof Pitch: 10:12
- Porch Roof Pitch: N/A
- Stories: 2.0
- Wall Construction: 2x4
- Lower Bonus (Sq. Ft.): N/A
- Vaulted Ceiling: Yes
- Depth (Ft): 89
- Width (Ft): 65
- Depth (In.) 11
- Width (In.) N/A
- Total Sq. Ft. 6008 Sq.Ft.
- Customizable: Yes
Key Features
- Bonus Room
- Covered Front Porch
- Covered Rear Porch
- Formal Dining Room
- Great Room
- Home Office/Study
- Kitchen Island
- Main Floor Master
- Mudroom
- Nook/Breakfast Area
- Open Floor Plan House Plans
- Peninsula/Eating Bar
- Saferoom
- Screened Porch
- Split Bedroom Design
- Walk-in Closet
- Walk-in-Pantry
Plan Collections
Plan Styles
- European House Plans
- French Traditional House Plans
- Luxury House Plans
- Traditional House Plans









