House Plan 584 Hickory Place, European Home Plan
Please log in or create account to add the product in wishlist.
Wishlist is not saved permanently yet. Please log in or create account to save it.
Or order by phone: (870) 931-5777
Floor Plans
Description
House Plan 584 Hickory Place – Elegant 5‑Bedroom European House Plan | NDG 584
Experience refined European elegance and spacious family living with House Plan 584 Hickory Place, a beautifully designed 5‑bedroom house plan that pairs classic architectural details with modern functionality. This gracious two‑story home offers approximately 4,461 sq ft of total living space, including 5 bedrooms, 4 full baths, and 1 half bath, plus a 3‑bay side‑load garage — perfect for families seeking generous space, timeless style, and versatile floor plan living.
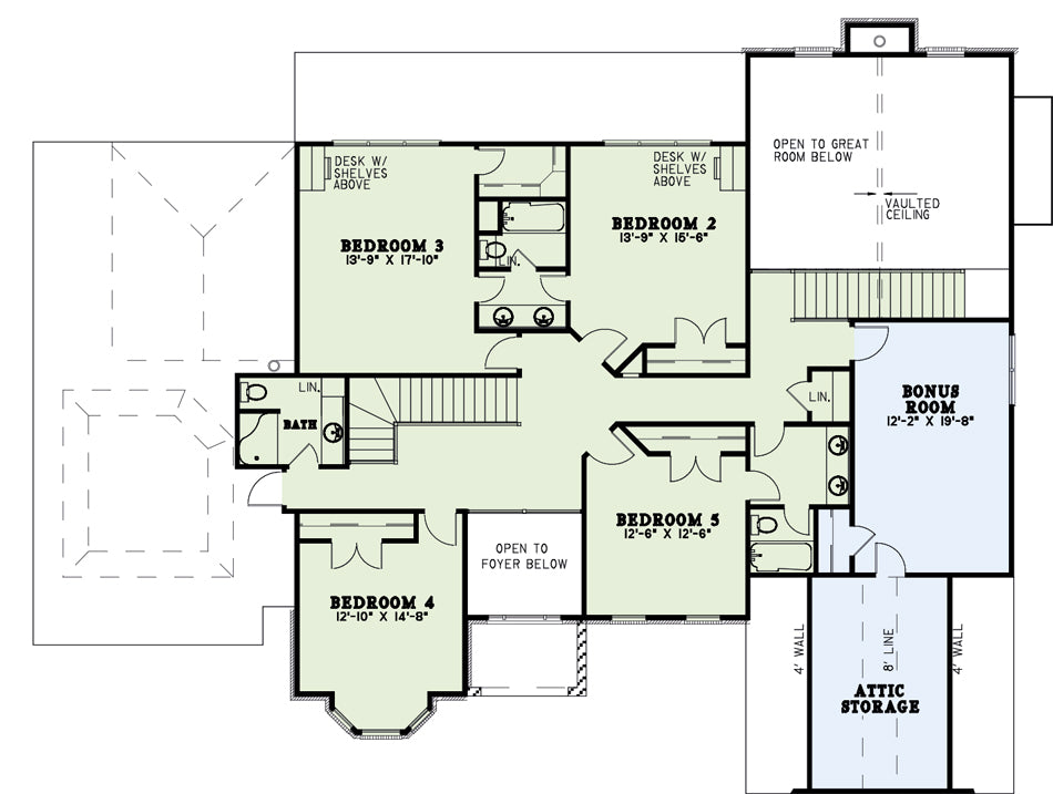
The heart of this home centers on a great room with vaulted ceilings, built‑in media center, and a fireplace, opening through French doors to a rear grilling porch for effortless entertaining and relaxed living. The kitchen is designed for both everyday meals and culinary gatherings with a large island bar and walk‑in pantry. A private master suite on the main level offers dual walk‑in closets, a spa‑like bath with skylights, a whirlpool tub, and a cozy fireplace — creating an inviting retreat. Upstairs, multiple bedrooms include built‑in desks and shelves, bay‑window lighting, and ensuite or shared baths, with a bonus room and additional storage rounding out the second floor.
With its open floor plan, luxury features, and European‑inspired architectural charm, House Plan 584 Hickory Place stands out among house plans for those seeking both elegant design and comfortable everyday living.
Home Specifications
- Total Living Space: 4461
- Ridge Height (Ft.) 39
- Main Floor (Sq. Ft.): 2861 Sq.Ft
- Ridge Height (In.) 8
- Upper Floor (Sq. Ft.): 1600 Sq.Ft.
- Main Ceiling Height: 10
- Lower Floor (Sq. Ft.): N/A
- Upper Ceiling Height: 9
- Porch (Sq. Ft.): 310 Sq.Ft.
- Lower Ceiling Height: N/A
- Garage (Sq. Ft.): 610 Sq.Ft.
- Garage: 3 Bay Yes
- Bonus (Sq.Ft): 250 Sq.Ft.
- Garage/Carport Type:Side Load Side Load
- Bedrooms: 5
- Carport: N/A
- Full Baths: 4
- Roof Pitch: 12:12
- Half Baths: 1
- Porch Roof Pitch: N/A
- Stories: 2.0
- Wall Construction: 2x4
- Lower Bonus (Sq. Ft.): N/A
- Vaulted Ceiling: Yes
- Depth (Ft): 60
- Width (Ft): 79
- Depth (In.) 6
- Width (In.) 10
- Total Sq. Ft. 5631 Sq.Ft.
- Customizable: Yes
Key Features
- Arched Entry
- Bonus Room Over Garage
- Covered Front Porch
- Covered Rear Porch
- Formal Dining Room
- Great Room
- Grilling Porch
- Home Office/Study
- Jack & Jill Bathroom
- Kitchen Island
- Main Floor Master
- Mudroom
- Nook/Breakfast Area
- Open Floor Plan House Plans
- Peninsula/Eating Bar
- Sitting Area
- Split Bedroom Design
- Walk-in Closet
- Walk-in-Pantry
Plan Collections
Plan Styles
- Classical House Plans
- European House Plans
- French Classic House Plans
- Luxury House Plans
- Traditional House Plans









