House Plan 1178 Culverton Place, Multi-Family House Plan
Please log in or create account to add the product in wishlist.
Wishlist is not saved permanently yet. Please log in or create account to save it.
Or order by phone: (870) 931-5777
Floor Plans
Description
NDG 1178 Culverton Place – A Multi‑Family House Plan Offering Flexibility and Functional Living
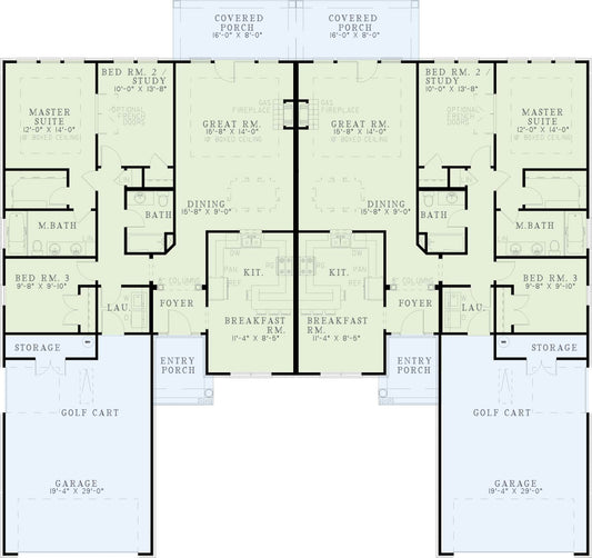
NDG 1178 Culverton Place is a 1.5‑story house plan with approximately 1,897 square feet of living space, designed as a multi‑family or duplex layout — ideal for households looking for rental potential, extended family living, or flexible occupancy.
This house plan delivers two separate living units (or one large, flexible residence depending on configuration), each with its own private areas, making it well-suited for investors, multi-generational families, or those wanting to offset living costs. The wide layout and efficient footprint provide ample space while keeping construction practical and cost-effective.
Inside, the design balances privacy and practicality: each unit can offer private bedrooms and living areas, while the shared structure maximizes space efficiency. Whether you plan to live in one side while renting the other, house extended family, or use the plan as a rental property, this house plan offers flexibility and long-term value.
Key Highlights of House Plan NDG 1178 Culverton Place
- Multi‑family / duplex‑style house plan — designed for flexibility in use (rental, extended family, owner occupancy)
- Approximately 1,897 sq. ft. of living space — efficient use of lot and structure space while providing comfortable accommodation
- Two-bay garage configuration included — practical for vehicle storage while maximizing interior living space
- Generous footprint: approximately 85 ft wide by 60 ft deep — offering ample layout flexibility
- Efficient multi‑unit layout — ideal for investors, rental income, multigenerational living, or flexible occupancy strategies
- Potential to tailor interior arrangements: separate units or a combined residence depending on needs
- Cost‑effective design compared to larger single‑family plans — balanced living space and functionality with manageable build size
Home Specifications
- Total Living Space: 1897
- Ridge Height (Ft.) 28
- Main Floor (Sq. Ft.): 1395 Sq.Ft
- Ridge Height (In.) 0
- Upper Floor (Sq. Ft.): 502 Sq.Ft.
- Main Ceiling Height: 9
- Lower Floor (Sq. Ft.): N/A
- Upper Ceiling Height: 8
- Porch (Sq. Ft.): 169 Sq.Ft.
- Lower Ceiling Height: N/A
- Garage (Sq. Ft.): 596 Sq.Ft.
- Garage: 2 Bay Yes
- Bonus (Sq.Ft): 303 Sq.Ft.
- Garage/Carport Type:Front Load Front Load
- Bedrooms: 2
- Carport: N/A
- Full Baths: 2
- Roof Pitch: 10:12
- Half Baths: 1
- Porch Roof Pitch: N/A
- Stories: 1.5
- Wall Construction: 2x4
- Lower Bonus (Sq. Ft.): N/A
- Vaulted Ceiling: No
- Depth (Ft): 60
- Width (Ft): 85
- Depth (In.) N/A
- Width (In.) N/A
- Total Sq. Ft. 2965 Sq.Ft.
- Customizable: Yes
Key Features
- Bonus Room
- Bonus Room Over Garage
- Covered Front Porch
- Formal Dining Room
- Great Room
- Home Office/Study
- Main Floor Master
- Nook/Breakfast Area
- Open Floor Plan House Plans
- Peninsula/Eating Bar
- Split Bedroom Design
- Walk-in Closet
- Wrap-Around Porch
Plan Collections
- Multi-Family House Plans
Plan Styles
- Country Home House Plans
- Craftsman House Plans
- Farmhouse House Plans
- Southern House Plans
- Traditional House Plans









