House Plan 442 Carriage Hill, Multi-Family House Plan
Please log in or create account to add the product in wishlist.
Wishlist is not saved permanently yet. Please log in or create account to save it.
Or order by phone: (870) 931-5777
Floor Plans
Description
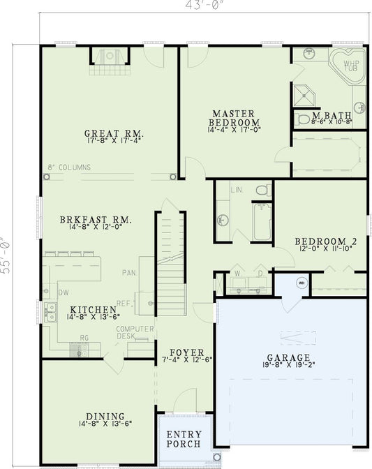
House Plan 442 – Carriage Hill | 3‑Bedroom, 2‑Bath + Bonus Multi‑Family Floor Plan
Explore the charm and versatility of House Plan 442 – Carriage Hill, a standout house plan from Nelson Design Group that blends spacious living with practical design features perfect for modern family life or a multi‑family home. This thoughtfully designed 1.5‑story plan offers approximately 2,252 sq. ft. of total living space with 3 bedrooms and 2 full bathrooms, delivering both comfort and flexibility for everyday living.
Step inside to discover a welcoming great room highlighted by classic columns and a cozy fireplace, creating an ideal space for family gatherings or relaxation. The open layout flows into a large breakfast room and kitchen with a convenient bar counter and built‑in computer desk—perfect for casual dining, homework, or home office tasks. The main‑floor master suite is a peaceful retreat with a generous walk‑in closet and private bath featuring a corner whirlpool tub and separate shower, while upstairs, a huge secondary bedroom and optional bonus room add versatility and additional living space.
Complete with a 2‑bay front‑load garage and traditional architectural details, Carriage Hill stands out among top “house plans” that offer smart layouts, comfortable bedroom arrangements, and generous living space that adapts to your lifestyle needs.
Home Specifications
- Total Living Space: 2252
- Ridge Height (Ft.) 27
- Main Floor (Sq. Ft.): 1868 Sq.Ft
- Ridge Height (In.) 6
- Upper Floor (Sq. Ft.): 384 Sq.Ft.
- Main Ceiling Height: 9
- Lower Floor (Sq. Ft.): N/A
- Upper Ceiling Height: 8
- Porch (Sq. Ft.): 45 Sq.Ft.
- Lower Ceiling Height: N/A
- Garage (Sq. Ft.): 407 Sq.Ft.
- Garage: 2 Bay Yes
- Bonus (Sq.Ft): N/A
- Garage/Carport Type:Front Load Front Load
- Bedrooms: 3
- Carport: N/A
- Full Baths: 2
- Roof Pitch: 8:12
- Porch Roof Pitch: N/A
- Stories: 1.5
- Wall Construction: 2x4
- Lower Bonus (Sq. Ft.): N/A
- Vaulted Ceiling: No
- Depth (Ft): 56
- Width (Ft): 86
- Depth (In.) N/A
- Width (In.) N/A
- Total Sq. Ft. 2704 Sq.Ft.
- Customizable: Yes
Key Features
- Covered Front Porch
- Formal Dining Room
- Great Room
- Main Floor Master
- Nook/Breakfast Area
- Open Floor Plan House Plans
- Peninsula/Eating Bar
- Split Bedroom Design
- Walk-in Closet
Plan Collections
- Multi-Family House Plans
Plan Styles
- Traditional House Plans

