House Plan 342 Dogwood Avenue, Colonial Classical Federal House Plan
Please log in or create account to add the product in wishlist.
Wishlist is not saved permanently yet. Please log in or create account to save it.
Or order by phone: (870) 931-5777
Floor Plans
Description
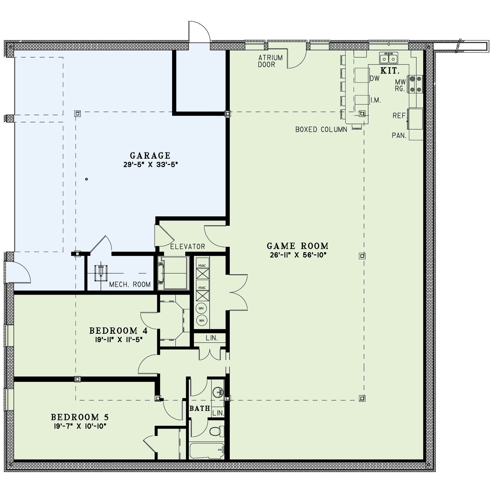
Please note that the upper floor square footage includes 2nd & 3rd levels.
Second floor H/C SQFT is 1,530. 3rd floor H/C SQFT is 1,744.
House Plan 342 Dogwood Avenue – Nelson Design Group
Explore the grandeur of House Plan 342 Dogwood Avenue, a standout in the house plans category that captures timeless architectural elegance and luxurious living — perfect for families seeking space, style, and an impressive floor plan that draws attention in online searches. This Colonial Classical Federal design from Nelson Design Group features 5 bedrooms and 5 bathrooms, offering generous accommodations for large households, multigenerational living, or frequent guests. With approximately 7,433 sq ft of total living space, this expansive home includes multiple levels designed for both everyday comfort and formal entertaining.
From the grand foyer to the thoughtfully arranged living areas, Plan 342 Dogwood Avenue balances classic design details with modern functionality. Large gathering spaces provide room for family time, while private suites ensure your loved ones and visitors have their own retreats. The spacious layout includes generous secondary bedrooms and luxurious primary suite options, catering to discerning homeowners who want both space and comfort. With three garage bays and a striking façade that enhances curb appeal, this premium house plan delivers exceptional value and design excellence for your dream home build.
Home Specifications
- Total Living Space: 7433
- Ridge Height (Ft.) 48
- Main Floor (Sq. Ft.): 1600 Sq.Ft
- Ridge Height (In.) 0
- Upper Floor (Sq. Ft.): 3274 Sq.Ft.
- Main Ceiling Height: 9
- Lower Floor (Sq. Ft.): 2559 Sq.Ft.
- Upper Ceiling Height: 9
- Porch (Sq. Ft.): 4034 Sq.Ft.
- Lower Ceiling Height: 9
- Garage (Sq. Ft.): 940 Sq.Ft.
- Garage: 3 Bay Yes
- Bonus (Sq.Ft): N/A
- Garage/Carport Type:Side Load Side Load
- Bedrooms: 5
- Carport: N/A
- Full Baths: 5
- Roof Pitch: 6:12
- Half Baths: 1
- Porch Roof Pitch: N/A
- Stories: 4.0
- Wall Construction: 2x4
- Lower Bonus (Sq. Ft.): N/A
- Vaulted Ceiling: No
- Depth (Ft): 60
- Width (Ft): 60
- Depth (In.) 2
- Width (In.) 2
- Total Sq. Ft. 12407 Sq.Ft.
- Customizable: Yes
Key Features
- Butler's Pantry
- Covered Front Porch
- Covered Rear Porch
- Decks Patios Balconies
- Fireplace in Master
- Formal Dining Room
- Game Room
- Great Room
- Home Office/Study
- Kitchen Island
- Open Floor Plan House Plans
- Peninsula/Eating Bar
- Split Bedroom Design
- Vacation Golf Course
- Walk-in Closet
- Wrap-Around Porch
Plan Collections
Plan Styles
- Classical House Plans
- Colonial Classical Federal House Plans
- Country Home House Plans
- French Classic House Plans
- Luxury House Plans
- Southern House Plans
- Traditional House Plans
- Vacation House Plans



