House Plan 859 McNamara, Luxury House Plan
Please log in or create account to add the product in wishlist.
Wishlist is not saved permanently yet. Please log in or create account to save it.
Or order by phone: (870) 931-5777
Floor Plans
Description
House Plan 859 – McNamara | Luxury Farmhouse‑Style Home with Flexible Living Spaces
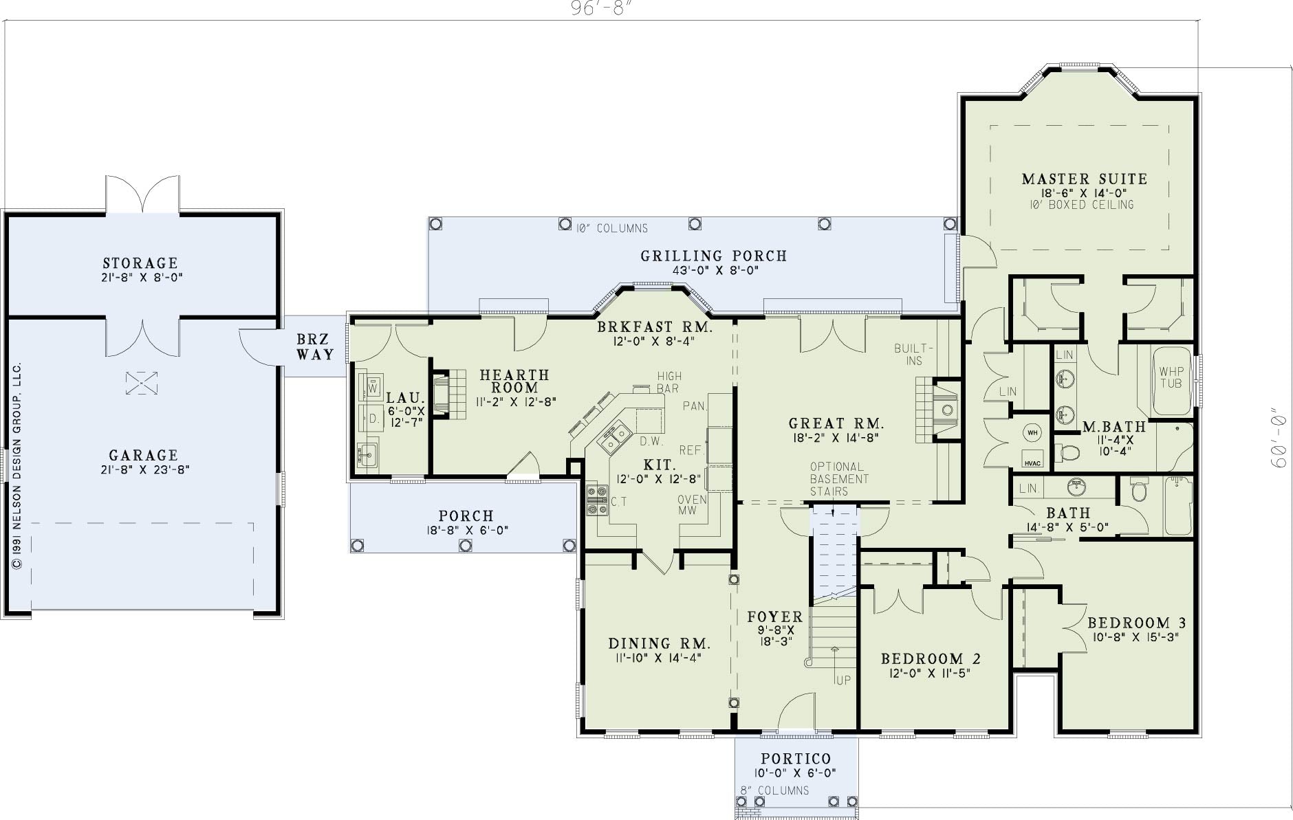
House Plan 859, McNamara, is a spacious and elegant luxury farmhouse house plan that blends traditional curb appeal with thoughtful modern living spaces. This single‑story design offers approximately 3,009 square feet of living space, making it ideal for families who want generous room sizes and versatile layouts without stepping up to multiple levels. The plan features 3 bedrooms and 2 full bathrooms, including a private owner’s suite with dual walk‑in closets and a spa‑style bathroom. The heart of the home is the open great room with a fireplace and built‑ins, flowing seamlessly into the kitchen with a wrap‑around eat‑at peninsula and adjacent breakfast and hearth rooms. Entertaining and everyday living are enhanced by covered front and rear porches and a rear grilling porch. A home theater/game room and a convenient study or office provide flexible spaces for hobbies, work, and relaxation. With its blend of refined design and practical functionality, McNamara is a standout choice among quality house plans.
Key Features
- Approximately 3,009 sq. ft. of living space
- 3 bedrooms and 2 full bathrooms for comfortable family living
- Luxury owner’s suite with dual walk‑in closets and spa‑style bath
- Open great room with fireplace and built‑ins
- Kitchen with wrap‑around eat‑at peninsula and adjacent breakfast/hearth rooms
- Home theater/game room for flexible entertainment space
- Covered front porch, rear porch, and grilling porch for outdoor living
- Study/office space ideal for work or hobbies
- Traditional farmhouse architectural style with luxury details
Home Specifications
- Total Living Space: 3009
- Ridge Height (Ft.) 21
- Main Floor (Sq. Ft.): 2297 Sq.Ft
- Ridge Height (In.) 0
- Upper Floor (Sq. Ft.): 712 Sq.Ft.
- Main Ceiling Height: 9
- Lower Floor (Sq. Ft.): N/A
- Upper Ceiling Height: 8
- Porch (Sq. Ft.): 528 Sq.Ft.
- Lower Ceiling Height: N/A
- Garage (Sq. Ft.): 729 Sq.Ft.
- Garage: 2 Bay Yes
- Bonus (Sq.Ft): N/A
- Garage/Carport Type:Front Load Front Load
- Bedrooms: 3
- Carport: N/A
- Full Baths: 2
- Roof Pitch: 8:12
- Porch Roof Pitch: N/A
- Stories: 1.0
- Wall Construction: 2x4
- Lower Bonus (Sq. Ft.): N/A
- Vaulted Ceiling: No
- Depth (Ft): 60
- Width (Ft): 96
- Depth (In.) N/A
- Width (In.) 8
- Total Sq. Ft. 4266 Sq.Ft.
- Customizable: Yes
Key Features
- Covered Front Porch
- Covered Rear Porch
- Formal Dining Room
- Game Room
- Great Room
- Grilling Porch
- Home Office/Study
- Home Theater
- Main Floor Master
- Nook/Breakfast Area
- Open Floor Plan House Plans
- Outdoor Living Space
- Peninsula/Eating Bar
- Split Bedroom Design
- Walk-in Closet
Plan Collections
Plan Styles
- Farmhouse House Plans
- Luxury House Plans
- Traditional House Plans









