House Plan 5196 Hillside Farms, Farmhouse House Plan
Please log in or create account to add the product in wishlist.
Wishlist is not saved permanently yet. Please log in or create account to save it.
Or order by phone: (870) 931-5777
Floor Plans
Description
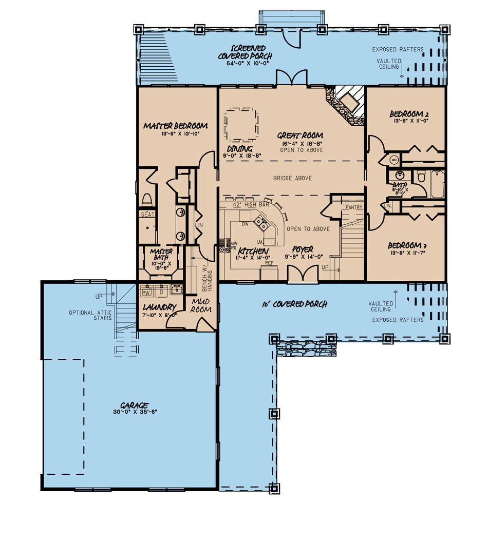
Welcome to this beautiful farmhouse-style house plan, designed to offer both style and functionality. From the wrap-around porch, ideal for holiday decorations and outdoor gatherings, to the spacious, open-concept living areas, this home is perfect for making lasting memories with family and friends.
Key Features of this Charming Farmhouse Plan:
- Open-Concept Layout: The seamless flow between the kitchen, dining room, and great room ensures that no one ever feels disconnected, whether you're preparing meals, helping with homework, or entertaining guests.
- Split Bedroom Design: Enjoy privacy in the master suite, located on one side of the home, while bedrooms 2 and 3 are on the opposite end, offering plenty of space for children or guests.
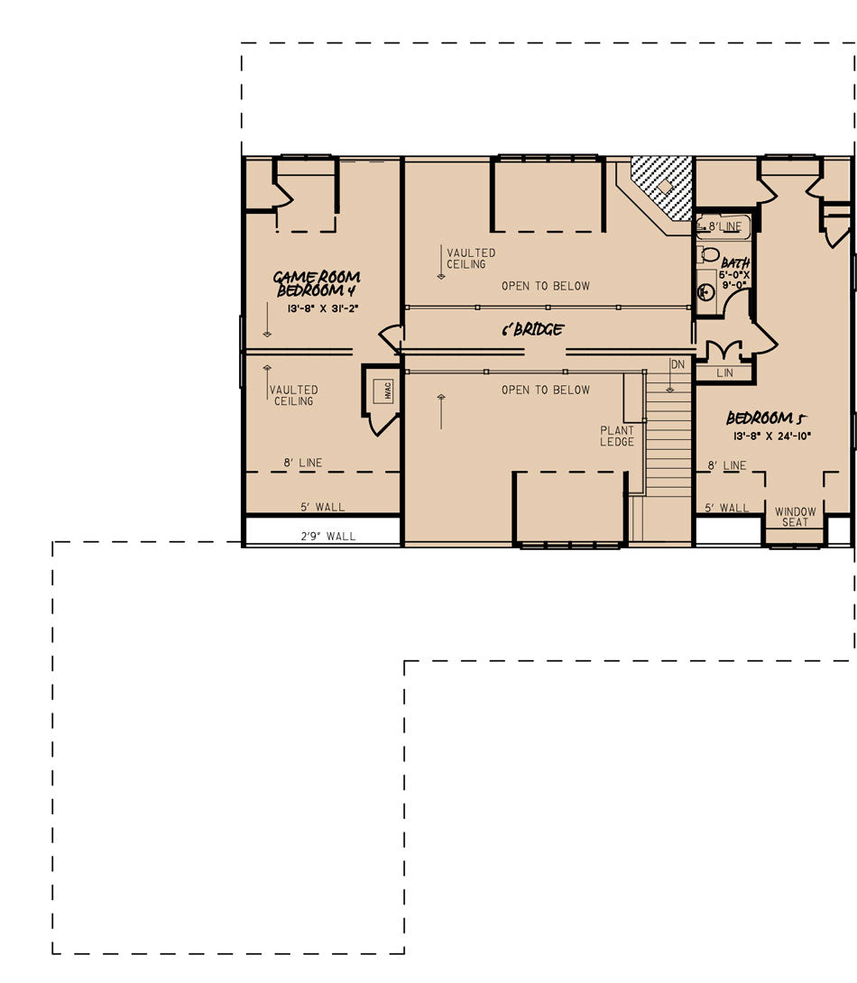
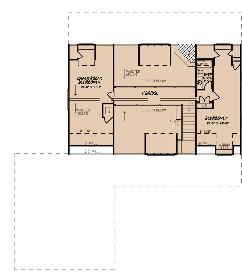
- Upper-Level Bridge: A unique design element, the upper-level bridge overlooks the great room, dining area, and kitchen, providing visual separation while keeping the space feeling open and connected. The bridge leads to bedrooms 4 and 5, a full bath, and a versatile game room.
- Spacious Screened-In Back Porch: Ideal for family gatherings, this large screened-in porch offers a perfect spot for relaxing and enjoying the outdoors in comfort.
Whether you're hosting large gatherings or enjoying quiet family time, this farmhouse plan delivers a perfect balance of privacy, comfort, and functionality. Designed for modern living, with plenty of room for everyone, this plan brings both charm and practicality to the forefront.
If you're looking for a house plan that promotes family interaction while maintaining personal space, this farmhouse-style design is the perfect choice. Explore this plan and discover the ultimate family home today!
**Bridge is 152 Sq. Ft**
Home Specifications
- Total Living Space: 2860
- Ridge Height (Ft.) 27
- Main Floor (Sq. Ft.): 1982 Sq.Ft
- Ridge Height (In.) 10
- Upper Floor (Sq. Ft.): 878 Sq.Ft.
- Main Ceiling Height: 9
- Lower Floor (Sq. Ft.): N/A
- Upper Ceiling Height: 8
- Porch (Sq. Ft.): 1171 Sq.Ft.
- Lower Ceiling Height: N/A
- Garage (Sq. Ft.): 1008 Sq.Ft.
- Garage: 2 Bay Yes
- Bonus (Sq.Ft): N/A
- Garage/Carport Type:Side Load Side Load
- Bedrooms: 5
- Carport: N/A
- Full Baths: 3
- Roof Pitch: 10:12
- Porch Roof Pitch: 5:12
- Stories: 1.5
- Wall Construction: 2x4
- Lower Bonus (Sq. Ft.): N/A
- Vaulted Ceiling: Yes
- Depth (Ft): 80
- Width (Ft): 70
- Depth (In.) 7
- Width (In.) 8
- Total Sq. Ft. 5191 Sq.Ft.
- Customizable: Yes
Key Features
- Covered Front Porch
- Covered Rear Porch
- Game Room
- Great Room
- Main Floor Master
- Mudroom
- No Formal Dining
- Open Floor Plan House Plans
- Peninsula/Eating Bar
- Screened Porch
- Split Bedroom Design
- Walk-in Closet
- Walk-in-Pantry
Plan Collections
- Modern Farmhouse Plans
- Michael E. Nelson House Plans Collection
Plan Styles
- Country Home House Plans
- Craftsman House Plans
- Farmhouse House Plans
- Low Country House Plans
- Southern House Plans
- Traditional House Plans





