House Plan 1114 Lake House Retreat, Riverbend House Plan
Please log in or create account to add the product in wishlist.
Wishlist is not saved permanently yet. Please log in or create account to save it.
Or order by phone: (870) 931-5777
Floor Plans
Description
House Plan 1114 Lake House Retreat – Spacious Lake Home with Porch Living & Family Comfort
Embrace lakeside living with House Plan 1114 Lake House Retreat, a beautifully designed 1.5‑story home offering approximately 2,704 sq ft of heated living space. This generous layout includes 5 bedrooms and 3 full baths, making it perfect for large families, guests, or those who love entertaining in style. Its classic exterior features a massive covered front porch that sets the tone for relaxed outdoor living. Inside, an open floor plan connects the kitchen, great room, and dining areas, ideal for everyday life and gatherings. The kitchen includes a wrap‑around bar, while the great room highlights a stone corner fireplace, creating a warm and inviting atmosphere. Step outside to a huge screened porch with an outdoor grill and enjoy quiet evenings or morning coffee overlooking the scenery. With bedrooms on both levels, Lake House Retreat delivers functional, family‑friendly design, plenty of space, and classic lakeside charm.
Key Features
• Approximately 2,704 sq ft of heated living space (main and upper floor)
• 5 bedrooms and 3 full baths
• 1.5‑story lake home with timeless curb appeal
• Massive covered front porch and large screened rear porch
• Open floor plan connecting kitchen, great room, and dining area
• Kitchen with wrap‑around bar for casual meals and entertaining
• Great room with stone corner fireplace for cozy living
• Covered outdoor living areas including deck and porch
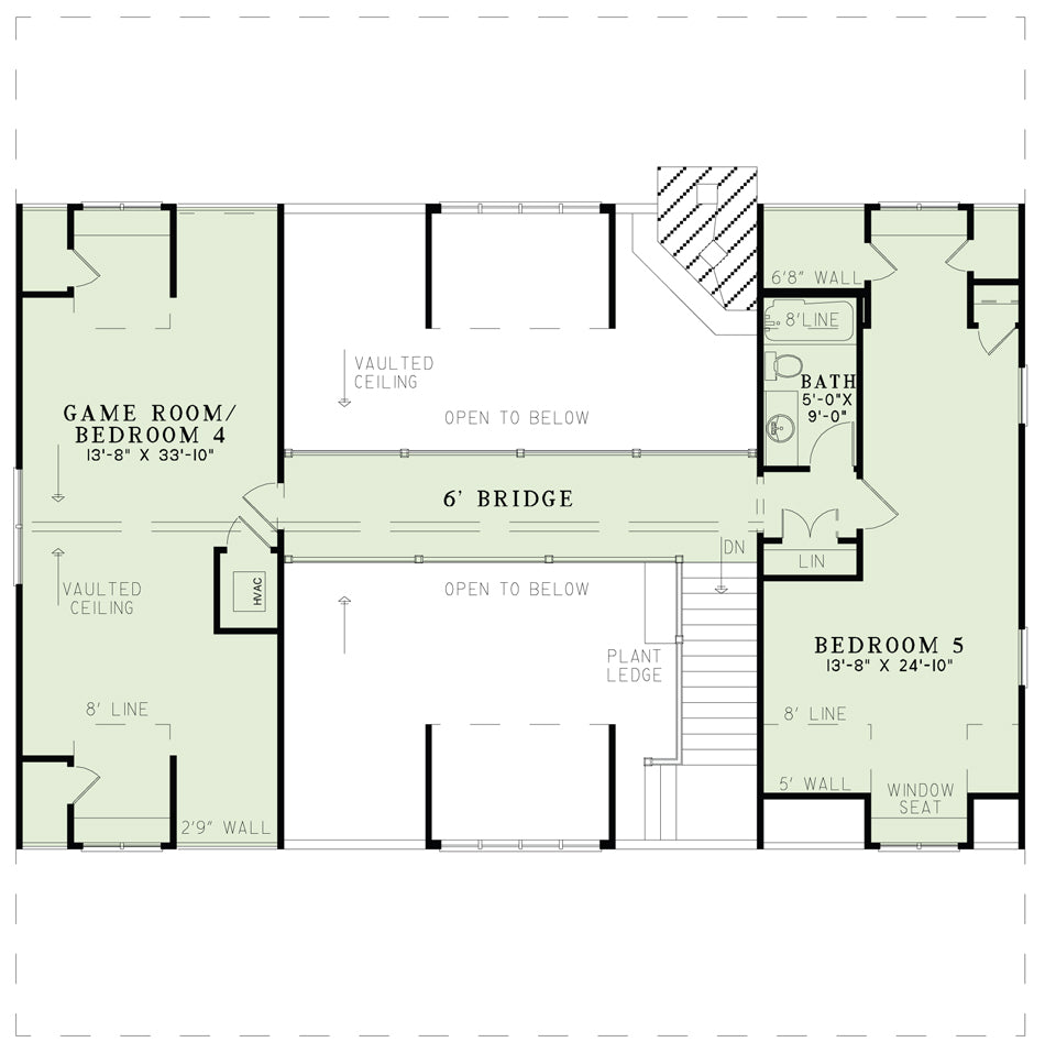
• Bedrooms on both main and upper levels for flexibility
Home Specifications
- Total Living Space: 2704
- Ridge Height (Ft.) 28
- Main Floor (Sq. Ft.): 1863 Sq.Ft
- Ridge Height (In.) 0
- Upper Floor (Sq. Ft.): 841 Sq.Ft.
- Main Ceiling Height: 9
- Lower Floor (Sq. Ft.): N/A
- Upper Ceiling Height: 8
- Porch (Sq. Ft.): 1080 Sq.Ft.
- Lower Ceiling Height: N/A
- Garage (Sq. Ft.): N/A
- Garage: No
- Bonus (Sq.Ft): N/A
- Garage/Carport Type:N/A N/A
- Bedrooms: 5
- Carport: N/A
- Full Baths: 3
- Roof Pitch: 10:12
- Porch Roof Pitch: 5:12
- Stories: 1.5
- Wall Construction: 2x4
- Lower Bonus (Sq. Ft.): N/A
- Vaulted Ceiling: Yes
- Depth (Ft): 68
- Width (Ft): 60
- Depth (In.) 6
- Width (In.) 6
- Total Sq. Ft. 3784 Sq.Ft.
- Customizable: Yes
Key Features
- Covered Front Porch
- Covered Rear Porch
- Decks Patios Balconies
- Game Room
- Great Room
- Main Floor Master
- No Formal Dining
- Open Floor Plan House Plans
- Outdoor Living Space
- Peninsula/Eating Bar
- Split Bedroom Design
- Walk-in Closet
- Walk-in-Pantry
Plan Collections
- Customizable Exteriors House Plans Collection
- Riverbend Cabin House Plans Collection
- Waterfront House Plans Collection
Plan Styles
- Lake House Plans
- Country Home House Plans
- Farmhouse House Plans
- Low Country House Plans
- Rustic House Plans
- Southern House Plans
- Traditional House Plans



















