House Plan 1374 Mountain Retreat, Rustic House Plan
Please log in or create account to add the product in wishlist.
Wishlist is not saved permanently yet. Please log in or create account to save it.
Or order by phone: (870) 931-5777
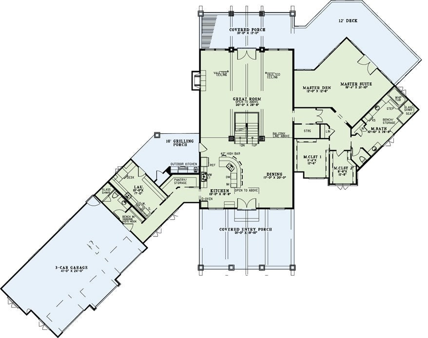
Floor Plans
Description
Discover a Grand Rustic House Plan: Mountain Retreat NDG 1374
Mountain Retreat (NDG 1374) is a dramatic, spacious two‑story home design built for those who love rustic elegance, expansive living, and hosting friends or family in style. This plan combines generous square footage, flexible living areas, and luxurious finishes — ideal for vacation homes, mountain properties, or a forever residence designed for comfort and entertaining.
Highlights of the Mountain Retreat House Plan
- Approximately 6,636 square feet of total living space
- Three bedrooms and four full baths — plenty of space for family and guests
- Three-bay angled garage for ample vehicle storage
- Massive covered front entry porch with timber and stone detailing for striking curb appeal
- Open-concept main level: kitchen opens to dining room and vaulted Great Room with dramatic ceiling and fireplace — perfect for entertaining or family gatherings
- Spacious grilling porch/off‑kitchen porch with outdoor kitchen setup — great for outdoor dining and relaxed entertaining
- Large laundry/mudroom area adjacent to kitchen, including a walk-in pantry and convenient access from garage
- Luxurious master suite that occupies an entire wing — includes den area, dual walk-in closets, raised whirlpool tub, glass shower with seat, and private access to deck or porch
- Lower level with a huge Game/Media Room plus a mini‑kitchen and bar — ideal for recreation, guests, or extended living
- Two additional bedrooms on lower level plus a home theatre — suits multigenerational living or frequent overnight guests
- Loft space above Great Room, suitable for library, studio, or bonus room — adding flexibility and natural light
A Rustic Luxury Home Plan Designed for Lifestyle and Hosting
Mountain Retreat blends rustic architectural charm with expansive, versatile living space. The layout encourages social living, with the kitchen, dining, and Great Room flowing together for seamless entertaining. Outdoor living is built in via the grilling porch and covered porch/deck — perfect for enjoying nature, relaxing, or hosting gatherings. The deluxe master suite wing provides privacy and comfort, while the lower-level guest bedrooms, game room, and home theater add space for fun, extended stays, or multigenerational family living. With its large footprint and flexible design, Mountain Retreat offers a home that grows with your lifestyle, whether that's cozy family living, frequent entertaining, or weekend getaways in a breathtaking setting.
Home Specifications
- Total Living Space: 2354
- Ridge Height (Ft.) 28
- Main Floor (Sq. Ft.): 3355 Sq.Ft
- Ridge Height (In.) 6
- Upper Floor (Sq. Ft.): 530 Sq.Ft.
- Main Ceiling Height: 10
- Lower Floor (Sq. Ft.): 2751 Sq.Ft.
- Upper Ceiling Height: 8
- Porch (Sq. Ft.): 1250 Sq.Ft.
- Lower Ceiling Height: 9
- Garage (Sq. Ft.): 1074 Sq.Ft.
- Garage: 3 Bay Yes
- Bonus (Sq.Ft): N/A
- Garage/Carport Type:Angled Angled
- Bedrooms: 3
- Carport: N/A
- Full Baths: 4
- Roof Pitch: 12:12
- Porch Roof Pitch: N/A
- Stories: 2.0
- Wall Construction: 2x4
- Lower Bonus (Sq. Ft.): N/A
- Vaulted Ceiling: Yes
- Depth (Ft): 106
- Width (Ft): 137
- Depth (In.) 6
- Width (In.) N/A
- Total Sq. Ft. 8960 Sq.Ft.
- Customizable: Yes
Key Features
- Covered Front Porch
- Covered Rear Porch
- Decks Patios Balconies
- Formal Dining Room
- Game Room
- Great Room
- Grilling Porch
- Home Theater
- Kitchen Island
- Loft
- Main Floor Master
- Mudroom
- Open Floor Plan House Plans
- Outdoor Kitchen
- Outdoor Living Space
- Peninsula/Eating Bar
- Split Bedroom Design
- Walk-in Closet
- Walk-in-Pantry
- Wrap-Around Porch
Plan Collections
- Rustic Ridge House Plans Collection
Plan Styles
- Craftsman House Plans
- Luxury House Plans
- Rustic House Plans
- Traditional House Plans









