House Plan 5308 Englewood Place, Riverbend House Plan
Please log in or create account to add the product in wishlist.
Wishlist is not saved permanently yet. Please log in or create account to save it.
Or order by phone: (870) 931-5777
Floor Plans
Description
House Plan MEN 5308 – Englewood Place | Riverbend House Plan
Experience efficient design and modern comfort with the Englewood Place House Plan, part of Nelson Design Group’s Riverbend Collection. This thoughtfully crafted home combines style, functionality, and open living in a right-sized layout perfect for families, retirees, or anyone seeking flexible single-level living.
Key Features of This House Plan:
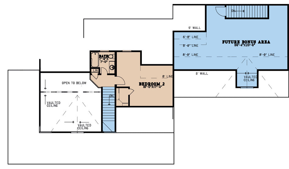
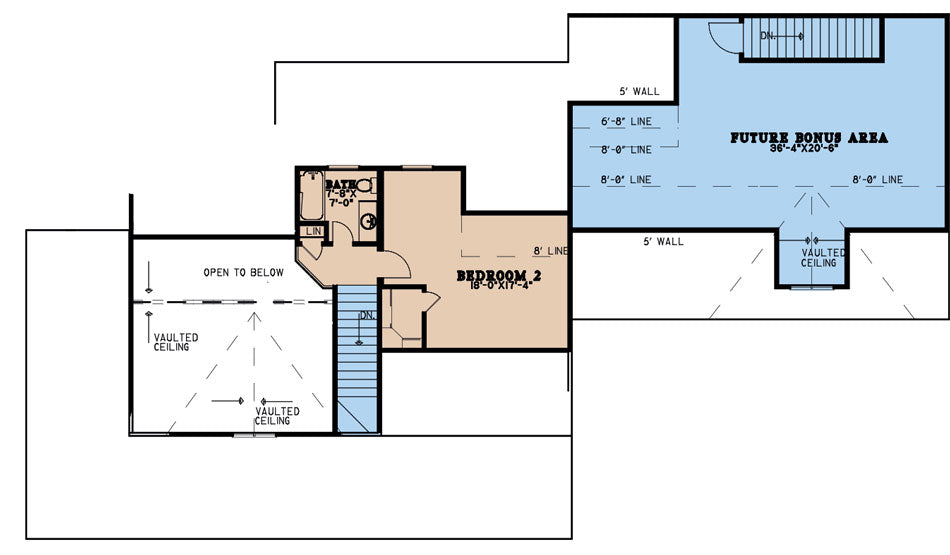
- Spacious Layout: Approximately 2,068 square feet of heated living space with 2 bedrooms and 3 full bathrooms.
- Open Floor Concept: The great room flows effortlessly into the kitchen and dining area, creating a warm, inviting space ideal for entertaining or relaxing.
- Private Bedrooms: Each bedroom includes its own full bath, offering privacy and comfort for family members or guests.
- Two-Car Garage: A practical and stylish garage provides secure parking and storage while maintaining the home’s elegant curb appeal.
- Outdoor Living: A covered porch expands your living area outdoors, perfect for enjoying peaceful evenings or hosting gatherings.
- Smart Design: With an 89-foot width and 51-foot depth, this plan maximizes space efficiency—ideal for wider lots or scenic properties.
Why Choose the Englewood Place Riverbend House Plan?
The Englewood Place stands out among modern house plans for its seamless blend of open living and private comfort. Its well-balanced layout offers flexibility, functionality, and timeless appeal, all within a manageable footprint. Whether you’re building your forever home, a downsized retreat, or a vacation property, this plan delivers lasting value and exceptional livability.
Home Specifications
- Total Living Space: 2068
- Ridge Height (Ft.) 24
- Main Floor (Sq. Ft.): 1685 Sq.Ft
- Ridge Height (In.) 8
- Upper Floor (Sq. Ft.): 383 Sq.Ft.
- Main Ceiling Height: 9
- Lower Floor (Sq. Ft.): N/A
- Upper Ceiling Height: 8
- Porch (Sq. Ft.): 807 Sq.Ft.
- Lower Ceiling Height: N/A
- Garage (Sq. Ft.): 824 Sq.Ft.
- Garage: 2 Bay Yes
- Bonus (Sq.Ft): 677 Sq.Ft.
- Garage/Carport Type:Front Load Front Load
- Bedrooms: 2
- Carport: No
- Full Baths: 3
- Roof Pitch: 9:12
- Half Baths: 1
- Porch Roof Pitch: 4:12
- Stories: 1.5
- Wall Construction: 2x4
- Lower Bonus (Sq. Ft.): N/A
- Vaulted Ceiling: No
- Depth (Ft): 51
- Width (Ft): 89
- Depth (In.) N/A
- Width (In.) 8
- Total Sq. Ft. 4376 Sq.Ft.
- Customizable: Yes
Key Features
- Bonus Room Over Garage
- Covered Front Porch
- Covered Rear Porch
- Decks Patios Balconies
- Formal Dining Room
- Kitchen Island
- Main Floor Master
- Open Floor Plan House Plans
- Split Bedroom Design
- Walk-in Closet
- Walk-in-Pantry
Plan Collections
- Barndominium House Plans Collection
- Michael E. Nelson House Plans Collection
- Riverbend Cabin House Plans Collection
- Waterfront House Plans Collection
Plan Styles
- Barndominium House Plans
- Lake House Plans
- Country Home House Plans
- Craftsman House Plans
- Low Country House Plans
- Mountain House Plans
- Rustic House Plans
- Southern House Plans

