House Plan 1641 Weekend Retreat II, Riverbend House Plan
Please log in or create account to add the product in wishlist.
Wishlist is not saved permanently yet. Please log in or create account to save it.
Or order by phone: (870) 931-5777
Floor Plans
Description
House Plan 1641 Weekend Retreat II – Charming Riverbend Cabin with Wrap‑Around Porch
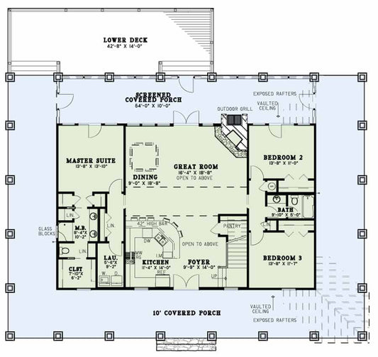
Enjoy relaxed living and timeless rustic charm with House Plan 1641 Weekend Retreat II, a beautifully designed 1.5-story Riverbend home offering approximately 1,766 sq ft of heated living space. This versatile plan features 2 bedrooms, 2 full baths, and 1 half bath, making it perfect as a main residence or a cozy vacation retreat. The exterior showcases classic shake siding, stone accents, and a striking wrap‑around porch that invites outdoor living and scenic views. Inside, an open floor plan connects the spacious den with a fireplace to the kitchen and dining area, creating a welcoming space for family and friends. The main‑floor master suite includes a large walk‑in closet and well‑appointed bath, while the upper level offers a second bedroom with full bath. Additional unfinished basement space provides room for expansion or recreational areas.
Key Features
• Approximately 1,766 sq ft of heated living space
• 2 bedrooms, 2 full baths, and 1 half bath
• 1.5-story Riverbend cabin style with rustic exterior
• Expansive wrap‑around porch ideal for outdoor living
• Open den with fireplace connected to kitchen and dining
• Main‑floor master suite with large walk‑in closet and private bath
• Upper‑floor second bedroom with full bath and linen closet
• Large kitchen island and walk‑in pantry for convenience
• Unfinished basement space for future expansion or recreation
• Roof and exterior details designed for rustic aesthetics and durability
Home Specifications
- Total Living Space: 1766
- Ridge Height (Ft.) 22
- Main Floor (Sq. Ft.): 1417 Sq.Ft
- Ridge Height (In.) 6
- Upper Floor (Sq. Ft.): 349 Sq.Ft.
- Main Ceiling Height: 9
- Lower Floor (Sq. Ft.): 1287 Sq.Ft.
- Upper Ceiling Height: 8
- Porch (Sq. Ft.): 550 Sq.Ft.
- Lower Ceiling Height: 10
- Garage (Sq. Ft.): N/A
- Garage: No
- Bonus (Sq.Ft): 326 Sq.Ft.
- Garage/Carport Type:N/A N/A
- Bedrooms: 2
- Carport: N/A
- Full Baths: 2
- Roof Pitch: 9:12
- Half Baths: 1
- Porch Roof Pitch: 4:12
- Stories: 1.5
- Wall Construction: 2x4
- Lower Bonus (Sq. Ft.): N/A
- Vaulted Ceiling: No
- Depth (Ft): 46
- Width (Ft): 53
- Depth (In.) 6
- Width (In.) 2
- Total Sq. Ft. 3929 Sq.Ft.
- Customizable: Yes
Key Features
- Bonus Room
- Covered Front Porch
- Decks Patios Balconies
- Grilling Porch
- Kitchen Island
- Main Floor Master
- No Formal Dining
- Open Floor Plan House Plans
- Peninsula/Eating Bar
- Split Bedroom Design
- Walk-in Closet
- Walk-in-Pantry
- Wrap-Around Porch
Plan Collections
- Riverbend Cabin House Plans Collection
- Waterfront House Plans Collection
Plan Styles
- Country Home House Plans
- Craftsman House Plans
- Lake House Plans
- Low Country House Plans
- Mountain House Plans
- Rustic House Plans
- Southern House Plans















