House Plan 5207 Riverrun, Craftsman Bungalow House Plan
House Plan:MEN 5207
$1,350.00
/
Add to Wishlist
Remove from Wishlist
[View Wishlist]
Please log in or create account to add the product in wishlist.
Wishlist is not saved permanently yet. Please log in or create account to save it.
Or order by phone: (870) 931-5777
Floor Plans
Description
Discover House Plan MEN 5207 – Riverrun from Nelson Design Group
With its charming cabin feel and rustic elegance, House Plan MEN 5207 – Riverrun features about 1,905 square feet of living space across 1.5 stories. This design is ideal for settings close to nature—wooded lots, lakefront, or countryside—where the wrap‑around porch and natural materials blend the home into its surroundings.
Inside, Riverrun combines open spaces and cozy retreats, offering flexibility, comfort, and visual appeal for families who appreciate both form and function.
Why Homeowners Will Love It
-
Rustic Curb Appeal & Outdoor Living
Riverrun’s wrap‑around porch, stone‑based columns, board‑and‑batten siding, and metal roofing give it a warm, rustic character that invites you to linger outdoors. A covered grilling porch adds even more space to enjoy nature. -
Open, Shared Living Spaces
From the front porch, you enter directly into a spacious great room featuring a stone fireplace as its focal point. The floor plan is open, so the great room flows seamlessly into the kitchen and dining area—ideal for gatherings, family time, and entertaining. -
Flexible & Inviting Kitchen / Dining
The kitchen includes a high bar for seating, ample counter space, and a walk‑in supply room (pantry) just off the dining area. Mealtime, prep, and cleanup are connected to the main living areas for ease and social interaction. -
Comfortable Master Suite on Main Level
The main floor houses the master bedroom with a “pop‑out” bay window seating area, bringing in natural light and giving the room visual depth. A full hall bath is located nearby for convenience. -
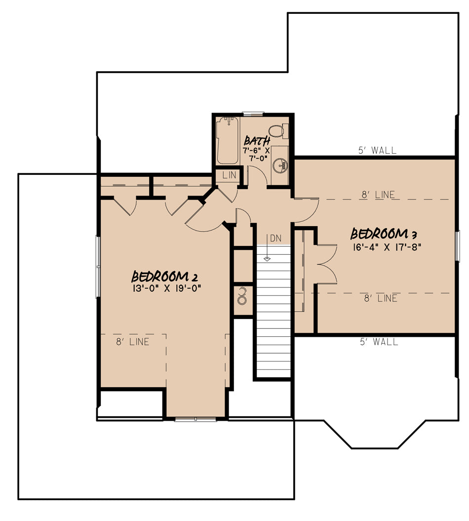
Upper-Level Bedrooms & Shared Bath
Upstairs, Bedrooms 2 and 3 are generously sized, each with large closets and easy access to a shared hall bathroom. A linen closet supports storage needs on this floor.
Home Specifications
- Total Living Space: 1905
- Ridge Height (Ft.) 24
- Main Floor (Sq. Ft.): 1174 Sq.Ft
- Ridge Height (In.) 4
- Upper Floor (Sq. Ft.): 731 Sq.Ft.
- Main Ceiling Height: 9
- Lower Floor (Sq. Ft.): N/A
- Upper Ceiling Height: 8
- Porch (Sq. Ft.): 628 Sq.Ft.
- Lower Ceiling Height: N/A
- Garage (Sq. Ft.): N/A
- Garage: No
- Bonus (Sq.Ft): N/A
- Garage/Carport Type:N/A N/A
- Bedrooms: 3
- Carport: N/A
- Full Baths: 2
- Roof Pitch: 9:12
- Porch Roof Pitch: N/A
- Stories: 1.5
- Wall Construction: 2x4
- Lower Bonus (Sq. Ft.): N/A
- Vaulted Ceiling: No
- Depth (Ft): 49
- Width (Ft): 44
- Depth (In.) 3
- Width (In.) 8
- Total Sq. Ft. 2576 Sq.Ft.
- Customizable: Yes
Key Features
- Covered Front Porch
- Covered Rear Porch
- Formal Dining Room
- Great Room
- Grilling Porch
- Main Floor Master
- Narrow Lot House Plans
- Open Floor Plan House Plans
- Peninsula/Eating Bar
- Walk-in Closet
- Walk-in-Pantry
- Wrap-Around Porch
Plan Collections
- Michael E. Nelson House Plans Collection
- Riverbend Cabin House Plans Collection
Plan Styles
- Country Home House Plans
- Craftsman House Plans
- Mountain House Plans
- Rustic House Plans



