House Plan 5357 Overlook Cottage, Cottage House Plan
Please log in or create account to add the product in wishlist.
Wishlist is not saved permanently yet. Please log in or create account to save it.
Or order by phone: (870) 931-5777
Floor Plans
Description
House Plan MEN 5357 – Overlook Cottage
House plan MEN 5357 Overlook Cottage captures the cozy charm of cottage living, combining warmth and efficiency in a thoughtfully laid out design. This home plan is perfect for those seeking a smaller footprint that still delivers style, livability, and comfort.
Layout & Features
- Open Great Room / Kitchen / Dining Area: seamless flow for everyday life and entertaining
- Kitchen with Peninsula or Island Option: ideal for casual meals or extra workspace
- Main-Level Master Suite: features dual vanities, walk-in closet, and private access to porch
- Upper-Level Loft / Bonus Space: flexible space for a guest bedroom, home office, or play area
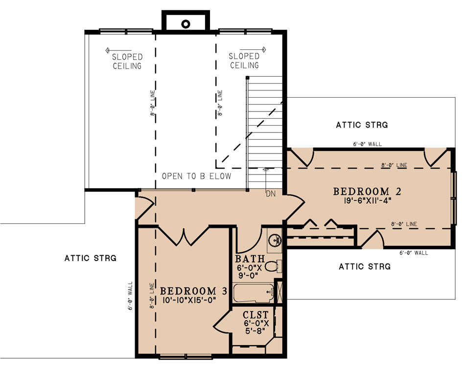
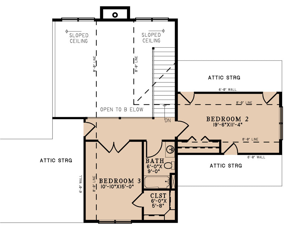
- Two Additional Bedrooms & Full Bath Upstairs
- Multiple Porch Options: front porch adds curb appeal; rear porch boosts outdoor living potential
- Efficient Footprint: compact yet spacious, minimizing unused or wasted space
Why Overlook Cottage Stands Out
Overlook Cottage blends cottage style with practical design. Its size and layout make it ideal for small to mid-size lots or for those desiring manageable, yet comfortable, living. The inclusion of a loft or bonus space adds flexibility without dramatically increasing footprint. Every room is proportioned with purpose — no wasted corners.
Home Specifications
- Total Living Space: 2181
- Ridge Height (Ft.) 23
- Main Floor (Sq. Ft.): 1576 Sq.Ft
- Ridge Height (In.) 0
- Upper Floor (Sq. Ft.): 605 Sq.Ft.
- Main Ceiling Height: 9
- Lower Floor (Sq. Ft.): N/A
- Upper Ceiling Height: 8
- Porch (Sq. Ft.): 48 Sq.Ft.
- Lower Ceiling Height: N/A
- Garage (Sq. Ft.): N/A
- Garage: No
- Bonus (Sq.Ft): N/A
- Garage/Carport Type:N/A N/A
- Bedrooms: 3
- Carport: No
- Full Baths: 2
- Roof Pitch: 12:12
- Half Baths: 1
- Porch Roof Pitch: 3:12
- Stories: 1.5
- Wall Construction: 2x6
- Lower Bonus (Sq. Ft.): N/A
- Vaulted Ceiling: No
- Depth (Ft): 45
- Width (Ft): 54
- Depth (In.) N/A
- Width (In.) N/A
- Total Sq. Ft. 2229 Sq.Ft.
- Customizable: Yes
Key Features
- Covered Front Porch
- Decks Patios Balconies
- Economic Structure
- Formal Dining Room
- Great Room
- Home Office/Study
- Kitchen Island
- Main Floor Master
- Narrow Lot House Plans
- Open Floor Plan House Plans
- Outdoor Living Space
- Peninsula/Eating Bar
- Split Bedroom Design
- Walk-in Closet
Plan Collections
- Affordable House Plans Collection
- Arts and Crafts House Plans Collection
- Cottage House Plans
- Michael E. Nelson House Plans Collection
- Modern Farmhouse Plans
- Riverbend Cabin House Plans Collection
Plan Styles
- Arts & Crafts House Plans
- Country Home House Plans
- Craftsman House Plans
- Farmhouse House Plans
- Lake House Plans
- Modern Contemporary House Plans
- Rustic House Plans
- Traditional House Plans
- Vacation House Plans

