Riverbend Cabin House Plan, 5458 River Falls Cabin
House Plan:MEN 5458
$800.00
/
Add to Wishlist
Remove from Wishlist
[View Wishlist]
Please log in or create account to add the product in wishlist.
Wishlist is not saved permanently yet. Please log in or create account to save it.
Or order by phone: (870) 931-5777
Floor Plans
Description
Discover the Plan MEN 5458 “River Falls Cabin” from Nelson Design Group — a cozy 1.5‑story retreat crafted for relaxed living.
Why You’ll Love This House Plan
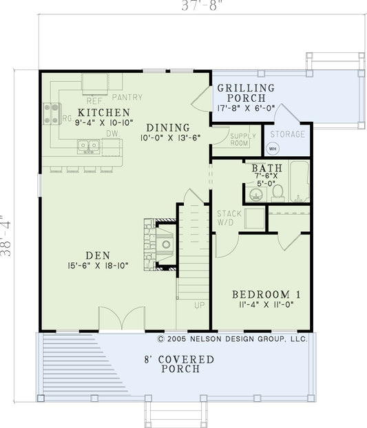
- Offers approximately 1,763 sq ft of living space, including 3 bedrooms, 2 full baths, and 1 half bath.
- The footprint is 34 ft wide by 54 ft deep, making it well‑suited for wooded lots, lakeside sites, or compact acreage.
- Exterior design emphasizes cabin‑style charm: open living, a vaulted great room, and covered porch space (approx. 268 sq ft) that draws you outdoors.
- The main floor features an open layout with vaulted ceilings in the great room, creating a spacious feel despite the modest size.
- Upstairs the layout accommodates two additional private bedrooms and a full bath — giving guests or family their own zone.
Who This Plan Is For
If you’re looking for a home plan that offers simplicity, style, and retreat‑like living, the “River Falls Cabin” is a standout. It’s especially well‑suited to:
- Buyers with a smaller or scenic lot who want efficient footprint without sacrificing quality.
- Homeowners seeking cabin or lodge aesthetic (vaulted ceilings, covered porch, open living) while maintaining everyday comfort.
- Families or couples who like the idea of a main‑floor master along with upstairs rooms for guests, family, or hobby space.
- Anyone wanting a footprint that feels cozy yet open — especially for weekend getaways, nature‑adjacent settings, or simplified full‑time living.
Home Specifications
- Total Living Space: 1763
- Ridge Height (Ft.) 22
- Main Floor (Sq. Ft.): 1176 Sq.Ft
- Ridge Height (In.) 0
- Upper Floor (Sq. Ft.): 587 Sq.Ft.
- Main Ceiling Height: 8
- Lower Floor (Sq. Ft.): N/A
- Upper Ceiling Height: 8
- Porch (Sq. Ft.): 268 Sq.Ft.
- Lower Ceiling Height: N/A
- Garage (Sq. Ft.): N/A
- Garage: No
- Bonus (Sq.Ft): N/A
- Garage/Carport Type:N/A N/A
- Bedrooms: 3
- Carport: N/A
- Full Baths: 2
- Roof Pitch: 9:12
- Half Baths: 1
- Porch Roof Pitch: 10:12
- Stories: 1.5
- Wall Construction: 2x4
- Lower Bonus (Sq. Ft.): N/A
- Vaulted Ceiling: Yes
- Depth (Ft): 54
- Width (Ft): 34
- Depth (In.) N/A
- Width (In.) N/A
- Total Sq. Ft. 2031 Sq.Ft.
- Customizable: Yes
Key Features
- Balcony
- Covered Front Porch
- Decks Patios Balconies
- Great Room
- Grilling Porch
- Main Floor Master
- No Formal Dining
- Open Floor Plan House Plans
- Peninsula/Eating Bar
- Split Bedroom Design
- Vaulted High Cathedral Ceiling
- Walk-in-Pantry
Plan Collections
- Angler Mountain House Plans Collection
- Arts and Crafts House Plans Collection
- Michael E. Nelson House Plans Collection
- Riverbend Cabin House Plans Collection
- Rustic Ridge House Plans Collection
Plan Styles
- Lake House Plans
- Rustic House Plans



















