House Plan 1003 Nelcrest Place, Modern House Plan
House Plan:SMN 1003
$1,650.00
/
Shipping calculated at checkout.
Add to Wishlist
Remove from Wishlist
[View Wishlist]
Please log in or create account to add the product in wishlist.
Wishlist is not saved permanently yet. Please log in or create account to save it.
Or order by phone: (870) 931-5777
Floor Plans
Description
Discover the Plan SMN 1003 “Nelcrest Place” from Nelson Design Group — a well‑crafted single‑story residence designed for modern comfort and curb appeal.
Why You’ll Love This House Plan
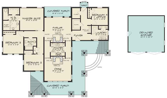
- The total living space is approximately 2,272 sq ft with a wrap‑around covered front porch of about 731 sq ft and a two‑bay side‑load garage of roughly 521 sq ft.
- Features include 3 bedrooms, 2 full baths, and 1 half bath — offering flexibility for family or guests.
- The overall footprint measures 72 ft 2 in wide by 64 ft 10 in deep, making it spacious yet manageable.
- On the exterior you’ll notice a modern design with a wrap‑around front porch supported by large tapered stone columns and an arched metal roof — offering strong curb appeal and distinctive style.
- The interior layout opens to a spacious great room with abundant windows and a gas fireplace. The kitchen sits behind the great room and transitions into the dining area — designed for interaction, light, and flow.
- The master suite resides at the back left corner, with access to a rear covered porch; its bath includes a whirlpool tub, corner glass shower, and a walk‑in closet.
- Bedrooms 2 and 3 share the left side of the plan, alongside one of the full baths; the right side of the layout accommodates the garage entry, half bath, and a laundry/mudroom zone — designed for function and convenience.
Who This Plan Is For
If you’re drawn to a home that merges modern aesthetic with thoughtful layout, “Nelcrest Place” is a strong choice. It’s especially well‑suited to:
- Families or homeowners seeking a single‑story home that still has generous space and an open layout.
- Buyers wanting a stylish modern exterior (metal roof, stone columns, expansive windows) paired with functional design.
- People valuing open concept living — great room, kitchen, and dining are connected for everyday use and entertaining.
- Homeowners who appreciate clever transitions — master suite backing to outdoor space, laundry/mudroom near garage, a side‑load garage for better curb & site fit.
- Anyone aiming for a design that balances curb presence, indoor‑outdoor flow, and efficient use of space.
Home Specifications
- Total Living Space: 2272
- Ridge Height (Ft.) 19
- Main Floor (Sq. Ft.): 2272 Sq.Ft
- Ridge Height (In.) 0
- Upper Floor (Sq. Ft.): N/A
- Main Ceiling Height: 10
- Lower Floor (Sq. Ft.): N/A
- Upper Ceiling Height: N/A
- Porch (Sq. Ft.): 731 Sq.Ft.
- Lower Ceiling Height: N/A
- Garage (Sq. Ft.): 521 Sq.Ft.
- Garage: 2 Bay Yes
- Bonus (Sq.Ft): N/A
- Garage/Carport Type:Side Load Side Load
- Bedrooms: 3
- Carport: N/A
- Full Baths: 2
- Roof Pitch: 3:12
- Half Baths: 1
- Porch Roof Pitch: N/A
- Stories: 1.0
- Wall Construction: 2x4
- Lower Bonus (Sq. Ft.): N/A
- Vaulted Ceiling: No
- Depth (Ft): 64
- Width (Ft): 72
- Depth (In.) 10
- Width (In.) 2
- Total Sq. Ft. 3524 Sq.Ft.
- Customizable: Yes
Key Features
- Covered Front Porch
- Covered Rear Porch
- Great Room
- Kitchen Island
- Main Floor Master
- Mudroom
- No Formal Dining
- Open Floor Plan House Plans
- Outdoor Living Space
- Peninsula/Eating Bar
- Walk-in Closet
- Walk-in-Pantry
- Wrap-Around Porch
Plan Collections
- Customizable Exteriors House Plans Collection
- Seth M. Nelson House Plans Collection
- Modern House Plans
Plan Styles
- Modern Contemporary House Plans
- Mediterranean House Plans



