House Plan 1006 La Hannah, Modern House Plan
House Plan:SMN 1006
$1,550.00
/
Shipping calculated at checkout.
Add to Wishlist
Remove from Wishlist
[View Wishlist]
Please log in or create account to add the product in wishlist.
Wishlist is not saved permanently yet. Please log in or create account to save it.
Or order by phone: (870) 931-5777
Floor Plans
Description
Discover the Plan SMN 1006 “La Hannah” from Nelson Design Group — a stylish 1½‑story residence designed for today’s living.
Why You’ll Love This House Plan
- Offers approximately 2,186 sq ft of living space in total.
- The design features 3 bedrooms, 2 full baths, and a 2‑car front‑load garage.
- Footprint: roughly 55 ft 2 in wide by 64 ft 8 in deep, making it compact yet roomy.
- Curb appeal: A contemporary exterior with stone and stucco, abundant windows, and a standout garage door design that adds visual interest.
- Interior layout: Open concept great room, kitchen and dining area designed for relaxed living and connection. The master suite is main‑floor and includes a large walk‑in closet plus a luxurious bath with freestanding tub and oversized tile/glass shower.
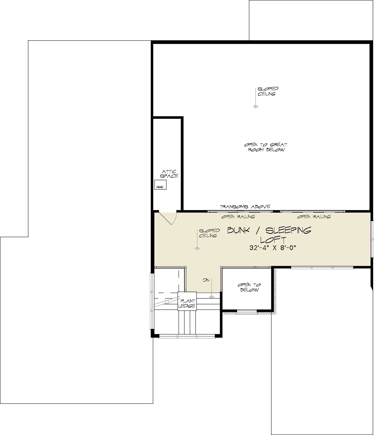
- Upstairs, you’ll find a loft space overlooking below — adding flexibility for work, recreation or guest use.
Who This Plan Is For
If you’re seeking a home plan that blends modern aesthetics with functional living and efficient footprint, the “La Hannah” plan is a strong choice. It’s especially well‑suited to:
- Homeowners who want stylish, modern exterior lines and standout visual design.
- Families or couples looking for an open floor plan that still provides distinct bedroom and guest zones.
- Buyers who prefer a 1½‑story layout — main floor living plus an upstairs loft — instead of a full two‑story.
- Anyone who appreciates quality details: luxury bath in the master, well‑designed kitchen, smart use of space.
Home Specifications
- Total Living Space: 2494
- Ridge Height (Ft.) 24
- Main Floor (Sq. Ft.): 2186 Sq.Ft
- Ridge Height (In.) 0
- Upper Floor (Sq. Ft.): 308 Sq.Ft.
- Main Ceiling Height: 9
- Lower Floor (Sq. Ft.): N/A
- Upper Ceiling Height: 8
- Porch (Sq. Ft.): 164 Sq.Ft.
- Lower Ceiling Height: N/A
- Garage (Sq. Ft.): 579 Sq.Ft.
- Garage: 2 Bay Yes
- Bonus (Sq.Ft): N/A
- Garage/Carport Type:Front Load Front Load
- Bedrooms: 3
- Carport: N/A
- Full Baths: 2
- Roof Pitch: 3:12
- Porch Roof Pitch: 3:12
- Stories: 1.5
- Wall Construction: 2x4
- Lower Bonus (Sq. Ft.): N/A
- Vaulted Ceiling: No
- Depth (Ft): 64
- Width (Ft): 55
- Depth (In.) 8
- Width (In.) 2
- Total Sq. Ft. 3237 Sq.Ft.
- Customizable: Yes
Key Features
- Covered Front Porch
- Covered Rear Porch
- Formal Dining Room
- Great Room
- Kitchen Island
- Loft
- Main Floor Master
- Open Floor Plan House Plans
- Peninsula/Eating Bar
- Split Bedroom Design
- Walk-in Closet
- Walk-in-Pantry
Plan Collections
- Customizable Exteriors House Plans Collection
- Seth M. Nelson House Plans Collection
Plan Styles
- Modern Contemporary House Plans
- Mediterranean House Plans





