House Plan 1270 Northbrook, Rustic House Plan
House Plan:NDG 1270
$2,450.00
/
Shipping calculated at checkout.
Add to Wishlist
Remove from Wishlist
[View Wishlist]
Please log in or create account to add the product in wishlist.
Wishlist is not saved permanently yet. Please log in or create account to save it.
Or order by phone: (870) 931-5777
Floor Plans
Description
Northbrook Plan NDG 1270 – A Spacious Rustic House Plan for Large Families & Flexibility
If you’re looking for house plans that offer generous living space, versatile layout, and classic rustic charm, Northbrook (Plan 1270) is an excellent choice. This home plan provides ample room for large or multi‑generation families, flexible spaces for various needs, and the timeless appeal of a rustic-inspired design.
Highlights of the Northbrook House Plan
- Approximately 6,089 square feet of total living space, providing abundant room for everyday living, entertaining, and accommodating a large household
- Four bedrooms and multiple bathrooms, designed to comfortably serve family members, guests, or multi-generational living
- Spacious garage layout, ideal for vehicles, storage, or a workshop
- Rustic-style exterior, combining timeless appeal with natural materials, perfectly suited for scenic or rural lots
- Flexible multi-level floor plan, offering varied living zones for family activities, private retreats, or guest accommodations
- Generous common areas, perfect for entertaining, family gatherings, or hosting visitors
- Designed for long-term living, with a layout that supports changing family needs over time, from growing households to extended family visits
Northbrook (Plan 1270) delivers a balance of space, flexibility, and rustic elegance. Its expansive floor plan, functional layout, and timeless exterior make it an ideal home for families seeking comfort, practicality, and style in a single plan.
Home Specifications
- Total Living Space: 6089
- Ridge Height (Ft.) 31
- Main Floor (Sq. Ft.): 2712 Sq.Ft
- Ridge Height (In.) 0
- Upper Floor (Sq. Ft.): 455 Sq.Ft.
- Main Ceiling Height: 9
- Lower Floor (Sq. Ft.): 2922 Sq.Ft.
- Upper Ceiling Height: 8
- Porch (Sq. Ft.): 1133 Sq.Ft.
- Lower Ceiling Height: 9
- Garage (Sq. Ft.): 752 Sq.Ft.
- Garage: 3 Bay Yes
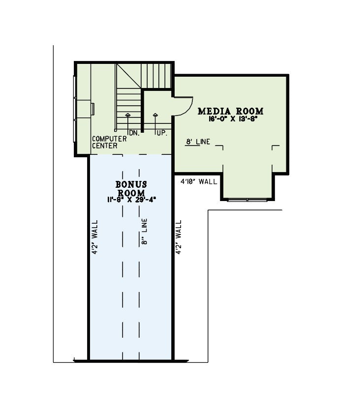
- Bonus (Sq.Ft): 360 Sq.Ft.
- Garage/Carport Type:Side Load Side Load
- Bedrooms: 6
- Carport: N/A
- Full Baths: 4
- Roof Pitch: 10:12
- Half Baths: 1
- Porch Roof Pitch: N/A
- Stories: 2.0
- Wall Construction: 2x4
- Lower Bonus (Sq. Ft.): N/A
- Vaulted Ceiling: Yes
- Depth (Ft): 79
- Width (Ft): 69
- Depth (In.) 2
- Width (In.) 10
- Total Sq. Ft. 8334 Sq.Ft.
- Customizable: Yes
Key Features
- Bonus/Game and Media Room
- Covered Front Porch
- Covered Rear Porch
- Formal Dining Room
- Great Room
- Grilling Porch
- Home Office/Study
- Home Theater
- Kitchen Island
- Main Floor Master
- Nook/Breakfast Area
- Open Floor Plan House Plans
- Outdoor Living Space
- Peninsula/Eating Bar
- Sitting Area
- Split Bedroom Design
- Vaulted High Cathedral Ceiling
- Walk-in Closet
- Walk-in-Pantry
Plan Collections
- Rustic Ridge House Plans Collection
Plan Styles
- Arts & Crafts House Plans
- Craftsman House Plans
- Mountain House Plans
- Rustic House Plans











