House Plan 1300 Hilda Place, Multi-Family House Plan
Please log in or create account to add the product in wishlist.
Wishlist is not saved permanently yet. Please log in or create account to save it.
Or order by phone: (870) 931-5777
Floor Plans
Description
Hilda Place Plan NDG 1300 | Spacious, Flexible Multi‑Family House Plan
The Hilda Place house plan (Plan 1300) offers a well-thought-out, generous layout that combines comfort, flexibility, and style. Ideal for families, investors, or multi-family developments, this plan delivers a balanced mix of living space, private suites, and shared areas.
Why Hilda Place Is a Smart Choice
- Total living space of approximately 2,226 sq ft per unit — ample room for families or shared households
- Three-bedroom layout with two full baths and one half bath — accommodating households of various sizes with comfort and privacy
- Two-bay rear-load garage — practical for parking and storage while preserving curb appeal
- One-and-a-half-story design — combines generous living areas with efficient use of vertical space
Highlights of the Hilda Place Plan
- Inviting exterior design with brick and horizontal siding plus covered front porches for classic curb appeal
- Spacious main-floor living: foyer leads to formal dining room flowing into a great room with fireplace and breakfast area adjoining the kitchen — ideal for family life and entertaining
- Main-floor master suite near the garage — with walk-in closet, full bath featuring separate shower and whirlpool tub for comfort and convenience
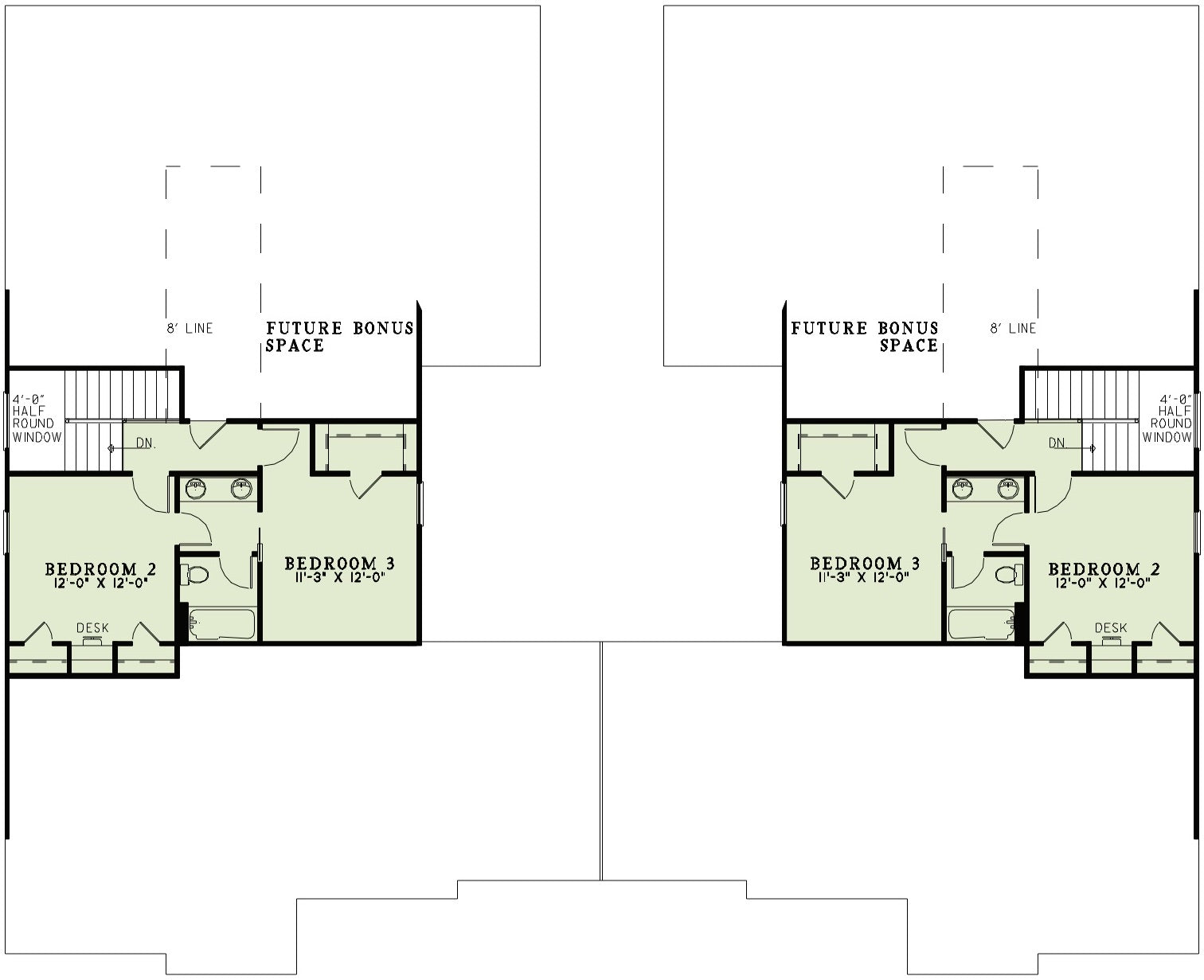
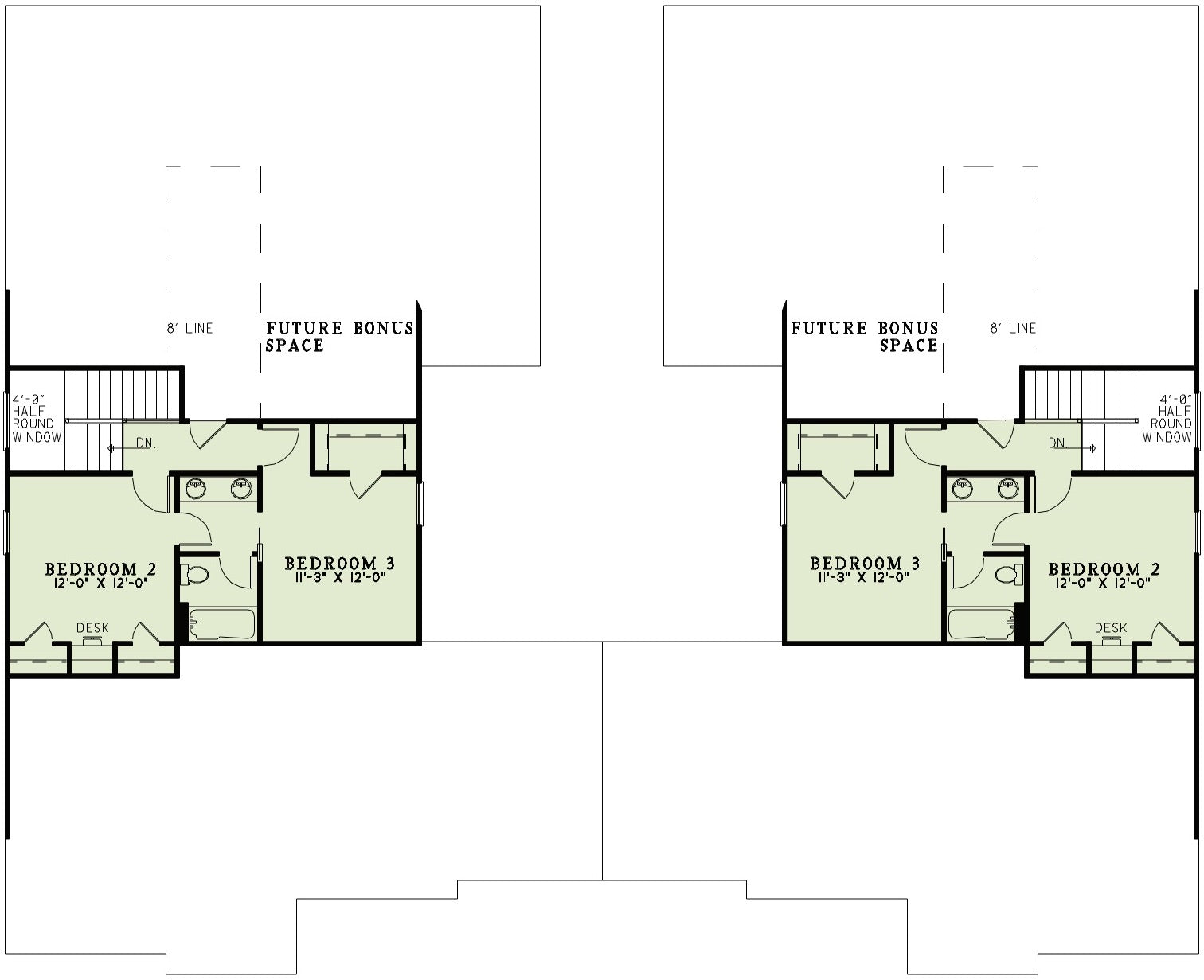
- Upstairs bedrooms (2 and 3) share a Jack-and-Jill bathroom — ideal for children, roommates, or guests
- Covered patio and courtyard with convenient half bath — extending living space outdoors for relaxation or entertaining
- Split-unit duplex design (units are mirror images) — efficient for building, rental income, or multi-family living
Picture Living or Investing with Hilda Place
Imagine a home with a classic exterior and a cozy covered front porch, opening to a spacious interior where dining, living, and kitchen flow seamlessly. The main-floor master suite offers privacy and comfort, while upstairs bedrooms share a well-designed bath. Outdoor living is enhanced by a covered patio and courtyard. Whether building for a single family or as a duplex for rental or multi-family use, Hilda Place provides a timeless, functional, and attractive home plan suited to real-life needs.
Home Specifications
- Total Living Space: 2226
- Ridge Height (Ft.) 27
- Main Floor (Sq. Ft.): 1731 Sq.Ft
- Ridge Height (In.) 10
- Upper Floor (Sq. Ft.): 495 Sq.Ft.
- Main Ceiling Height: 9
- Lower Floor (Sq. Ft.): N/A
- Upper Ceiling Height: 8
- Porch (Sq. Ft.): 324 Sq.Ft.
- Lower Ceiling Height: N/A
- Garage (Sq. Ft.): 464 Sq.Ft.
- Garage: 2 Bay Yes
- Bonus (Sq.Ft): N/A
- Garage/Carport Type:Rear Load Rear Load
- Bedrooms: 3
- Carport: N/A
- Full Baths: 2
- Roof Pitch: 10:12
- Half Baths: 1
- Porch Roof Pitch: N/A
- Stories: 1.5
- Wall Construction: 2x4
- Lower Bonus (Sq. Ft.): N/A
- Vaulted Ceiling: Yes
- Depth (Ft): 70
- Width (Ft): 86
- Depth (In.) 4
- Width (In.) 8
- Total Sq. Ft. 3014 Sq.Ft.
- Customizable: Yes
Key Features
- Covered Front Porch
- Decks Patios Balconies
- Formal Dining Room
- Great Room
- Jack & Jill Bathroom
- Main Floor Master
- Narrow Lot House Plans
- Nook/Breakfast Area
- Open Floor Plan House Plans
- Peninsula/Eating Bar
- Split Bedroom Design
- Walk-in Closet
- Walk-in-Pantry
- Wrap-Around Porch
Plan Collections
- Multi-Family House Plans
Plan Styles
- Arts & Crafts House Plans
- Country Home House Plans
- Craftsman House Plans
- Southern House Plans
- Traditional House Plans







