House Plan 1306 La Dessa, European House Plan
House Plan:NDG 1306
$1,550.00
/
Shipping calculated at checkout.
Add to Wishlist
Remove from Wishlist
[View Wishlist]
Please log in or create account to add the product in wishlist.
Wishlist is not saved permanently yet. Please log in or create account to save it.
Or order by phone: (870) 931-5777
Floor Plans
Description
Discover European Charm with House Plan NDG 1306 – La Dessa
Looking for a sophisticated house plan that blends Old‑World European elegance with modern functionality? House Plan NDG 1306 – La Dessa delivers luxurious living across thoughtfully designed spaces, ideal for both entertaining and daily comfort.
Plan Highlights at a Glance
- Total Living Space: 3,202 sq ft across one and a half stories
- Bedrooms & Baths: 3 bedrooms and 3 full baths, designed for privacy and ease
- Garage: Front-load 2‑bay garage for convenient access and curb appeal
- Layout Dimensions: Approximately 62 ft wide and 73 ft deep
- Included Bonus Space: Optional upper-level room (540 sq ft) perfect for media, hobby, or guest use
- Porches & Garage Area: 300 sq ft of porch space; 794 sq ft dedicated to the garage
- Customization: Fully adaptable to suit personal preferences or site requirements
Elegant Interior Features
- Charming Materials: A mix of stone and stucco gives exterior appeal and timeless character
- Inviting Foyer to Study: Upon entering, French doors open into a study featuring a built-in computer center—perfect for work or quiet reading
- Refined Dining: The formal dining room adds architectural detail with columns and a bay window
- Dual Gathering Spaces: Both the living room and great room offer cozy fireplaces for warmth and ambiance
- Kitchen Designed for Family: A layout that draws people together with a wrap‑around peninsula bar, dedicated coffee bar, built-in desk, and a breakfast room with window seating—ideal for casual meals or homework sessions
Luxurious Master Suite & Bonus Features
- Master Suite Retreat: This main-floor sanctuary includes two walk‑in closets, their doors set at a stylish 45-degree angle
- Spa-Like Master Bath: Through double doors lies a luxurious bathroom showcasing a whirlpool tub and glass shower for ultimate relaxation
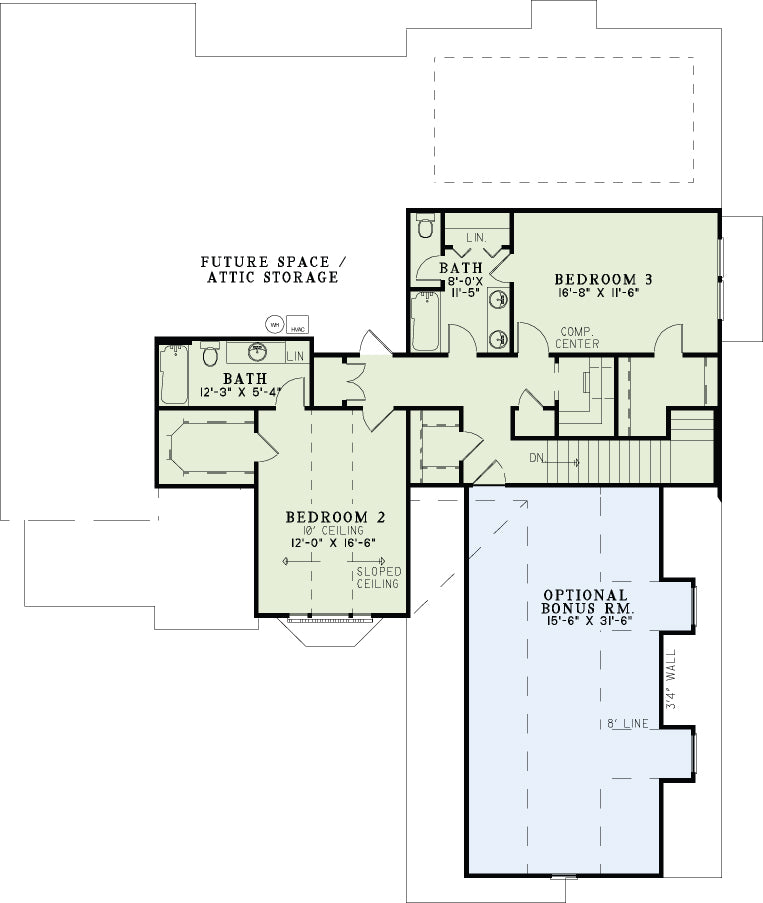
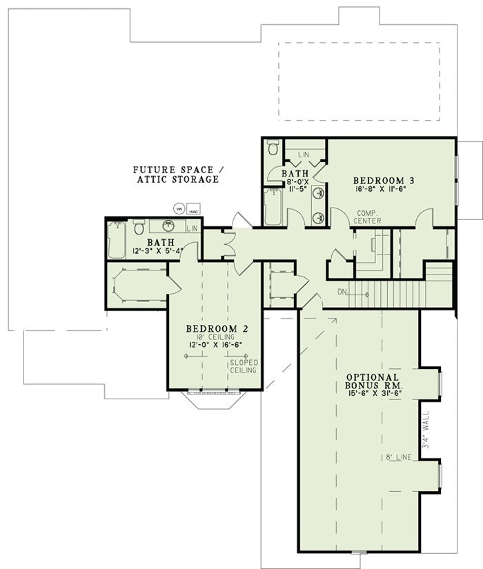
- Upper-Level Comfort: Bedrooms 2 and 3 each come with generous walk‑in closets and private full bathrooms—comfort and privacy for family or guests
- Bonus Opportunities: The optional bonus room upstairs can be customized for recreation, media, or multifunctional use
Architectural Style & Appeal
- Collections & Styles: La Dessa is part of the European and Stone Village collections, delivering traditional European styling with thoughtful, livable layouts
- Design Features: Highlights include an arched entry, covered front and rear porches, and a split-bedroom design for functional separation and flow
- Lifestyle-Friendly: With a mudroom, nook/breakfast area, open floor plan, and peninsula bar, the design supports both entertaining and everyday rituals with grace
Home Specifications
- Total Living Space: 3202
- Ridge Height (Ft.) 35
- Main Floor (Sq. Ft.): 2308 Sq.Ft
- Ridge Height (In.) 0
- Upper Floor (Sq. Ft.): 894 Sq.Ft.
- Main Ceiling Height: 9
- Lower Floor (Sq. Ft.): N/A
- Upper Ceiling Height: 8
- Porch (Sq. Ft.): 300 Sq.Ft.
- Lower Ceiling Height: N/A
- Garage (Sq. Ft.): 794 Sq.Ft.
- Garage: 2 Bay Yes
- Bonus (Sq.Ft): 540 Sq.Ft.
- Garage/Carport Type:Front Load Front Load
- Bedrooms: 3
- Carport: N/A
- Full Baths: 3
- Roof Pitch: 12:12
- Porch Roof Pitch: 12:12
- Stories: 1.5
- Wall Construction: 2x4
- Lower Bonus (Sq. Ft.): N/A
- Vaulted Ceiling: No
- Depth (Ft): 73
- Width (Ft): 62
- Depth (In.) 3
- Width (In.) N/A
- Total Sq. Ft. 4836 Sq.Ft.
- Customizable: Yes
Key Features
- Arched Entry
- Bonus Room Over Garage
- Covered Front Porch
- Covered Rear Porch
- Formal Dining Room
- Great Room
- Grilling Porch
- Home Office/Study
- Main Floor Master
- Mudroom
- Nook/Breakfast Area
- Open Floor Plan House Plans
- Peninsula/Eating Bar
- Split Bedroom Design
- Walk-in Closet
Plan Collections
- European House Plans Collection
- Stone Village Collection House Plans
Plan Styles
- European House Plans
- Traditional House Plans











