House Plan 1338 Percival, European House Plan
Please log in or create account to add the product in wishlist.
Wishlist is not saved permanently yet. Please log in or create account to save it.
Or order by phone: (870) 931-5777
Floor Plans
Description
Discover an Efficient, Comfortable House Plan: Percival NDG 1338
Percival (NDG 1338) is a compact, single-story house plan that combines smart use of space with a practical, well-organized layout. This design is ideal for small families, first-time homeowners, or anyone seeking a manageable home footprint with enough space for comfortable living.
Highlights of the Percival House Plan
- Approximately 1,338 square feet of living space — efficient and economical
- Three bedrooms and two full bathrooms — a balanced layout for everyday living
- Two-car garage for convenient parking and storage
- One-level design for easy access, maintenance, and a simpler living experience
- Open living space that merges Great Room, Kitchen, and Dining for flexible and comfortable everyday living
- Master suite sized for comfort, paired with two secondary bedrooms — ideal for family members, guests, or home office use
- Thoughtfully arranged bedrooms and bathrooms to maximize privacy and functionality
- Compact width and depth, making the plan suitable for narrower or modest-size lots — a practical option when land space is limited
A House Plan Built for Practicality, Comfort, and Value
Percival offers a simple yet thoughtful layout that makes the most of a modest square footage. Its efficient floor plan supports daily living — from relaxed family time to hosting guests — without excess space or unnecessary complexity. The combination of a two-car garage, three bedrooms, and two baths in a single-level design makes it a practical choice for many homeowners. Percival is especially well suited for those seeking an affordable, easy-to-maintain home or a starter house plan that balances comfort, style, and efficiency.
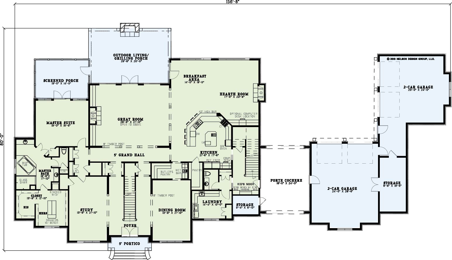
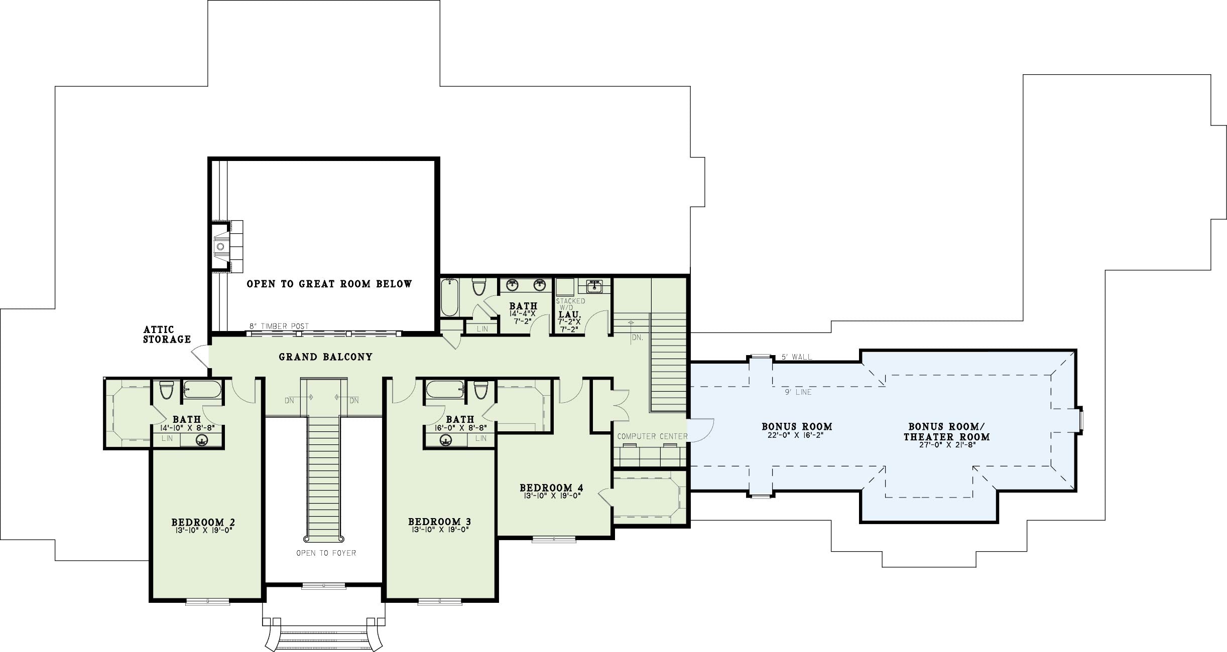
Home Specifications
- Total Living Space: 6674
- Ridge Height (Ft.) 51
- Main Floor (Sq. Ft.): 4728 Sq.Ft
- Ridge Height (In.) 8
- Upper Floor (Sq. Ft.): 1946 Sq.Ft.
- Main Ceiling Height: 12
- Lower Floor (Sq. Ft.): N/A
- Upper Ceiling Height: 10
- Porch (Sq. Ft.): 941 Sq.Ft.
- Lower Ceiling Height: N/A
- Garage (Sq. Ft.): 2140 Sq.Ft.
- Garage: 4 Bay Yes
- Bonus (Sq.Ft): 952 Sq.Ft.
- Garage/Carport Type:Side Load, Rear Load, and Porte-Cochere Side Load, Rear Load, and Porte-Cochere
- Bedrooms: 4
- Carport: Yes
- Full Baths: 4
- Roof Pitch: 16:12
- Half Baths: 1
- Porch Roof Pitch: N/A
- Stories: 2.0
- Wall Construction: 2x4
- Lower Bonus (Sq. Ft.): N/A
- Vaulted Ceiling: No
- Depth (Ft): 80
- Width (Ft): 156
- Depth (In.) N/A
- Width (In.) 8
- Total Sq. Ft. 10707 Sq.Ft.
- Customizable: Yes
Key Features
- Balcony
- Bonus Room
- Bonus Room Over Garage
- Butler's Pantry
- Covered Front Porch
- Covered Rear Porch
- Decks Patios Balconies
- Formal Dining Room
- Great Room
- Grilling Porch
- Home Office/Study
- Home Theater
- Kitchen Island
- Main Floor Master
- Mudroom
- Nook/Breakfast Area
- Open Floor Plan House Plans
- Outdoor Living Space
- Peninsula/Eating Bar
- Porte-Cochere
- Screened Porch
- Split Bedroom Design
- Walk-in Closet
- Walk-in-Pantry
Plan Collections
- European House Plans Collection
Plan Styles
- European House Plans
- French Classic House Plans
- Luxury House Plans
- Traditional House Plans









