House Plan 1288 St. Claire, European House Plan
Please log in or create account to add the product in wishlist.
Wishlist is not saved permanently yet. Please log in or create account to save it.
Or order by phone: (870) 931-5777
Floor Plans
Description
St. Claire – A Grand European-Inspired House Plan for Luxury and Comfort
If you are looking for luxurious house plans that combine elegance, spacious interiors, and thoughtful functionality, St. Claire (Plan NDG 1288) is a premier choice. This home is designed for homeowners who want a residence with impressive presence, generous living areas, and a layout perfect for entertaining, family life, and everyday comfort. With its striking exterior, high-end amenities, and flexible floorplan, St. Claire delivers both refinement and long-term value.
Highlights of the St. Claire House Plan
- Approximately 6,571 square feet of living space, offering abundant room for family, guests, and entertaining
- Four spacious bedrooms and four full bathrooms plus a half bath, providing comfort and privacy for all
- Four-bay side-load garage, accommodating multiple vehicles and additional storage or workshop needs
- Grand foyer with central staircase, opening to a formal study and dining room for an elegant, welcoming entry
- Expansive open floor plan, connecting the great room, kitchen, and breakfast area for seamless living
- Chef’s kitchen with large prep island, wrap-around counters with eating bar, computer desk workspace, and walk-in pantry
- Butler’s pantry and wet bar, ideal for formal dining or entertaining guests
- Multiple fireplaces and abundant natural light, including a great room fireplace and a grilling porch with outdoor fireplace
- Luxurious master suite on the main floor, with private access to a screened porch, spa-style bath, and his-and-her walk-in closets
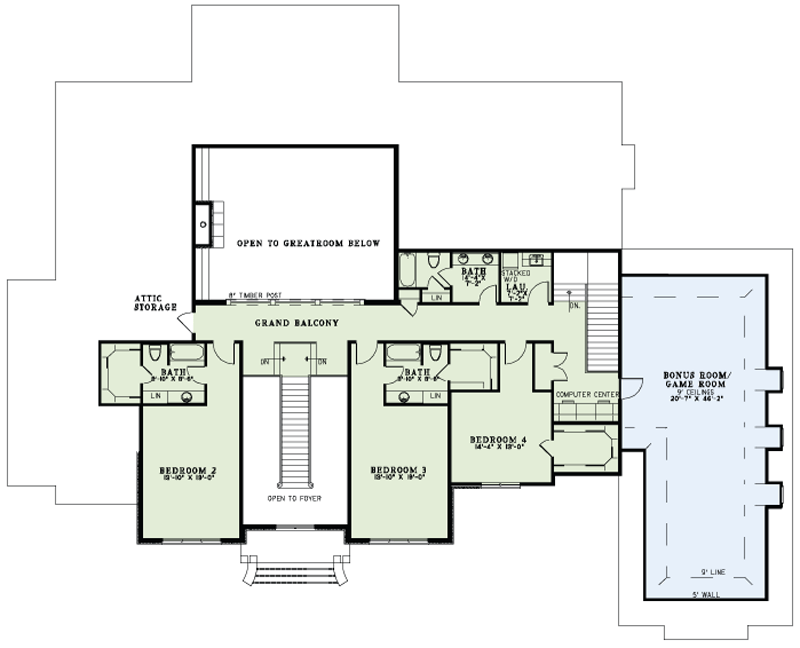
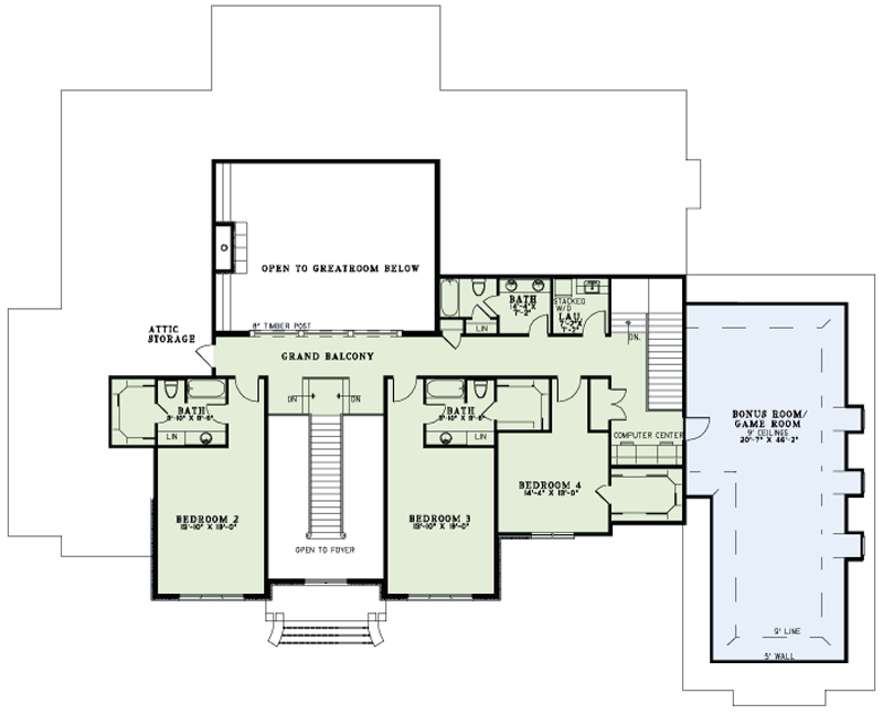
- Upper-level bedrooms and bonus spaces, including a game room and media room over the garage for flexible use
- Option for customization, allowing homeowners to adapt the plan to their lifestyle, preferences, or lot conditions
St. Claire combines grandeur and practicality in one exceptional design. With generous proportions, elegant architectural details, and a highly functional layout, this plan is perfect for homeowners seeking a luxurious home that supports both entertaining and comfortable everyday living.
Home Specifications
- Total Living Space: 6571
- Ridge Height (Ft.) 51
- Main Floor (Sq. Ft.): 4644 Sq.Ft
- Ridge Height (In.) 6
- Upper Floor (Sq. Ft.): 1927 Sq.Ft.
- Main Ceiling Height: 10
- Lower Floor (Sq. Ft.): N/A
- Upper Ceiling Height: 9
- Porch (Sq. Ft.): 945 Sq.Ft.
- Lower Ceiling Height: N/A
- Garage (Sq. Ft.): 1430 Sq.Ft.
- Garage: 4 Bay Yes
- Bonus (Sq.Ft): 936 Sq.Ft.
- Garage/Carport Type:Side Load Side Load
- Bedrooms: 4
- Carport: N/A
- Full Baths: 4
- Roof Pitch: 16:12
- Half Baths: 1
- Porch Roof Pitch: N/A
- Stories: 2.0
- Wall Construction: 2x4
- Lower Bonus (Sq. Ft.): N/A
- Vaulted Ceiling: No
- Depth (Ft): 91
- Width (Ft): 112
- Depth (In.) N/A
- Width (In.) 8
- Total Sq. Ft. 8946 Sq.Ft.
- Customizable: Yes
Key Features
- Balcony
- Bonus Room Over Garage
- Bonus/Game and Media Room
- Butler's Pantry
- Covered Rear Porch
- Formal Dining Room
- Great Room
- Grilling Porch
- Home Office/Study
- Kitchen Island
- Main Floor Master
- Mudroom
- Nook/Breakfast Area
- Open Floor Plan House Plans
- Peninsula/Eating Bar
- Screened Porch
- Split Bedroom Design
- Walk-in Closet
- Walk-in-Pantry
Plan Collections
- European House Plans Collection
Plan Styles
- European House Plans
- French Traditional House Plans
- Luxury House Plans
- Traditional House Plans









