House Plan 1383 Cabana Way, Waterfront House Plan
Please log in or create account to add the product in wishlist.
Wishlist is not saved permanently yet. Please log in or create account to save it.
Or order by phone: (870) 931-5777
Floor Plans
Description
Discover the Cabana House Plan - Plan NDG 1383
Feel the allure of the Mediterranean style with this magnificent Cabana home plan from Nelson Design Group, LLC. From its steep roof lines, down to each column on the porch area, the home oozes hospitality and friendliness. The lovely porte-cochère, with its massive stone columns serves as a dramatic prelude, welcoming guests for parking and pick-up/drop-off while protecting them from the elements.
Once you get into the foyer, you’ll be awed by the ambiance and serenity of the massive great room. A vaulted ceiling, sky windows and a glowing front entry blend perfectly with the high-pitched roof lines. The fireplace in the great room features built-ins on either side and warms the kitchen and dining room.
The Cabana kitchen has a large walk-in pantry, massive cabinets and huge counters that overlook the dining room and breakfast area. Entertaining is made easy thanks to the eat-at wet bar and island prep bar at the corner. The kitchen also provides easy access to the dining area and great room.
The master suite features cathedral ceilings, a private deck and a sitting area. Ultimate indulgence awaits you in the bathroom, which has a glass shower with a seat, an enormous walk-in closet and double vanities.
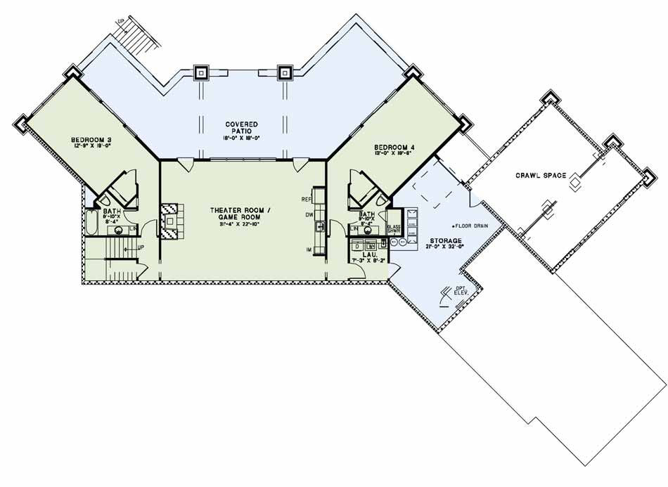
A second bedroom opposite the master suite features a full bath and also has cathedral ceilings. Downstairs, you’ll find two other bedrooms with their own walk-in closets and full baths. There is also a convenient laundry room and lots of storage space.
The theater/game room completes the other side of the Cabana plan. Family and friends are sure to enjoy the fireplace and mini-kitchen at the game room.
Here is a perfect contemporary home that offers an ideal rocking chair back porch and an easy-flow open plan. It covers 4,831 square feet of living space and has four bedrooms and four full baths.
We invite you to contact us at 870-931-5777 and browse through our house plans. Then, easily place your order online and take one more step toward owning the home of your dreams.
Home Specifications
- Total Living Space: 4831
- Ridge Height (Ft.) 20
- Main Floor (Sq. Ft.): 3049 Sq.Ft
- Ridge Height (In.) 8
- Upper Floor (Sq. Ft.): N/A
- Main Ceiling Height: 9
- Lower Floor (Sq. Ft.): 1782 Sq.Ft.
- Upper Ceiling Height: N/A
- Porch (Sq. Ft.): 953 Sq.Ft.
- Lower Ceiling Height: 9
- Garage (Sq. Ft.): 934 Sq.Ft.
- Garage: 3 Bay Yes
- Bonus (Sq.Ft): N/A
- Garage/Carport Type:Angled and Porte-Cochere Angled and Porte-Cochere
- Bedrooms: 4
- Carport: Yes
- Full Baths: 4
- Roof Pitch: 5:12
- Half Baths: 1
- Porch Roof Pitch: N/A
- Stories: 2.0
- Wall Construction: 2x4
- Lower Bonus (Sq. Ft.): N/A
- Vaulted Ceiling: Yes
- Depth (Ft): 75
- Width (Ft): 123
- Depth (In.) 10
- Width (In.) N/A
- Total Sq. Ft. 6718 Sq.Ft.
- Customizable: Yes
Key Features
- Covered Front Porch
- Covered Rear Porch
- Decks Patios Balconies
- Formal Dining Room
- Game Room
- Great Room
- Home Theater
- In-Law Suite Private Guest
- Kitchen Island
- Main Floor Master
- Open Floor Plan House Plans
- Outdoor Living Space
- Peninsula/Eating Bar
- Porte-Cochere
- Split Bedroom Design
- Vacation Golf Course
- Vaulted High Cathedral Ceiling
- Walk-in Closet
- Wrap-Around Porch
Plan Collections
- Waterfront House Plans Collection
Plan Styles
- Lake House Plans
- Modern Contemporary House Plans
- Luxury House Plans
- Mediterranean House Plans
- Vacation House Plans



