House Plan 1425 Chateau Pierre, European House Plan
Please log in or create account to add the product in wishlist.
Wishlist is not saved permanently yet. Please log in or create account to save it.
Or order by phone: (870) 931-5777
Floor Plans
Description
Discover Chateau Pierre House Plan — European‑Style Elegance Meets Thoughtful Living Design
Chateau Pierre offers a striking European‑inspired home that combines stately architectural charm with comfortable, family‑friendly functionality. With refined exterior details, spacious living areas, and a thoughtfully designed layout, this plan is ideal for someone seeking a home that feels both luxurious and livable. Whether you want a home for family living, entertaining, or long‑term comfort, Chateau Pierre brings together elegance, practicality, and timeless style.
From the moment you arrive under its graceful arches and steep gables, you can imagine a home steeped in character — one that balances grandeur with warmth. Inside, graceful spaces flow into one another, from formal rooms and gathering spaces to private retreats, offering flexibility for every stage of life. Chateau Pierre invites you to experience a home where classic charm and modern convenience meet.
Key Features of Chateau Pierre Plan NDG 1425
- Approximately 3,084 square feet of living space — ample room for comfort, family living, and entertaining.
- Four bedrooms and three full bathrooms, plus one half bath — offering flexibility and privacy for family, guests, or mixed‑use living.
- Two‑story layout with generous main‑floor living space and additional rooms upstairs — blending tradition with functional design.
- Elegant European / French‑country architectural style — featuring a dramatic façade with stone and brick, steep gables, arched windows, and classic details for timeless curb appeal.
- Grand foyer with a sweeping curved staircase — setting an elegant tone immediately upon entry and connecting to the rest of the home’s flow.
- Spacious great room with vaulted or timber‑accented ceilings and a fireplace — providing a warm, inviting gathering space for family and guests.
- Formal dining room, breakfast nook, and open‑concept kitchen with island, walk‑in pantry, and eating bar — offering flexible meal and entertaining spaces for everyday living or hosting.
- Main‑floor master suite with private bath — featuring luxury touches such as dual vanities, separate tub and shower, and a large walk‑in closet for comfort and privacy.
- Two additional bedrooms on main floor plus an upstairs guest or bonus suite — ideal for guests, older children, or multi‑generational living.
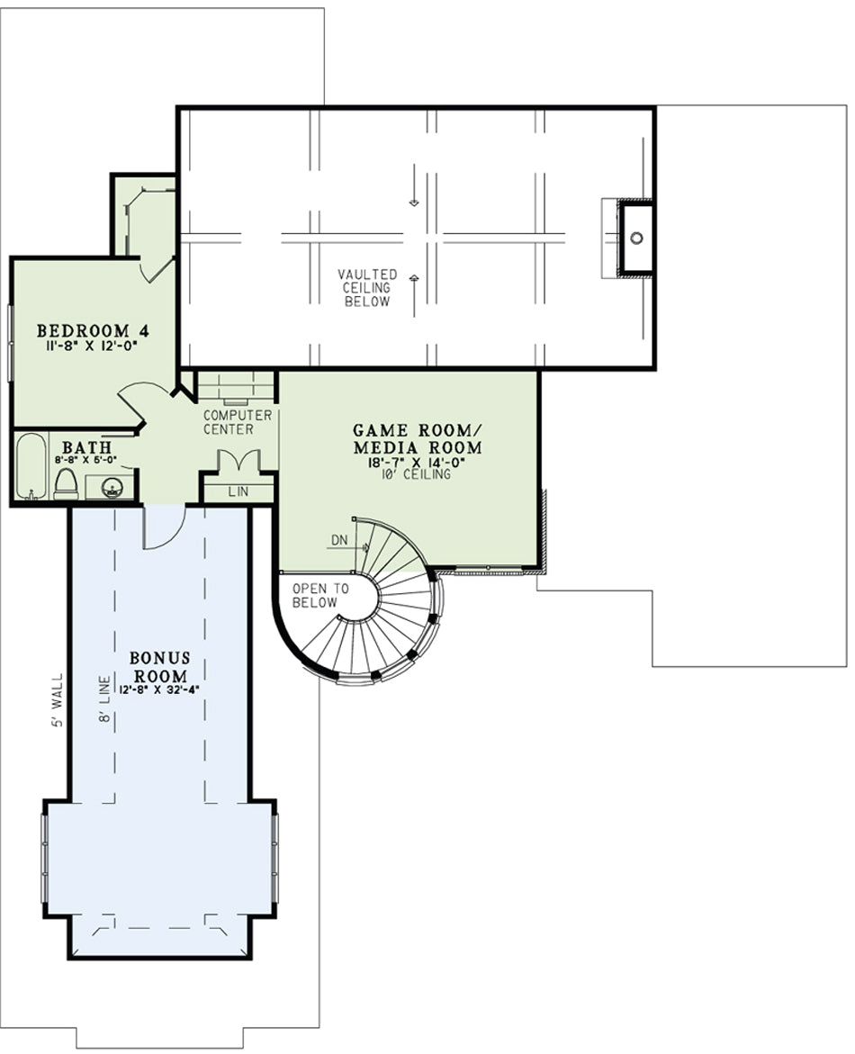
- Upper-level bonus (or media/game) room and flexible extra space — perfect for a media area, home office, exercise room, or additional storage.
- Covered and extended outdoor living / grilling porch — extends the home’s living space outdoors, perfect for dining, relaxing, and entertaining in style.
Home Specifications
- Total Living Space: 3084
- Ridge Height (Ft.) 32
- Main Floor (Sq. Ft.): 2489 Sq.Ft
- Ridge Height (In.) 0
- Upper Floor (Sq. Ft.): 595 Sq.Ft.
- Main Ceiling Height: 9
- Lower Floor (Sq. Ft.): N/A
- Upper Ceiling Height: 8
- Porch (Sq. Ft.): 500 Sq.Ft.
- Lower Ceiling Height: N/A
- Garage (Sq. Ft.): 612 Sq.Ft.
- Garage: 2 Bay Yes
- Bonus (Sq.Ft): 466 Sq.Ft.
- Garage/Carport Type:Court Yard Court Yard
- Bedrooms: 4
- Carport: N/A
- Full Baths: 3
- Roof Pitch: 12:12
- Half Baths: 1
- Porch Roof Pitch: N/A
- Stories: 1.5
- Wall Construction: 2x4
- Lower Bonus (Sq. Ft.): N/A
- Vaulted Ceiling: Yes
- Depth (Ft): 82
- Width (Ft): 61
- Depth (In.) N/A
- Width (In.) N/A
- Total Sq. Ft. 4196 Sq.Ft.
- Customizable: Yes
Key Features
- Bonus Room Over Garage
- Covered Front Porch
- Covered Rear Porch
- Formal Dining Room
- Game Room
- Great Room
- Grilling Porch
- Jack & Jill Bathroom
- Kitchen Island
- Main Floor Master
- Media Room
- Mudroom
- Nook/Breakfast Area
- Open Floor Plan House Plans
- Outdoor Living Space
- Peninsula/Eating Bar
- Split Bedroom Design
- Walk-in Closet
Plan Collections
- Customizable Exteriors House Plans Collection
- European House Plans Collection
Plan Styles
- Craftsman House Plans
- European House Plans
- French Country House Plans
- Luxury House Plans
- Traditional House Plans









