House Plan 1472 Bennigan Court, Rustic House Plan
Please log in or create account to add the product in wishlist.
Wishlist is not saved permanently yet. Please log in or create account to save it.
Or order by phone: (870) 931-5777
Floor Plans
Description
Bennigan Court – House Plan 1472: Spacious European-Rustic Home With Luxury Features
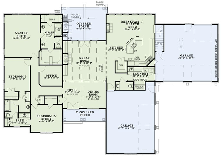
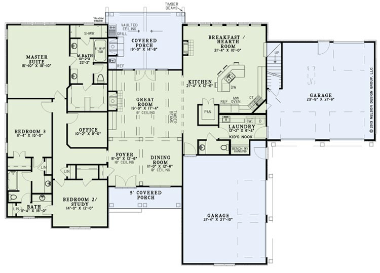
House Plan 1472, Bennigan Court, is a beautifully designed 1½-story home that blends European elegance with rustic charm. With approximately 3,548 square feet of living space, 3 bedrooms, 3 full baths, 1 half bath, and a 4-car front-load garage, it offers generous space, high-end amenities, and a layout ideal for both everyday living and entertaining.
Elegant Exterior & Curb Appeal
The home features a tasteful mix of stone and siding, accented with timber shutters and columns, and an arched entry under a covered front porch. This combination of timeless elegance and craftsman-inspired details creates a welcoming and attractive façade.
Grand, Open Interiors
A large foyer with a 10-foot ceiling leads into the great room, which features a fireplace, timber beams, and direct access to a covered rear porch — creating a warm and inviting space for family gatherings. A formal dining room adjacent to the great room offers refinement and versatility for meals and entertaining.
Kitchen & Hearth Room
The kitchen includes a walk-in pantry and an eat-at island bar, providing both functionality and a social hub for family and guests. It opens into a bright breakfast or hearth room with its own fireplace, perfect for casual dining and cozy gatherings.
Luxurious Master Suite
The master suite is designed as a private retreat, featuring a whirlpool tub, multi-head shower, double vanities, and a large walk-in closet, ensuring comfort and relaxation.
Additional Bedrooms & Flexible Spaces
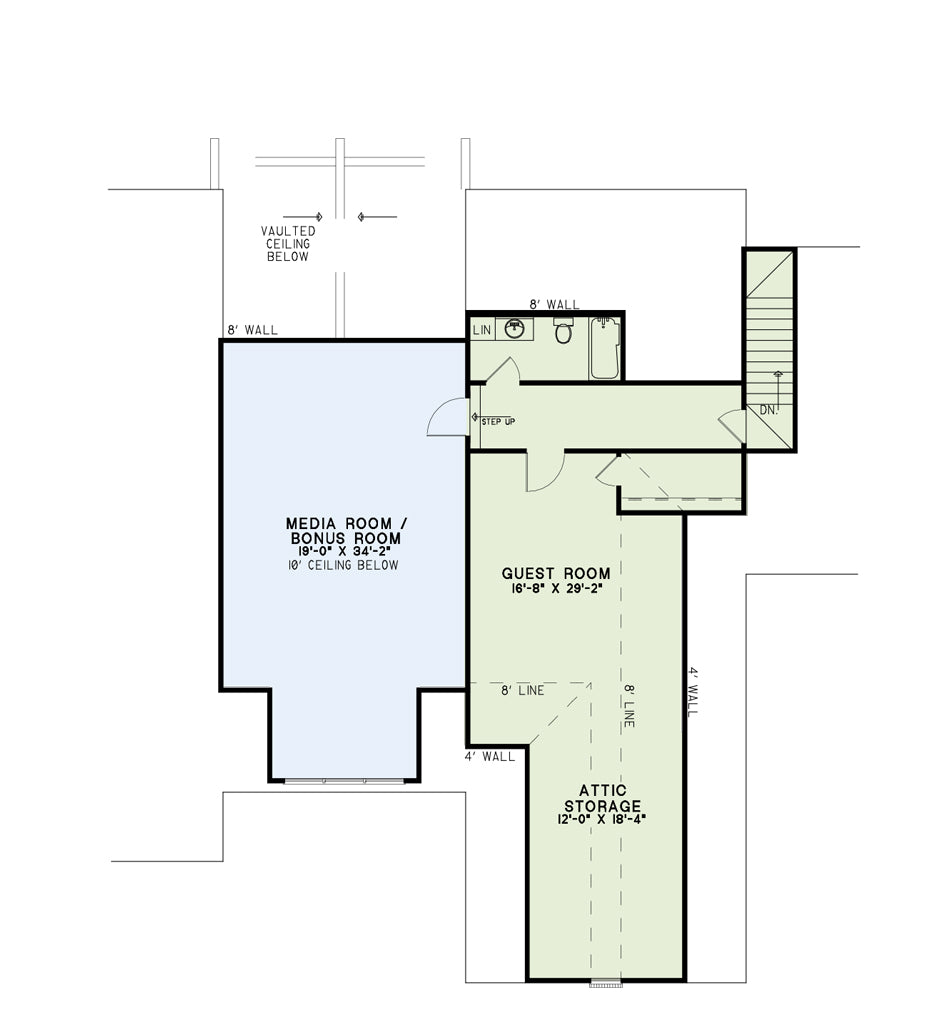
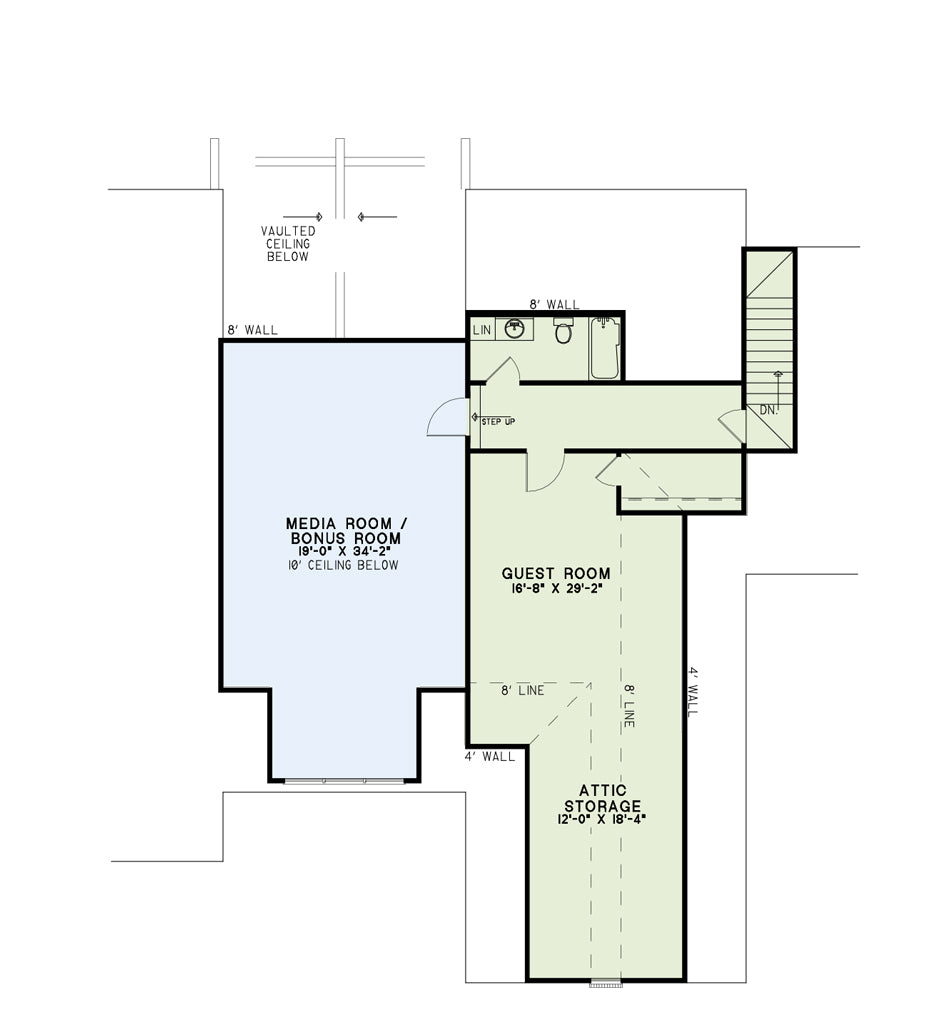
Two additional bedrooms share a Jack-and-Jill bathroom, and the main floor includes a dedicated office ideal for work or hobbies. Upstairs, a spacious guest room with a walk-in closet and full bath provides privacy for visitors. A media/bonus room adds extra flexibility for entertainment or additional living space.
Home Specifications
- Total Living Space: 3548
- Ridge Height (Ft.) 31
- Main Floor (Sq. Ft.): 2702 Sq.Ft
- Ridge Height (In.) 0
- Upper Floor (Sq. Ft.): 846 Sq.Ft.
- Main Ceiling Height: 9
- Lower Floor (Sq. Ft.): N/A
- Upper Ceiling Height: 8
- Porch (Sq. Ft.): 388 Sq.Ft.
- Lower Ceiling Height: N/A
- Garage (Sq. Ft.): 1320 Sq.Ft.
- Garage: 4 Bay Yes
- Bonus (Sq.Ft): 621 Sq.Ft.
- Garage/Carport Type:Side Load and Front Load Side Load and Front Load
- Bedrooms: 3
- Carport: N/A
- Full Baths: 3
- Roof Pitch: 10:12
- Half Baths: 1
- Porch Roof Pitch: N/A
- Stories: 1.5
- Wall Construction: 2x4
- Lower Bonus (Sq. Ft.): N/A
- Vaulted Ceiling: Yes
- Depth (Ft): 65
- Width (Ft): 95
- Depth (In.) 2
- Width (In.) 4
- Total Sq. Ft. 5256 Sq.Ft.
- Customizable: Yes
Key Features
- Arched Entry
- Bonus Room
- Covered Front Porch
- Covered Rear Porch
- Formal Dining Room
- Game Room
- Great Room
- Grilling Porch
- Home Office/Study
- Main Floor Master
- Media Room
- Mudroom
- Nook/Breakfast Area
- Open Floor Plan House Plans
- Peninsula/Eating Bar
- Split Bedroom Design
- Vaulted High Cathedral Ceiling
- Walk-in Closet
- Walk-in-Pantry
Plan Collections
- Rustic Ridge House Plans Collection
Plan Styles
- Craftsman House Plans
- European House Plans
- Rustic House Plans
- Traditional House Plans







