House Plan 1473 Appalachian Court, European House Plan
Please log in or create account to add the product in wishlist.
Wishlist is not saved permanently yet. Please log in or create account to save it.
Or order by phone: (870) 931-5777
Floor Plans
Description
House Plan NDG 1473 Appalachian Court – Grand European Elegance Meets Modern Luxury
If you're seeking house plans that combine timeless European architecture with expansive living spaces and modern amenities, House Plan NDG 1473 Appalachian Court offers an exceptional design. This grand two-story home spans 6,024 sq. ft. and features six bedrooms, five full baths, and three half baths, making it ideal for large families or those who love to entertain.
Key Features:
- Stunning European Design: The home boasts a metal shed roof complemented by timber columns with stone bases at the entrance, setting a sophisticated tone.
- Spacious Layout: The main floor includes a grand foyer, an office, a formal dining room, and a vast great room open to the balcony above, creating an airy and welcoming atmosphere.
- Chef's Kitchen: The kitchen is equipped with a curved 6-person eat-at island bar, a large prep island, and a massive walk-in pantry, catering to culinary enthusiasts.
- Luxurious Master Suite: The master suite offers a sitting area with a fireplace, access to a rear covered porch, and a spa-like bathroom with double vanities, a huge shower with two rain heads, an enclosed steam shower, and two large walk-in closets.
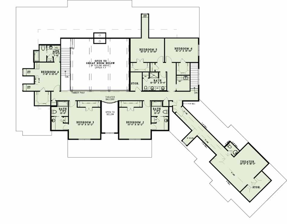
- Upper-Level Bedrooms: Five additional bedrooms are located upstairs, each with walk-in closets. Three bedrooms have their own full baths, and two share a Jack and Jill bath, providing ample space and privacy.
- Entertainment Spaces: The home includes a home theater, a half bath, and abundant storage, ensuring comfort and convenience for all residents.
- Outdoor Living: A massive covered porch spans the rear of the house, perfect for outdoor gatherings and relaxation.
- Additional Features: The design includes a porte cochère, a butler’s pantry, a mudroom, and a kid’s nook, adding functionality and charm to the home.
Why This Plan Stands Out
House Plan NDG 1473 Appalachian Court is more than just a home—it's a statement of luxury and thoughtful design. With its expansive layout, high-end finishes, and attention to detail, this plan is perfect for those who desire both elegance and practicality.
Experience the pinnacle of European-inspired living with House Plan NDG 1473 Appalachian Court, where every detail is crafted to enhance your lifestyle.
Home Specifications
- Total Living Space: 6024
- Ridge Height (Ft.) 44
- Main Floor (Sq. Ft.): 3748 Sq.Ft
- Ridge Height (In.) 8
- Upper Floor (Sq. Ft.): 2276 Sq.Ft.
- Main Ceiling Height: 10
- Lower Floor (Sq. Ft.): N/A
- Upper Ceiling Height: 9
- Porch (Sq. Ft.): 1514 Sq.Ft.
- Lower Ceiling Height: N/A
- Garage (Sq. Ft.): 907 Sq.Ft.
- Garage: 3 Bay Yes
- Bonus (Sq.Ft): 605 Sq.Ft.
- Garage/Carport Type:Angled, Rear Load, and Porte-Cochere Angled, Rear Load, and Porte-Cochere
- Bedrooms: 6
- Carport: Yes
- Full Baths: 5
- Roof Pitch: 12:12
- Half Baths: 3
- Porch Roof Pitch: N/A
- Stories: 2.0
- Wall Construction: 2x6
- Lower Bonus (Sq. Ft.): N/A
- Vaulted Ceiling: No
- Depth (Ft): 99
- Width (Ft): 123
- Depth (In.) 4
- Width (In.) 8
- Total Sq. Ft. 9050 Sq.Ft.
- Customizable: Yes
Key Features
- Arched Entry
- Balcony
- Butler's Pantry
- Covered Front Porch
- Covered Rear Porch
- Decks Patios Balconies
- Detached Garage
- Fireplace in Master
- Formal Dining Room
- Great Room
- Grilling Porch
- Home Office/Study
- Home Theater
- Kitchen Island
- Main Floor Master
- Mudroom
- Nook/Breakfast Area
- Open Floor Plan House Plans
- Outdoor Living Space
- Peninsula/Eating Bar
- Porte-Cochere
- Sitting Area
- Split Bedroom Design
- Vaulted High Cathedral Ceiling
- Walk-in Closet
- Walk-in-Pantry
Plan Collections
- Customizable Exteriors House Plans Collection
- European House Plans Collection
Plan Styles
- European House Plans
- Luxury House Plans
- Traditional House Plans








