House Plan 1620 Sedgewick Cove, Farmhouse House Plan
Please log in or create account to add the product in wishlist.
Wishlist is not saved permanently yet. Please log in or create account to save it.
Or order by phone: (870) 931-5777
Floor Plans
Description
Sedgewick Cove – House Plan NDG1620: Elegant Farmhouse Living With Southern Charm
House Plan 1620, named Sedgewick Cove, combines the warmth and comfort of country living with classic Southern design. With 2,328 square feet of living space, three bedrooms, two full baths, and a half bath, this one-story farmhouse plan offers generous room, thoughtful layout, and timeless character.
Spacious, Open Design
The heart of the home features a flowing open floor plan where the great room, breakfast room, and kitchen seamlessly connect. A wall of windows floods the space with natural light. The great room centers around a stone fireplace flanked by a built-in media center, creating a cozy and inviting gathering spot.
Thoughtful Room Layout
From the foyer, you can access the formal dining room through a swinging door — perfect for elegant meals or everyday use. On the opposite side, Bedroom 2 (which can also serve as a study) includes a large walk-in closet. Nearby, a full bathroom with double sink vanity serves this wing comfortably. Further down the hall, Bedroom 3 provides a second walk-in closet, while the master suite occupies its own private corner of the home for maximum comfort.
Luxurious Master Suite
The master suite offers private access to the rear covered porch and a spacious master bathroom featuring a corner whirlpool tub, a corner glass shower with built-in seating, a dedicated makeup area, and a large walk-in closet. It’s a peaceful retreat designed with both function and relaxation in mind.
Outdoor Living & Curb Appeal
A detailed front porch—with round columns set on stone pillars—welcomes you with elegant farmhouse character. A covered rear porch gives you a relaxing outdoor space for evenings, grilling, or simply enjoying nature.
Bonus Space & Flexibility
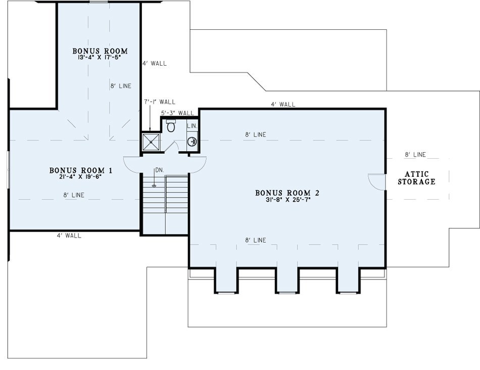
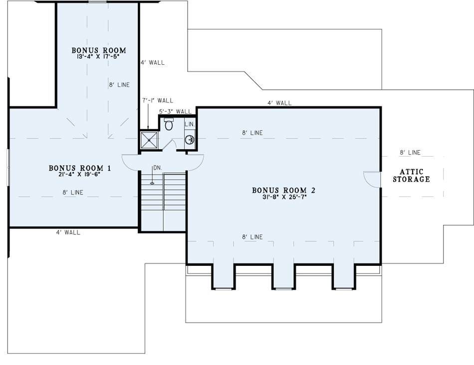
An upstairs bonus area adds flexibility, with creative ceiling lines, dormer windows, and a full bathroom — ideal for a future guest room, hobby space, or additional storage.
Home Specifications
- Total Living Space: 2328
- Ridge Height (Ft.) 26
- Main Floor (Sq. Ft.): 2245 Sq.Ft
- Ridge Height (In.) 3
- Upper Floor (Sq. Ft.): 83 Sq.Ft.
- Main Ceiling Height: 9
- Lower Floor (Sq. Ft.): N/A
- Upper Ceiling Height: 8
- Porch (Sq. Ft.): 546 Sq.Ft.
- Lower Ceiling Height: N/A
- Garage (Sq. Ft.): 803 Sq.Ft.
- Garage: 3 Bay Yes
- Bonus (Sq.Ft): 1567 Sq.Ft.
- Garage/Carport Type:Side Load Side Load
- Bedrooms: 3
- Carport: N/A
- Full Baths: 2
- Roof Pitch: 10:12
- Half Baths: 1
- Porch Roof Pitch: N/A
- Stories: 1.0
- Wall Construction: 2x4
- Lower Bonus (Sq. Ft.): N/A
- Vaulted Ceiling: No
- Depth (Ft): 59
- Width (Ft): 76
- Depth (In.) 2
- Width (In.) 10
- Total Sq. Ft. 5244 Sq.Ft.
- Customizable: Yes
Key Features
- Bonus Room Over Garage
- Covered Front Porch
- Covered Rear Porch
- Formal Dining Room
- Great Room
- Grilling Porch
- Home Office/Study
- Main Floor Master
- Mudroom
- Nook/Breakfast Area
- Open Floor Plan House Plans
- Peninsula/Eating Bar
- Split Bedroom Design
- Walk-in Closet
Plan Collections
- Customizable Exteriors House Plans Collection
Plan Styles
- Country Home House Plans
- Farmhouse House Plans
- Low Country House Plans
- Southern House Plans
- Traditional House Plans











