House Plan 943 Guindel Lane, Country Home House Plan
Please log in or create account to add the product in wishlist.
Wishlist is not saved permanently yet. Please log in or create account to save it.
Or order by phone: (870) 931-5777
Floor Plans
Description
House Plan 943 – Guindel Lane | Classic & Comfortable House Plans
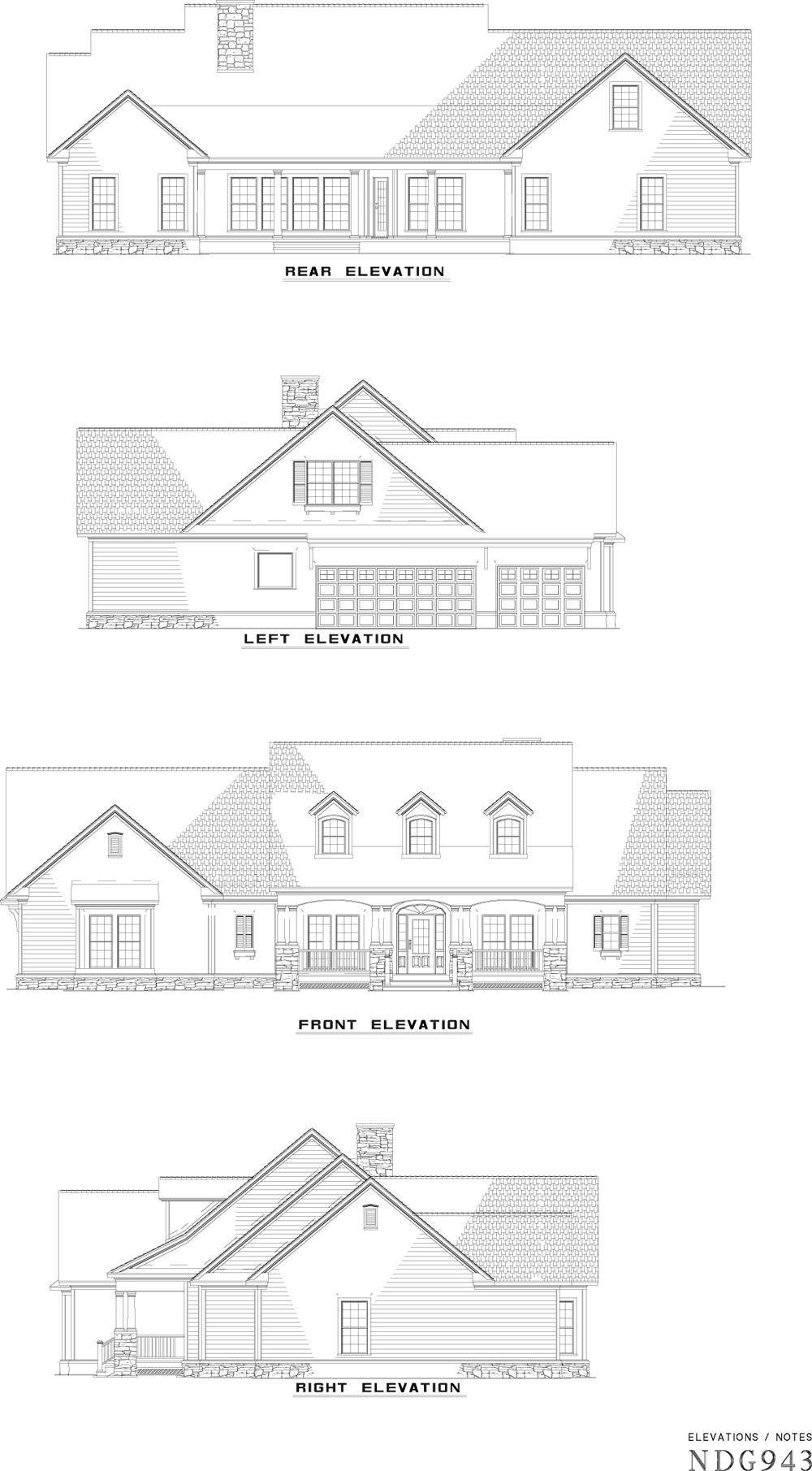
House Plan 943, Guindel Lane, is a charming and well-balanced home design that exemplifies the best of traditional house plans with modern functionality. Offering approximately 2,373 square feet of thoughtfully arranged living space, this plan is ideal for families seeking comfort, flexibility, and timeless curb appeal. The inviting exterior sets the tone for a warm interior layout that flows effortlessly from shared living areas to private bedroom spaces. With a split-bedroom design, the owner’s suite enjoys added privacy, while additional bedrooms easily accommodate family members, guests, or home office needs. Designed for everyday living and long-term enjoyment, Guindel Lane delivers the perfect blend of classic country style and practical design that continues to attract homeowners searching for quality house plans.
Key Features
- Approximately 2,373 sq. ft. of well-planned living space
- 4 bedrooms and 3 full bathrooms
- Split-bedroom layout for enhanced privacy
- Spacious family living areas ideal for entertaining
- Country-inspired architectural style with strong curb appeal
- 3-car garage providing ample parking and storage
- Functional floor plan designed for comfortable daily living
Home Specifications
- Total Living Space: 2373
- Ridge Height (Ft.) 26
- Main Floor (Sq. Ft.): 2373 Sq.Ft
- Ridge Height (In.) 3
- Upper Floor (Sq. Ft.): N/A
- Main Ceiling Height: 9
- Lower Floor (Sq. Ft.): N/A
- Upper Ceiling Height: 8
- Porch (Sq. Ft.): 580 Sq.Ft.
- Lower Ceiling Height: N/A
- Garage (Sq. Ft.): 866 Sq.Ft.
- Garage: 3 Bay Yes
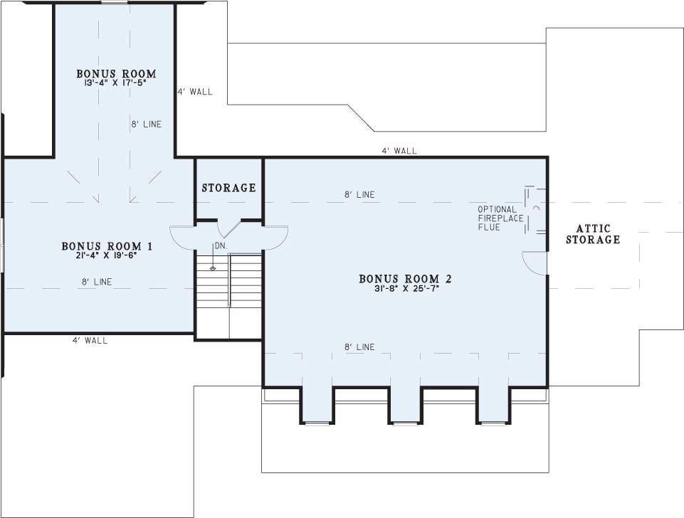
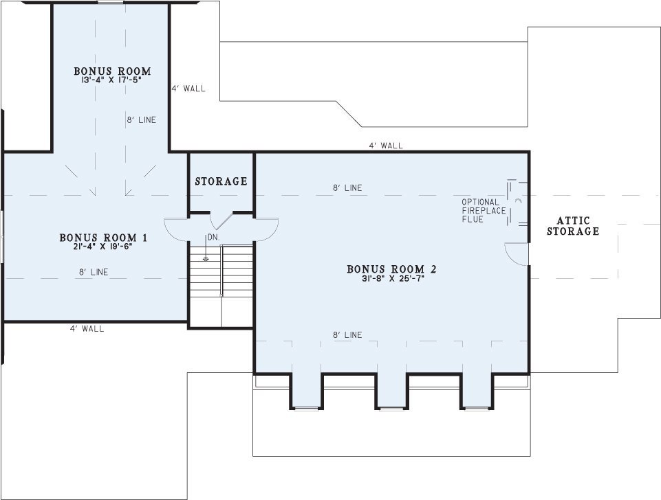
- Bonus (Sq.Ft): 1583 Sq.Ft.
- Garage/Carport Type:Side Load Side Load
- Bedrooms: 4
- Carport: N/A
- Full Baths: 3
- Roof Pitch: 10:12
- Porch Roof Pitch: N/A
- Stories: 1.0
- Wall Construction: 2x4
- Lower Bonus (Sq. Ft.): N/A
- Vaulted Ceiling: No
- Depth (Ft): 59
- Width (Ft): 76
- Depth (In.) 2
- Width (In.) 10
- Total Sq. Ft. 5402 Sq.Ft.
- Customizable: Yes
Key Features
- Arched Entry
- Bonus Room
- Bonus Room Over Garage
- Covered Front Porch
- Covered Rear Porch
- Formal Dining Room
- Great Room
- Grilling Porch
- Home Office/Study
- Main Floor Master
- Mudroom
- Nook/Breakfast Area
- Open Floor Plan House Plans
- Oversized Garage
- Peninsula/Eating Bar
- Split Bedroom Design
- Walk-in Closet
Plan Collections
Plan Styles
- Country Home House Plans
- Farmhouse House Plans
- Low Country House Plans
- Southern House Plans
- Traditional House Plans











