House Plan 354 Windstone Place, Village at Windstone II House Plan
Please log in or create account to add the product in wishlist.
Wishlist is not saved permanently yet. Please log in or create account to save it.
Or order by phone: (870) 931-5777
Floor Plans
Description
House Plan 354 Windstone Place – Traditional Neighborhood House Plan with 3 Bedrooms, 2.5 Baths & Spacious Living
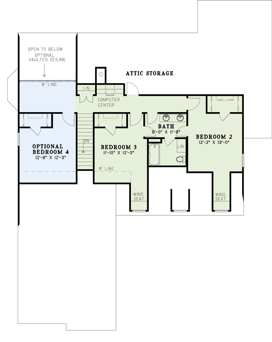
Discover a top choice among popular “house plans” with House Plan 354 Windstone Place (NDG 354) — a beautifully designed Village at Windstone II home that blends classic Southern charm with a smart, family-friendly layout. This spacious one-and-a-half-story plan offers 3 bedrooms, 2 full bathrooms, 1 half bath, and approximately 2,787 sq. ft. of living space, delivering the perfect mix of comfort, style, and everyday usability for families, buyers, or anyone searching “house plans” for their dream home.
Step inside from the welcoming covered front porch — a hallmark of Southern architectural appeal — into a grand foyer that opens to a formal dining room and comfortable great room, ideal for family gatherings and entertaining. The main floor also features a spacious master suite with a private sitting area, offering privacy and relaxation, while an adjacent hearth room and breakfast nook connect effortlessly to a grilling porch, perfect for casual meals and outdoor living. Upstairs, additional bedrooms and a flexible computer area give plenty of room for kids, guests, or remote work. A 2-bay courtyard garage adds everyday convenience without sacrificing curb appeal.
Home Specifications
- Total Living Space: 2787
- Ridge Height (Ft.) 27
- Main Floor (Sq. Ft.): 2092 Sq.Ft
- Ridge Height (In.) 8
- Upper Floor (Sq. Ft.): 695 Sq.Ft.
- Main Ceiling Height: 9
- Lower Floor (Sq. Ft.): N/A
- Upper Ceiling Height: 8
- Porch (Sq. Ft.): 580 Sq.Ft.
- Lower Ceiling Height: N/A
- Garage (Sq. Ft.): 529 Sq.Ft.
- Garage: 2 Bay Yes
- Bonus (Sq.Ft): 310 Sq.Ft.
- Garage/Carport Type:Court Yard Court Yard
- Bedrooms: 3
- Carport: N/A
- Full Baths: 2
- Roof Pitch: 10:12
- Half Baths: 1
- Porch Roof Pitch: N/A
- Stories: 1.5
- Wall Construction: 2x4
- Lower Bonus (Sq. Ft.): N/A
- Vaulted Ceiling: Yes
- Depth (Ft): 74
- Width (Ft): 59
- Depth (In.) 2
- Width (In.) 4
- Total Sq. Ft. 4206 Sq.Ft.
- Customizable: Yes
Key Features
- Covered Front Porch
- Covered Rear Porch
- Formal Dining Room
- Great Room
- Grilling Porch
- Jack & Jill Bathroom
- Main Floor Master
- Mudroom
- Nook/Breakfast Area
- Open Floor Plan House Plans
- Peninsula/Eating Bar
- Sitting Area
- Split Bedroom Design
- Walk-in Closet
- Walk-in-Pantry
Plan Collections
- Village at Windstone II House Plans Collection
Plan Styles
- Country Home House Plans
- Traditional House Plans
- Traditional Neighborhood Design (TND) House Plans
- Vacation House Plans

