House Plan 547 Autumn Drive, Traditional House Plan
Please log in or create account to add the product in wishlist.
Wishlist is not saved permanently yet. Please log in or create account to save it.
Or order by phone: (870) 931-5777
Floor Plans
Description
House Plan 547 Autumn Drive – Traditional 3‑Bedroom House Plan | NDG 547
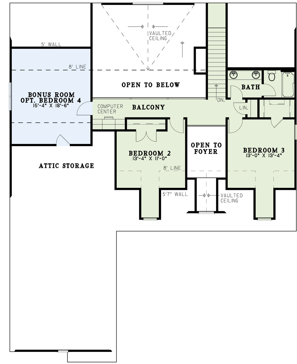
Discover classic Southern living and efficient family design with House Plan 547 Autumn Drive, a beautifully balanced 3‑bedroom house plan that combines traditional architecture with everyday comfort. This inviting home features 3 bedrooms and 2 full baths within approximately 2,685 sq ft of total living space, along with a 2‑bay garage and a thoughtful floor plan ideal for both daily living and entertaining.
A welcoming covered front porch enhances curb appeal and provides a perfect spot for morning coffee or relaxing evenings. Inside, the open floor plan connects the living, dining, and kitchen areas — creating a seamless flow that’s perfect for family gatherings and social events. Wide hallways and generous room sizes make everyday living feel comfortable and effortless. The master suite offers privacy and convenience with easy access to a well‑appointed full bath, while the additional bedrooms provide flexible space for guests, children, or a home office.
Practical features like thoughtful bedroom placement, ample storage, and easy access to outdoor living areas make House Plan 547 Autumn Drive stand out among house plans designed for modern families. Whether you’re building your first home or planning to settle into a timeless design, this traditional plan delivers both style and function.
Home Specifications
- Total Living Space: 2685
- Ridge Height (Ft.) 26
- Main Floor (Sq. Ft.): 1990 Sq.Ft
- Ridge Height (In.) 8
- Upper Floor (Sq. Ft.): 695 Sq.Ft.
- Main Ceiling Height: 9
- Lower Floor (Sq. Ft.): N/A
- Upper Ceiling Height: 8
- Porch (Sq. Ft.): 443 Sq.Ft.
- Lower Ceiling Height: N/A
- Garage (Sq. Ft.): 515 Sq.Ft.
- Garage: 2 Bay Yes
- Bonus (Sq.Ft): 301 Sq.Ft.
- Garage/Carport Type:Court Yard Court Yard
- Bedrooms: 3
- Carport: N/A
- Full Baths: 2
- Roof Pitch: 9:12
- Half Baths: 1
- Porch Roof Pitch: N/A
- Stories: 1.5
- Wall Construction: 2x4
- Lower Bonus (Sq. Ft.): N/A
- Vaulted Ceiling: Yes
- Depth (Ft): 69
- Width (Ft): 55
- Depth (In.) 6
- Width (In.) 6
- Total Sq. Ft. 3944 Sq.Ft.
- Customizable: Yes
Key Features
- Balcony
- Bonus Room
- Covered Front Porch
- Covered Rear Porch
- Formal Dining Room
- Great Room
- Grilling Porch
- Main Floor Master
- Mudroom
- Nook/Breakfast Area
- Open Floor Plan House Plans
- Peninsula/Eating Bar
- Split Bedroom Design
- Vacation Golf Course
- Walk-in Closet
Plan Collections
Plan Styles
- Country Home House Plans
- Craftsman House Plans
- Southern House Plans
- Traditional House Plans
- Vacation House Plans

