House Plan 5262 Cole Creek Retreat, Rustic House Plan
Please log in or create account to add the product in wishlist.
Wishlist is not saved permanently yet. Please log in or create account to save it.
Or order by phone: (870) 931-5777
Floor Plans
Description
Cole Creek Retreat – Rustic Cabin‑Inspired House Plan
Escape to comfort and rustic charm with the Cole Creek Retreat—a home that blends cozy cabin style with modern living for the perfect family getaway. Looking for house plans that combine rustic mountain charm with modern comfort? The Cole Creek Retreat is a warm and inviting design, perfect for families or anyone seeking a home that feels like a peaceful getaway.
Key Highlights:
- Total Living Space: Approximately 2,006 sq. ft.
- Bedrooms: 3
- Bathrooms: 2 full baths, 1 half bath
- Stories: 1.5‑level design with main floor and upper loft/bedrooms
- Garage: Detached 2‑bay option with convenient mudroom access
- Exterior Style: Classic cabin-inspired with stone accents, wood siding, and a wrap-around porch
- Interior Features: Vaulted ceilings in the great room, open floor plan connecting kitchen, dining, and living areas, stone fireplace for a cozy atmosphere
- Outdoor Living: About 833 sq. ft. of covered porch space, perfect for relaxing or entertaining
- Flexible Layout: Loft and upper bedrooms provide extra space for guests, office, or hobbies
- Ideal For: Families, empty-nesters, or anyone wanting a retreat-like home in a scenic setting
Cole Creek Retreat offers the perfect combination of charm, functionality, and character—a home where every detail invites comfort and connection to nature.
Home Specifications
- Total Living Space: 2006
- Ridge Height (Ft.) 27
- Main Floor (Sq. Ft.): 1367 Sq.Ft
- Ridge Height (In.) 8
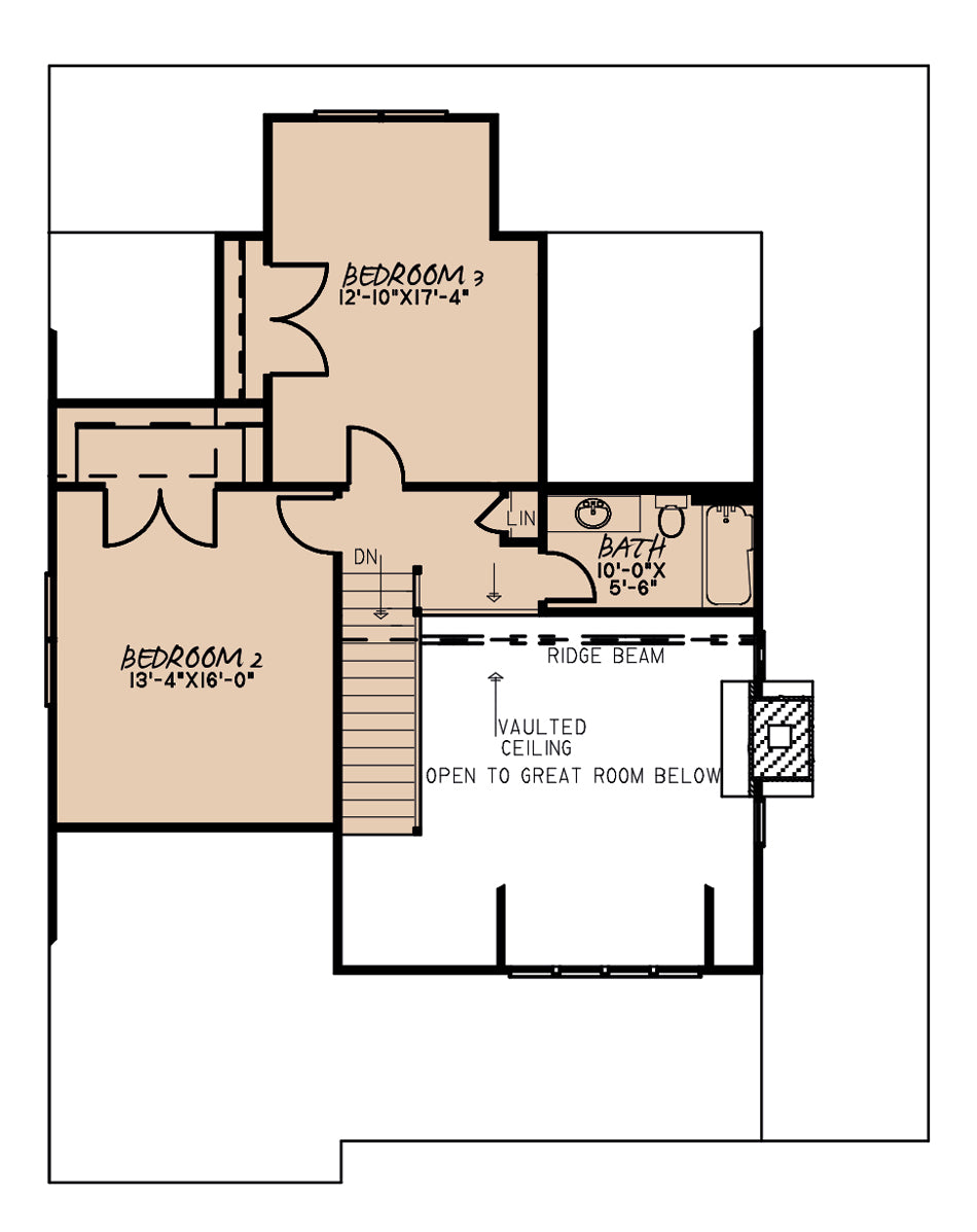
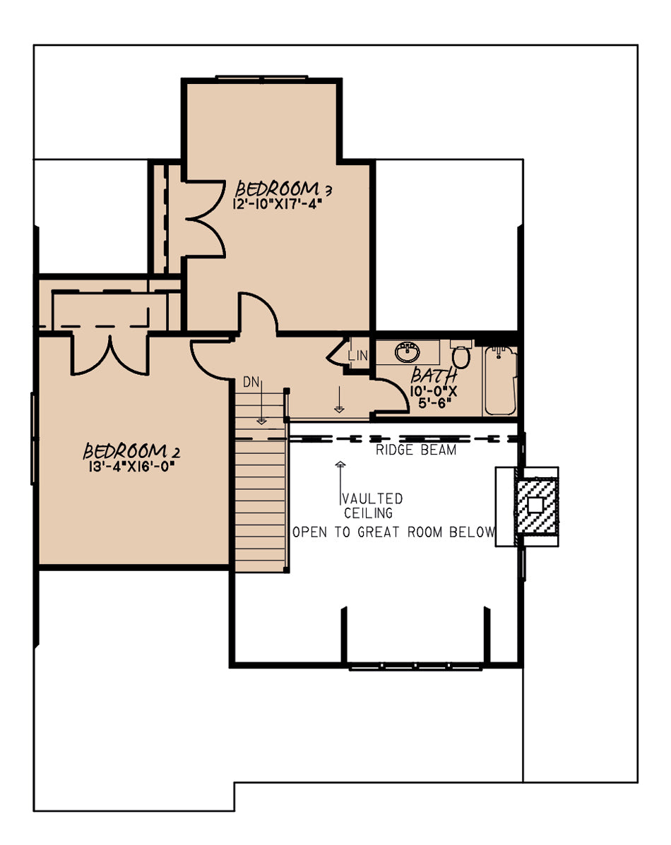
- Upper Floor (Sq. Ft.): 639 Sq.Ft.
- Main Ceiling Height: 9
- Lower Floor (Sq. Ft.): N/A
- Upper Ceiling Height: 8
- Porch (Sq. Ft.): 833 Sq.Ft.
- Lower Ceiling Height: N/A
- Garage (Sq. Ft.): 484 Sq.Ft.
- Garage: 2 Bay Yes
- Bonus (Sq.Ft): N/A
- Garage/Carport Type:Front Load and Detatched Front Load and Detatched
- Bedrooms: 3
- Carport: No
- Full Baths: 2
- Roof Pitch: 10:12
- Half Baths: 1
- Porch Roof Pitch: 5:12
- Stories: 1.5
- Wall Construction: 2x4
- Lower Bonus (Sq. Ft.): N/A
- Vaulted Ceiling: Yes
- Depth (Ft): 53
- Width (Ft): 42
- Depth (In.) 6
- Width (In.) 2
- Total Sq. Ft. 3323 Sq.Ft.
- Customizable: Yes
Key Features
- Covered Front Porch
- Covered Rear Porch
- Detached Garage
- Great Room
- Main Floor Master
- Mudroom
- Narrow Lot House Plans
- No Formal Dining
- Nook/Breakfast Area
- Open Floor Plan House Plans
- Peninsula/Eating Bar
- Split Bedroom Design
- Wrap-Around Porch
Plan Collections
- Michael E. Nelson House Plans Collection
- Riverbend Cabin House Plans Collection
Plan Styles
- Country Home House Plans
- Craftsman House Plans
- Farmhouse House Plans
- Low Country House Plans
- Mountain House Plans
- Rustic House Plans







